Negozio in vendita

Lissone, Via Sant'Antonio
1 locale 1 locale
108 Mq 108 Mq
1 bagno 1 bagno

Negozio in vendita

Lissone, Via Sant'Antonio

Descrizione annuncio

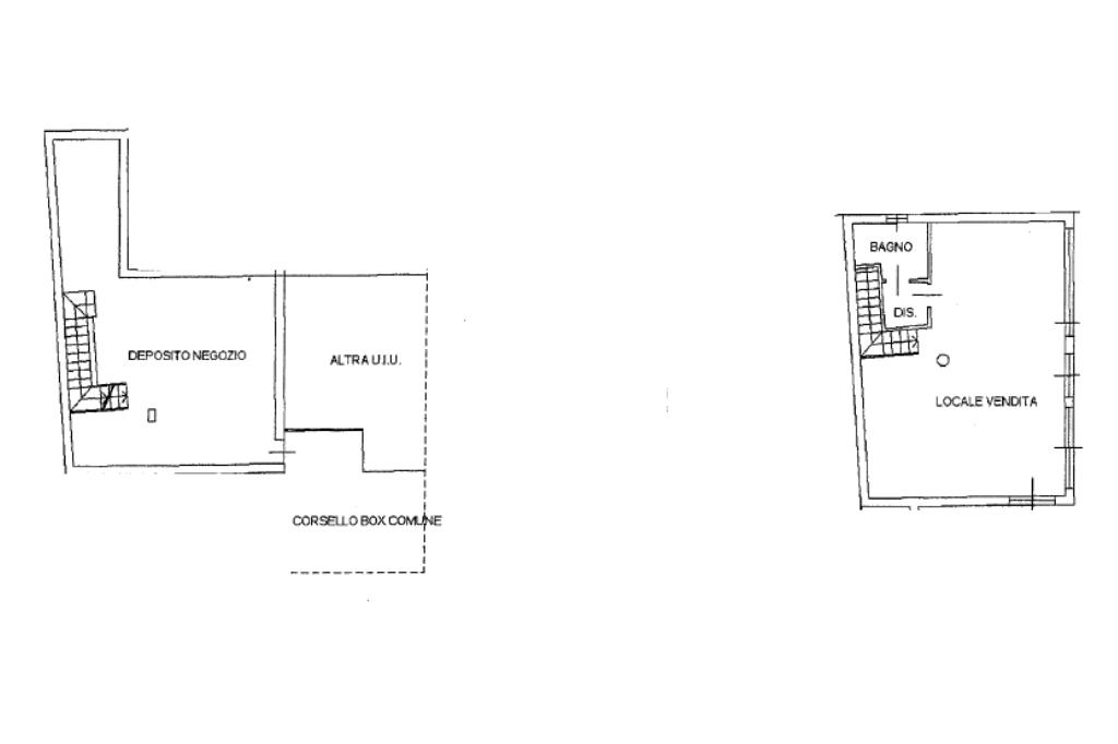
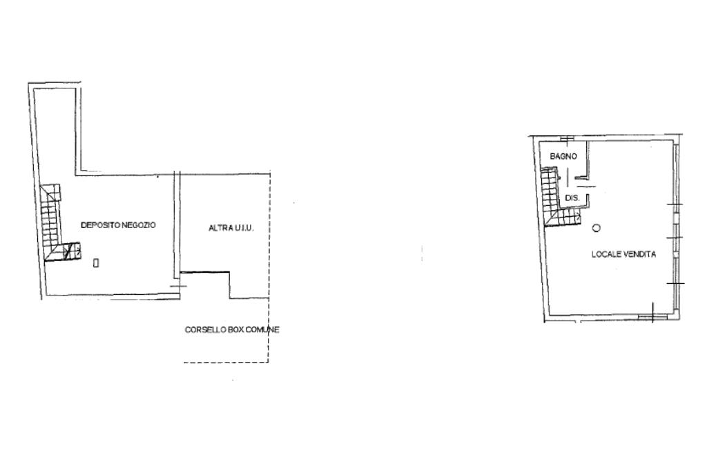
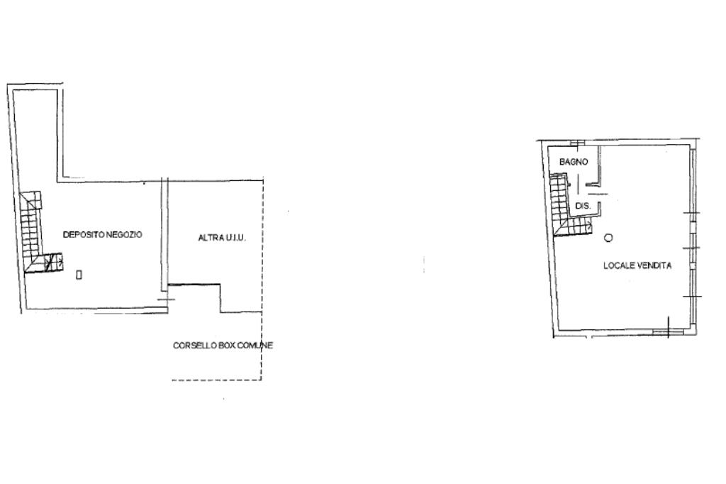
Nel cuore di Lissone, in posizione centrale e strategica, inserita in un contesto fortemente residenziale e commerciale, proponiamo in vendita negozio di 108 mq situato al piano terra, ideale per qualsiasi attività rientrante nella categoria catastale C/1
La presenza di tre ampie vetrine fronte strada assicura grande luminosità naturale
Il negozio si sviluppa su un unico livello principale al piano terra, con spazi interni regolari, facilmente modulabili in base alle esigenze dell’attività. A completamento della proprietà è presente un piano sottostante collegato, ideale come magazzino o deposito, funzionale e pratico per la gestione dell’attività posizione, nel pieno centro cittadino, consente di beneficiare della presenza costante di clientela, grazie alla vicinanza di altre attività commerciali, uffici, servizi e abitazioni.
Soluzione ideale per negozi al dettaglio, showroom, studi professionali, attività di servizio, uffici aperti al pubblico e qualsiasi altra attività commercialeOttima opportunità di investimento o per chi desidera avviare o trasferire la propria attività in una delle zone più richieste e visibili di Lissone.

NON è presente canna fumaria
NON è presente la predispozione


possibilità affitto con riscatto

Mostra tutto

Nelle vicinanze

Trasporto pubblico Trasporto pubblico
Lissone-Muggiò
Lissone-Muggiò
610 m
Desio
Desio
1,9 Km
Trasporto pubblico
280 m
Via Matteotti - Via Carducci (Lissone)
Via Matteotti - Via Carducci (Lissone)
410 m
Ricariche auto elettriche Ricariche auto elettriche
Lidl Lissone
1,2 Km
Sporting Club Monza
2,5 Km
U2 Supermercato Biassono | EnelX
2,6 Km
Scuole Scuole
Scuola Secondaria di Primo Grado Benedetto Croce
390 m
Scuola Primaria Dante Alighieri
480 m
IIS-IPSIA Giuseppe Meroni
730 m
Scuola Secondaria di Primo Grado E. Farè
850 m
Scuola Primaria Aldo Moro
890 m
Farmacia Farmacia
Farmacia Centrale
50 m
Farmacia Pozzi
50 m
Nuova
210 m
Parafarmacia Dott.ssa Citterio
270 m
San Francesco
660 m
Ospedali Ospedali
Ospedale di Lissone
1,1 Km
Ospedale San Gerardo
1,9 Km
Supermercati Supermercati
Carrefour Market
180 m
Iperal
380 m
Effemarket
980 m
U2
1,0 Km
IN's Mercato
1,0 Km
Negozi Negozi
Colombo
20 m
Calzedonia
50 m
Salato Dolce
50 m
Gigina
70 m
Fossati
70 m
Bar Bar
Bar Il Falco
120 m
Uncle Paul
700 m
Real Beach
1,4 Km
Level
1,5 Km
Bar
2,0 Km
Ristoranti Ristoranti
Pizzeria Civico 36
90 m
Amici Miei
130 m
Kaori
160 m
Molo 14
180 m
Virgola
210 m
Mostra tutto

Caratteristiche

Rif.:
61166955
Piano:
Terra di 3
Totale piani:
3
Condizionamento:
Autonomo
Ascensore:
No
Riscaldamento:
Autonomo
Mostra tutto
Prezzo Prezzo
€ 175.000
Rata mutuo Rata mutuo
€ 817 / mese
Spese annue Spese annue
€ 300
Anche in affitto a
Proponi il tuo prezzoProponi il tuo prezzo

Altre caratteristiche

Descrizione dei locali
Bagno Con Finestra

Classe Energetica

B
B
B
B
B
B
B
B
B
EP globale non rinnovabile:
128.00 kW h/m² anno
EP globale rinnovabile:
128.00 kW h/m² anno
EP invernale del fabbricato:
EP estiva del fabbricato:
Anno di costruzione:
2016
Riscaldamento:
Autonomo
Tipo impianto:
Ad aria
Tipo alimentazione:
Metano

Ti interessa visionare l'immobile?

Fissa un appuntamento  Fissa un appuntamento

Richiedi informazioni

Clicca su Leggi per aprire l'informativa
* Questi campi sono obbligatori

Calcola il tuo mutuo

Semplice e senza impegno
Anticipo

( % )
Mutuo

( % )

pochi semplici passi

inserisci i tuoi dati
Questionario completato
Grazie per aver richiesto un appuntamento senza impegno con un nostro Consulente del Credito e Assicurativo.

Hai inserito correttamente tutti i dati necessari e a breve riceverai una e-mail con un link da convalidare per inviare i tuoi dati.
Affiliato
Studio Perillo Srl
Via Locatelli, 24 20834 Nova Milanese (MB)

Il nostro staff


  • Noureddine Abouhafs
    Collaboratore

  • Leyslany Isabel Cardona Montana
    Collaboratrice

  • Noah Roberto Di Giambattista
    Collaboratore

  • Edy Gobbi
    Coordinatrice

  • Alessia Giannì
    Collaboratrice

  • Afra Thalia Lopez
    Collaboratrice

  • Roberta Perillo
    Collaboratrice

  • Nicolò Pasquali
    Collaboratore

  • Giorgia Trizio
    Collaboratrice

  • Nicola Perillo
    Affiliato
Via Locatelli, 24 20834 Nova Milanese (MB)
Zona: Nova Milanese-Lissone- Desio-Macherio- Biassono- Sovico- Albiate
Mostra su mappa
Orari: Dal lunedì al venerdì dalle 09:00 alle 12:30 e dalle 14:00 alle 19:00 -Sabato dalle 09.00 alle 12.30
Affiliato
Studio Perillo Srl
Via Locatelli, 24 20834 Nova Milanese (MB)

2026 Tecnocasa Franchising S.p.A. - P. IVA 08365160152 - Via Monte Bianco 60/A 20089 Rozzano (MI). Ogni agenzia ha un proprio titolare ed è autonoma. Privacy policy | Policy utilizzo | Cookie policy