Negozio in affitto

Lissone, Via Sant'Antonio
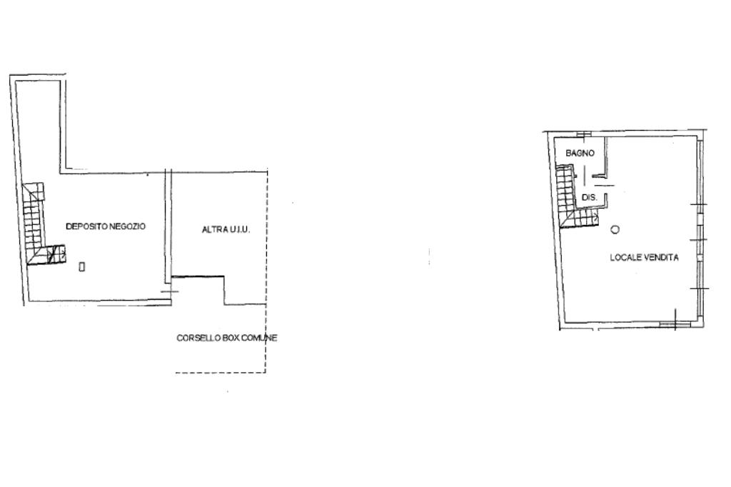
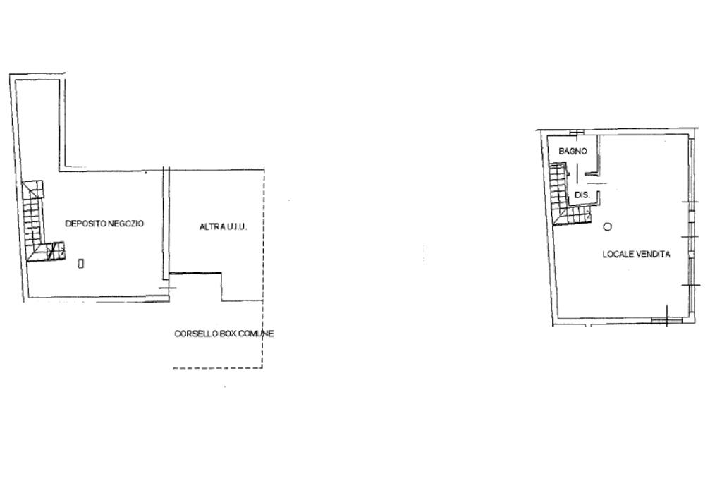
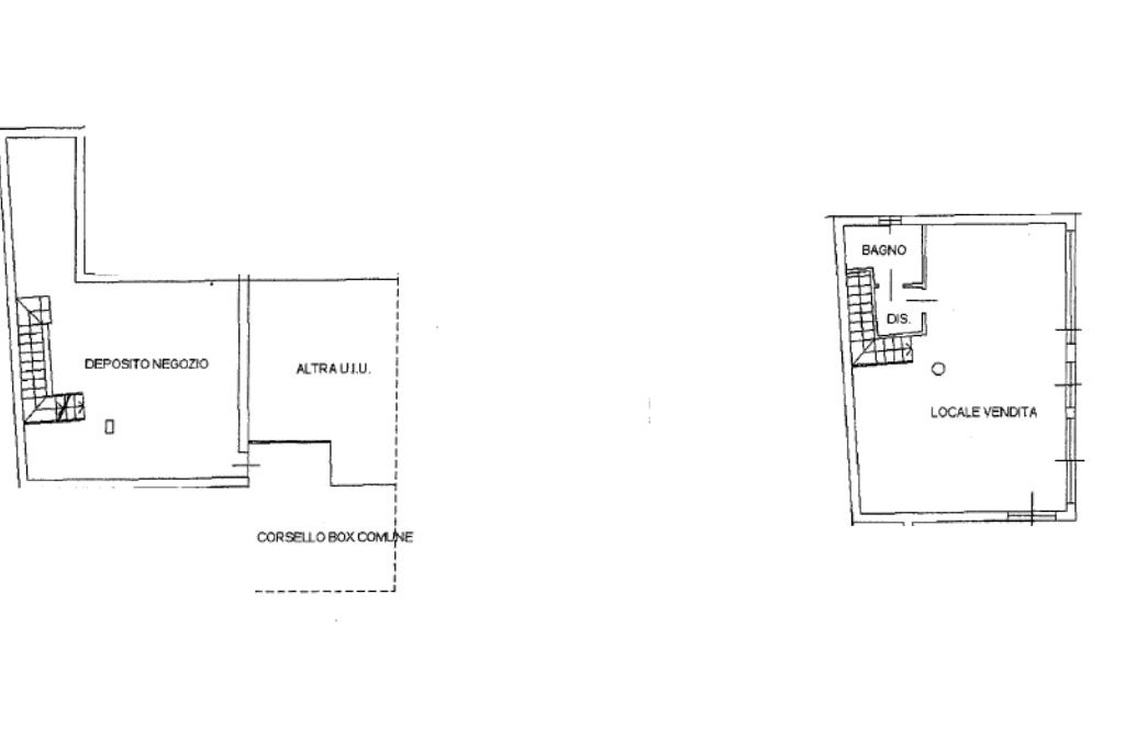
1 locale 1 locale
108 Mq 108 Mq
1 bagno 1 bagno

Negozio in affitto

Lissone, Via Sant'Antonio

Descrizione annuncio

In pieno centro a Lissone, all’interno di un contesto fortemente residenziale e commerciale, proponiamo in affitto negozio di 108 mq situato al piano terra, in zona di fortissimo passaggio pedonale e veicolare.L’immobile, accatastato categoria C/1, e grazie alla posizione strategica e all’eccellente visibilità garantita da tre ampie vetrine fronte strada, ideali per esposizione e comunicazione del spazi interni sono regolari, facilmente personalizzabili in base alle esigenze dell’attività. A completamento della soluzione è presente un piano sottostante collegato, perfetto come magazzino o deposito, funzionale alla gestione quotidiana del zona centrale assicura presenza costante di clientela, grazie alla vicinanza di abitazioni, altre attività commerciali, uffici e servizi di primaria ideale per negozi al dettaglio, showroom, studi professionali, attività di servizio e uffici aperti al pubblico.Canone di locazione: € 850 mensili
Ottima opportunità per chi cerca visibilità, metratura e una posizione di forte interesse commerciale nel centro di Lissone.

NON è presente canna fumaria
NON è presente la predispozione

possibilità di affitto con riscatto

Offriamo a ragazzi/e la possibilità di inserimento lavorativo, ricercando ambosessi da formare ed avviare alla professione di agenti immobiliari e/o coordinatrice d'agenzia.

Mostra tutto

Nelle vicinanze

Trasporto pubblico Trasporto pubblico
Lissone-Muggiò
Lissone-Muggiò
610 m
Desio
Desio
1,9 Km
Trasporto pubblico
280 m
Via Matteotti - Via Carducci (Lissone)
Via Matteotti - Via Carducci (Lissone)
410 m
Ricariche auto elettriche Ricariche auto elettriche
Lidl Lissone
1,2 Km
Sporting Club Monza
2,5 Km
U2 Supermercato Biassono | EnelX
2,6 Km
Scuole Scuole
Scuola Secondaria di Primo Grado Benedetto Croce
390 m
Scuola Primaria Dante Alighieri
480 m
IIS-IPSIA Giuseppe Meroni
730 m
Scuola Secondaria di Primo Grado E. Farè
850 m
Scuola Primaria Aldo Moro
890 m
Farmacia Farmacia
Farmacia Centrale
50 m
Farmacia Pozzi
50 m
Nuova
210 m
Parafarmacia Dott.ssa Citterio
270 m
San Francesco
660 m
Ospedali Ospedali
Ospedale di Lissone
1,1 Km
Ospedale San Gerardo
1,9 Km
Supermercati Supermercati
Carrefour Market
180 m
Iperal
380 m
Effemarket
980 m
U2
1,0 Km
IN's Mercato
1,0 Km
Negozi Negozi
Colombo
20 m
Calzedonia
50 m
Salato Dolce
50 m
Gigina
70 m
Fossati
70 m
Bar Bar
Bar Il Falco
120 m
Uncle Paul
700 m
Real Beach
1,4 Km
Level
1,5 Km
Bar
2,0 Km
Ristoranti Ristoranti
Pizzeria Civico 36
90 m
Amici Miei
130 m
Kaori
160 m
Molo 14
180 m
Virgola
210 m
Mostra tutto

Caratteristiche

Rif.:
61166957
Piano:
Terra di 3
Totale piani:
3
Condizionamento:
Autonomo
Ascensore:
No
Riscaldamento:
Autonomo
Mostra tutto
Prezzo Prezzo
€ 850 / mese
Spese annue Spese annue
€ 300
Anche in vendita a

Altre caratteristiche

Descrizione dei locali
Bagno Con Finestra

Classe Energetica

B
B
B
B
B
B
B
B
B
EP globale non rinnovabile:
128.00 kW h/m² anno
EP globale rinnovabile:
128.00 kW h/m² anno
EP invernale del fabbricato:
EP estiva del fabbricato:
Anno di costruzione:
2016
Riscaldamento:
Autonomo
Tipo impianto:
Ad aria
Tipo alimentazione:
Metano

Ti interessa visionare l'immobile?

Fissa un appuntamento  Fissa un appuntamento

Richiedi informazioni

Clicca su Leggi per aprire l'informativa
* Questi campi sono obbligatori
Affiliato
Studio Perillo Srl
Via Locatelli, 24 20834 Nova Milanese (MB)

Il nostro staff


  • Noureddine Abouhafs
    Collaboratore

  • Leyslany Isabel Cardona Montana
    Collaboratrice

  • Noah Roberto Di Giambattista
    Collaboratore

  • Edy Gobbi
    Coordinatrice

  • Alessia Giannì
    Collaboratrice

  • Afra Thalia Lopez
    Collaboratrice

  • Roberta Perillo
    Collaboratrice

  • Nicolò Pasquali
    Collaboratore

  • Giorgia Trizio
    Collaboratrice

  • Nicola Perillo
    Affiliato
Via Locatelli, 24 20834 Nova Milanese (MB)
Zona: Nova Milanese-Lissone- Desio-Macherio- Biassono- Sovico- Albiate
Mostra su mappa
Orari: Dal lunedì al venerdì dalle 09:00 alle 12:30 e dalle 14:00 alle 19:00 -Sabato dalle 09.00 alle 12.30
Affiliato
Studio Perillo Srl
Via Locatelli, 24 20834 Nova Milanese (MB)

2026 Tecnocasa Franchising S.p.A. - P. IVA 08365160152 - Via Monte Bianco 60/A 20089 Rozzano (MI). Ogni agenzia ha un proprio titolare ed è autonoma. Privacy policy | Policy utilizzo | Cookie policy