Capannone in vendita

Lissone, Viale Martiri delle Libertà
€ 4.500.000
15 locali 15 locali
8760 Mq 8760 Mq
32 bagni 32 bagni

Capannone in vendita

Lissone, Viale Martiri delle Libertà

Questo immobile dispone di soluzioni frazionate

Descrizione annuncio

Proponiamo in vendita Immobile Industriale a Lissone – Soluzione Pluripiano

Proponiamo in vendita immobile industriale cielo-terra, sviluppato su sei livelli di cui due interrati, per un lotto complessivo di circa 8766 mq.

La proprietà rappresenta una soluzione altamente funzionale e versatile, ideale per attività produttive, logistiche e direzionali integrate.

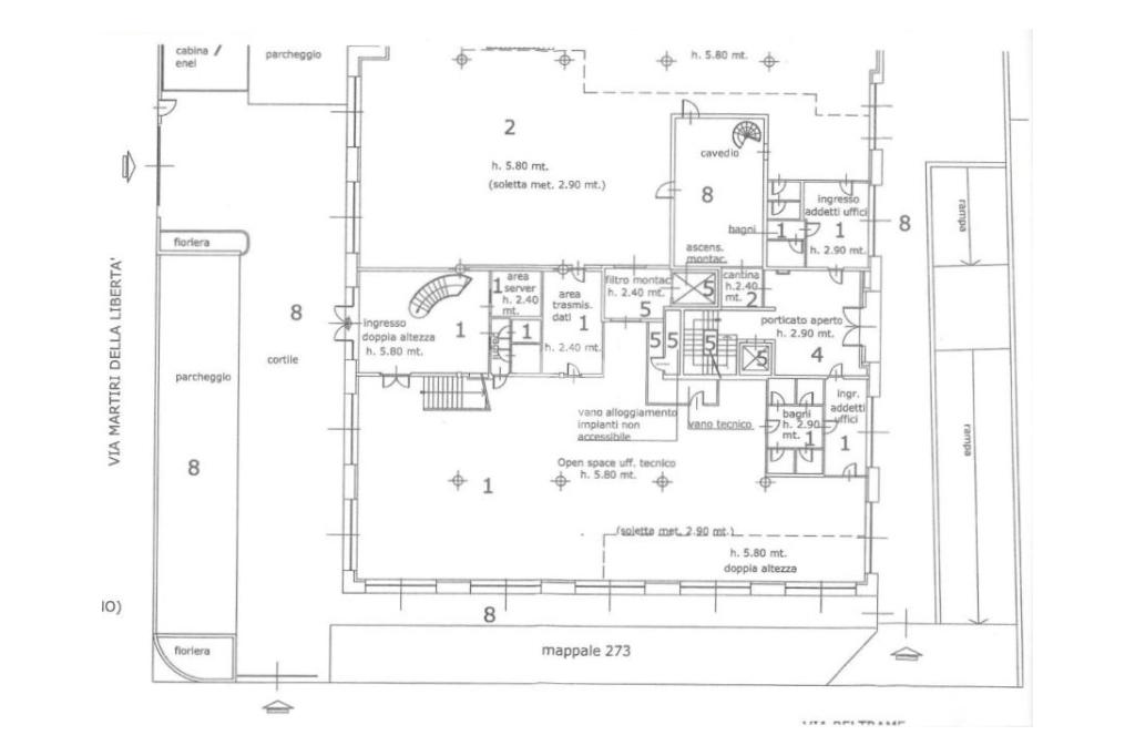
Il secondo piano interrato, di circa 1.150 mq, è destinato a deposito e si distingue per un’altezza interna di 5,70 mt, ideale per stoccaggio merce .

L’accesso è garantito da una rampa carrabile idonea a mezzi pesanti, oltre che da un montacarichi che collega i vari livelli.

Il primo piano interrato, di circa 450 mq, è anch’esso accessibile tramite rampa e si presta sia come area deposito sia come parcheggio per il personale.

Il piano terra, di circa 1.300 mq, si presenta con un ingresso fronte strada dotato di reception per accoglienza clienti, affiancato da spazi laterali destinati a laboratorio.

Completa il livello un’area esterna con posti auto.

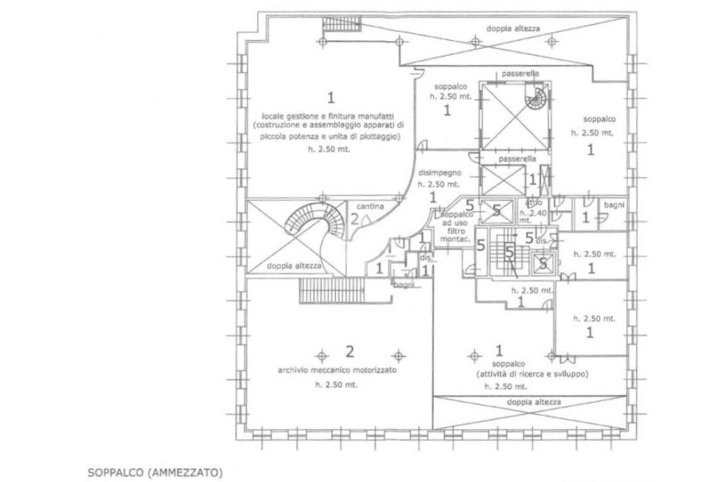
Il piano soppalcato, di circa 1.150 mq, è ideale come deposito o archivio e risulta perfettamente integrato con le attività sottostanti.

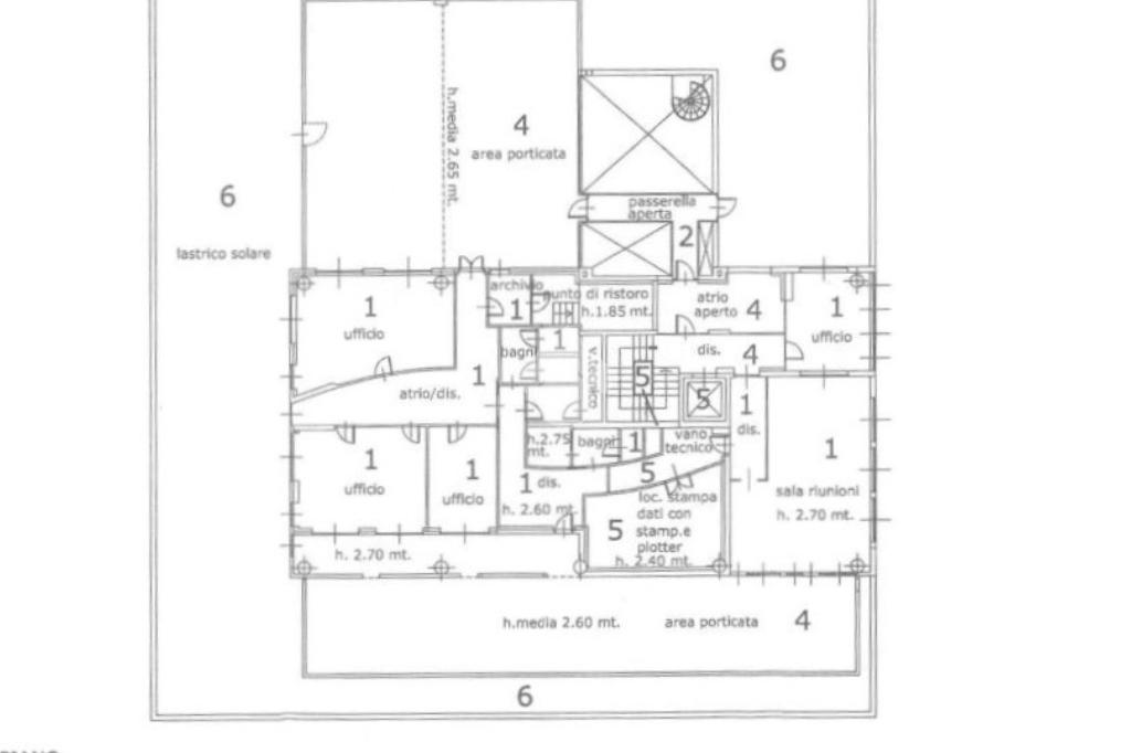
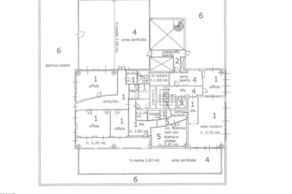
Al primo piano, con una superficie di circa 600 mq, si sviluppa la zona direzionale già organizzata in uffici, sale riunioni e area snack bar, con affaccio su una terrazza fronte strada.

Il secondo piano, di circa 400 mq, ospita ulteriori spazi ad uso ufficio e sale riunioni, mentre il terzo piano, anch’esso di circa 400 mq, completa la parte un monolocale destinato al custode.

L’immobile è servito da ascensore su tutti i livelli e da montacarichi operativo ai piani interrati, terra, primo e secondo.

Ogni piano è inoltre dotato di locale tecnico.

La configurazione degli spazi e le caratteristiche costruttive rendono questa proprietà una soluzione ideale per aziende che necessitano di una sede unica, completa e rappresentativa.

Categoria catastale D/7.

Mostra tutto

Nelle vicinanze

Trasporto pubblico Trasporto pubblico
Lissone-Muggiò
Lissone-Muggiò
1,4 Km
Desio
Desio
2,4 Km
Trasporto pubblico
350 m
Via Monza - Via San Rocco (Lissone)
Via Monza - Via San Rocco (Lissone)
780 m
Ricariche auto elettriche Ricariche auto elettriche
Lidl Lissone
1,3 Km
U2 Supermercato Biassono | EnelX
1,9 Km
Sporting Club Monza
2,2 Km
Scuole Scuole
Scuola Primaria San Mauro
590 m
Scuola Secondaria di Primo Grado Benedetto Croce
840 m
Scuola Primaria Dante Alighieri
850 m
Scuola Primaria Aldo Moro
900 m
Istituto di Istruzione Superiore Europa Unita
1,1 Km
Farmacia Farmacia
Farmacia Comunale N.3
490 m
Nuova
760 m
Farmacia Centrale
760 m
Parafarmacia Dott.ssa Citterio
780 m
Farmacia Pozzi
870 m
Ospedali Ospedali
Ospedale di Lissone
1,0 Km
Ospedale San Gerardo
1,7 Km
Centro Medico
2,6 Km
Supermercati Supermercati
Effemarket
300 m
Supermercati U2
630 m
Carrefour Market
640 m
Simply
1,0 Km
Iperal
1,1 Km
Negozi Negozi
Space One
470 m
Breakaway
490 m
L'Angolo in
490 m
Breakout
560 m
Negozi
590 m
Bar Bar
Uncle Paul
620 m
Bar Il Falco
800 m
Pit Stop
1,9 Km
Real Beach
2,0 Km
Level
2,2 Km
Ristoranti Ristoranti
Orso Bianco
500 m
Tourlé
540 m
Martin Pescatore
560 m
Tango Pizza
610 m
Ristorantino
670 m
Mostra tutto

Caratteristiche

Rif.:
61201298
Piano:
Su più livelli di 4 con ascensore
Totale piani:
4
Balconi:
3
Condizionamento:
Autonomo
Ascensore:
Mostra tutto
Prezzo Prezzo
€ 4.500.000
Rata mutuo Rata mutuo
€ 21.325 / mese
Spese annue Spese annue
€ 0
Proponi il tuo prezzoProponi il tuo prezzo

Altre caratteristiche

Descrizione dei locali
Bagno Con Finestra

Classe Energetica

E
E
E
E
E
E
E
E
E
EP globale non rinnovabile:
425.89 kW h/m² anno
EP globale rinnovabile:
49.05 kW h/m² anno
EP invernale del fabbricato:
EP estiva del fabbricato:
Anno di costruzione:
2002
Riscaldamento:
Autonomo
Tipo impianto:
A radiatori
Tipo alimentazione:
Metano

Ti interessa visionare l'immobile?

Fissa un appuntamento  Fissa un appuntamento

Richiedi informazioni

Clicca su Leggi per aprire l'informativa
* Questi campi sono obbligatori

Calcola il tuo mutuo

Semplice e senza impegno
Anticipo

( % )
Mutuo

( % )

pochi semplici passi

inserisci i tuoi dati
Questionario completato
Grazie per aver richiesto un appuntamento senza impegno con un nostro Consulente del Credito e Assicurativo.

Hai inserito correttamente tutti i dati necessari e a breve riceverai una e-mail con un link da convalidare per inviare i tuoi dati.
Affiliato
Studio Perillo Srl
Via Locatelli, 24 20834 Nova Milanese (MB)

Il nostro staff


  • Noureddine Abouhafs
    Collaboratore

  • Leyslany Isabel Cardona Montana
    Collaboratrice

  • Noah Roberto Di Giambattista
    Collaboratore

  • Edy Gobbi
    Coordinatrice

  • Alessia Giannì
    Collaboratrice

  • Afra Thalia Lopez
    Collaboratrice

  • Nicolò Pasquali
    Collaboratore

  • Giorgia Trizio
    Collaboratrice

  • Nicola Perillo
    Affiliato
Via Locatelli, 24 20834 Nova Milanese (MB)
Zona: Nova Milanese-Lissone- Desio-Macherio- Biassono- Sovico- Albiate
Mostra su mappa
Orari: Dal lunedì al venerdì dalle 09:00 alle 12:30 e dalle 14:00 alle 19:00 - Sabato su appuntamento dalle 09:00 alle 12:30.
Affiliato
Studio Perillo Srl
Via Locatelli, 24 20834 Nova Milanese (MB)

2026 Tecnocasa Franchising S.p.A. - P. IVA 08365160152 - Via Monte Bianco 60/A 20089 Rozzano (MI). Ogni agenzia ha un proprio titolare ed è autonoma. Privacy policy | Policy utilizzo | Cookie policy