Capannone in affitto

Lissone, Viale Martiri delle Libertà
€ 25.000 / mese
15 locali 15 locali
8760 Mq 8760 Mq
32 bagni 32 bagni

Capannone in affitto

Lissone, Viale Martiri delle Libertà

Questo immobile appartiene ad un'unità principale con metratura più ampia

Descrizione annuncio

Proponiamo in Locazione Immobile Industriale a Lissone – Soluzione Pluripiano

Proponiamo in Locazione immobile industriale cielo-terra, sviluppato su sei livelli di cui due interrati, per un lotto complessivo di circa 8766 mq.

La proprietà rappresenta una soluzione altamente funzionale e versatile, ideale per attività produttive, logistiche e direzionali integrate.

Il secondo piano interrato, di circa 1.150 mq, è destinato a deposito e si distingue per un’altezza interna di 5,70 mt, ideale per stoccaggio merce.

L’accesso è garantito da una rampa carrabile idonea a mezzi pesanti, oltre che da un montacarichi che collega i vari livelli.

Il primo piano interrato, di circa 450 mq, è anch’esso accessibile tramite rampa e si presta sia come area deposito sia come parcheggio per il personale.

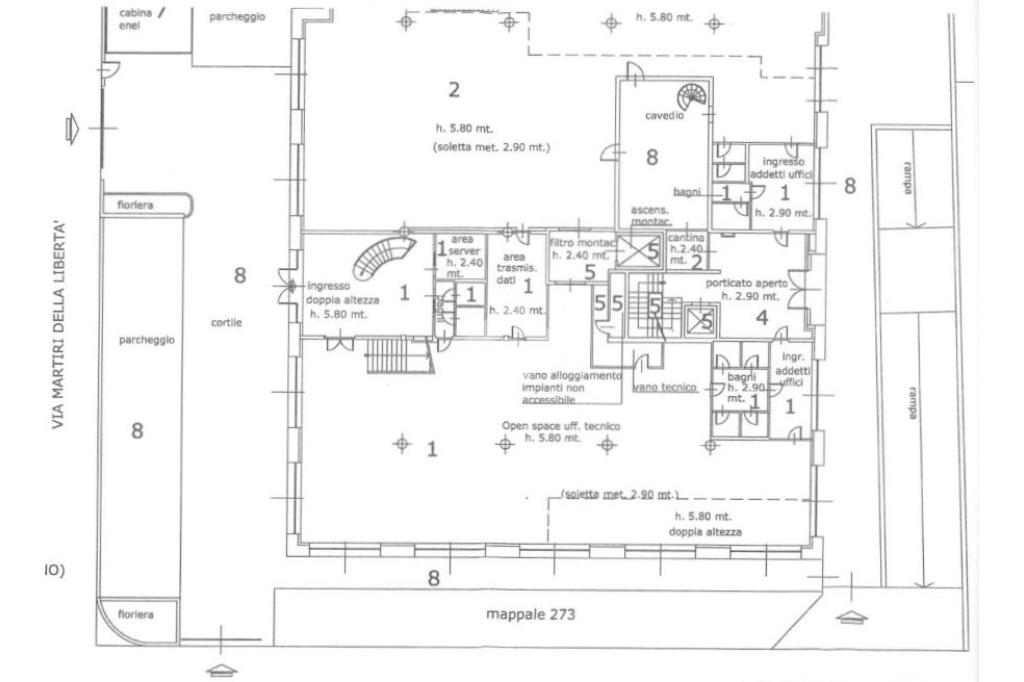
Il piano terra, di circa 1.300 mq, si presenta con un ingresso fronte strada dotato di reception per accoglienza clienti, affiancato da spazi laterali destinati a laboratorio.

Completa il livello un’area esterna con posti auto.

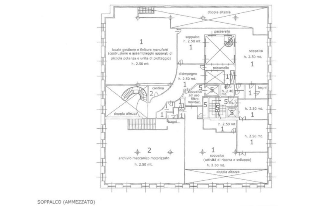
Il piano soppalcato, di circa 1.150 mq, è ideale come deposito o archivio e risulta perfettamente integrato con le attività sottostanti.

Al primo piano, con una superficie di circa 600 mq, si sviluppa la zona direzionale già organizzata in uffici, sale riunioni e area snack bar, con affaccio su una terrazza fronte strada.

Il secondo piano, di circa 400 mq, ospita ulteriori spazi ad uso ufficio e sale riunioni, mentre il terzo piano, anch’esso di circa 400 mq, completa la parte un monolocale destinato al custode.

L’immobile è servito da ascensore su tutti i livelli e da montacarichi operativo ai piani interrati, terra, primo e secondo.

Ogni piano è inoltre dotato di locale tecnico.

La configurazione degli spazi e le caratteristiche costruttive rendono questa proprietà una soluzione ideale per aziende che necessitano di una sede unica, completa e rappresentativa.

Categoria catastale D/7.

Mostra tutto

Nelle vicinanze

Trasporto pubblico Trasporto pubblico
Trasporto pubblico
650 m
Via 24 maggio angolo via Trieste
Via 24 maggio angolo via Trieste
2,9 Km
Ricariche auto elettriche Ricariche auto elettriche
Villa Cortese Canova | EnelX
340 m
Villa Cortese San Martino | EnelX
350 m
Villa Cortese d'Azeglio | EnelX
650 m
Legnano Via Sardegna | Enel-X
1,9 Km
ZapGrid Aldo Moro
2,4 Km
Scuole Scuole
Istituto di Istruzione Superiore Gregorio Mendel
180 m
Scuole
260 m
Scuola Primaria Don Mario Mentasti
1,5 Km
Scuola Secondaria di Primo Grado Caccia
1,5 Km
Scuola Primaria Tarra
1,8 Km
Farmacia Farmacia
Farmacia Pirazzini
90 m
Farmacia Perino
1,7 Km
Farmacia San Paolo
2,7 Km
Ospedali Ospedali
Ospedale nuovo di Legnano
1,7 Km
Pronto soccorso
1,8 Km
Supermercati Supermercati
Coop
190 m
Penny
1,3 Km
Supermercati
1,5 Km
Carrefour
1,6 Km
U2
1,9 Km
Negozi Negozi
Colombo
2,0 Km
Panificio Monti
2,2 Km
Euromec
3,0 Km
Guidotti Abbigliamento
3,0 Km
Negozi
3,0 Km
Bar Bar
ARCI Villa Cortese
60 m
Bar
190 m
The Kerry Blue
2,0 Km
Bar New Jersey
2,2 Km
Bar Branca
2,2 Km
Ristoranti Ristoranti
Cielo e vino
1,4 Km
Ristoranti
2,1 Km
Gusto italiano
2,2 Km
Al Borgo Antico
2,6 Km
Da Jole
2,6 Km
Mostra tutto

Caratteristiche

Rif.:
61201295
Piano:
Su più livelli di 4 con ascensore
Totale piani:
4
Balconi:
3
Condizionamento:
Autonomo
Ascensore:
Mostra tutto
Prezzo Prezzo
€ 25.000 / mese
Spese annue Spese annue
€ 0

Altre caratteristiche

Descrizione dei locali
Bagno Con Finestra

Classe Energetica

E
E
E
E
E
E
E
E
E
EP globale non rinnovabile:
425.89 kW h/m² anno
EP globale rinnovabile:
49.05 kW h/m² anno
EP invernale del fabbricato:
EP estiva del fabbricato:
Anno di costruzione:
2002
Riscaldamento:
Autonomo
Tipo impianto:
A radiatori
Tipo alimentazione:
Metano

Ti interessa visionare l'immobile?

Fissa un appuntamento  Fissa un appuntamento

Richiedi informazioni

Clicca su Leggi per aprire l'informativa
* Questi campi sono obbligatori
Affiliato
Studio Perillo Srl
Via Locatelli, 24 20834 Nova Milanese (MB)

Il nostro staff


  • Noureddine Abouhafs
    Collaboratore

  • Leyslany Isabel Cardona Montana
    Collaboratrice

  • Noah Roberto Di Giambattista
    Collaboratore

  • Edy Gobbi
    Coordinatrice

  • Alessia Giannì
    Collaboratrice

  • Afra Thalia Lopez
    Collaboratrice

  • Nicolò Pasquali
    Collaboratore

  • Giorgia Trizio
    Collaboratrice

  • Nicola Perillo
    Affiliato
Via Locatelli, 24 20834 Nova Milanese (MB)
Zona: Nova Milanese-Lissone- Desio-Macherio- Biassono- Sovico- Albiate
Mostra su mappa
Orari: Dal lunedì al venerdì dalle 09:00 alle 12:30 e dalle 14:00 alle 19:00 - Sabato su appuntamento dalle 09:00 alle 12:30.
Affiliato
Studio Perillo Srl
Via Locatelli, 24 20834 Nova Milanese (MB)

2026 Tecnocasa Franchising S.p.A. - P. IVA 08365160152 - Via Monte Bianco 60/A 20089 Rozzano (MI). Ogni agenzia ha un proprio titolare ed è autonoma. Privacy policy | Policy utilizzo | Cookie policy