Capannone in vendita

Sovico, Via Cascina Greppi
€ 430.000
10 locali 10 locali
520 Mq 520 Mq
3 bagni 3 bagni

Capannone in vendita

Sovico, Via Cascina Greppi

Descrizione annuncio

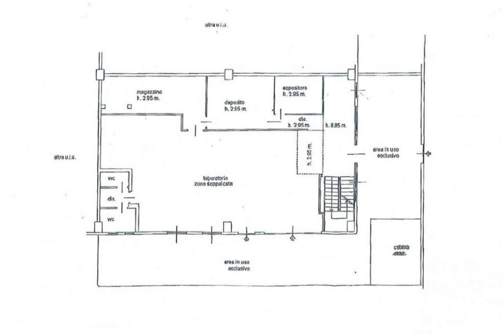
Proponiamo in vendita Capannone in zona industriale a Sovico.

L'immobile, con una superficie totale di 520mq si sviluppa su due livelli:

- Piano terra adibito a laboratorio con altezza interna di 4,70 mt permette di sfruttare al massimo lo spazio, dotato di un servizio igienico a norma per i diversamente abili e due sale riunioni.

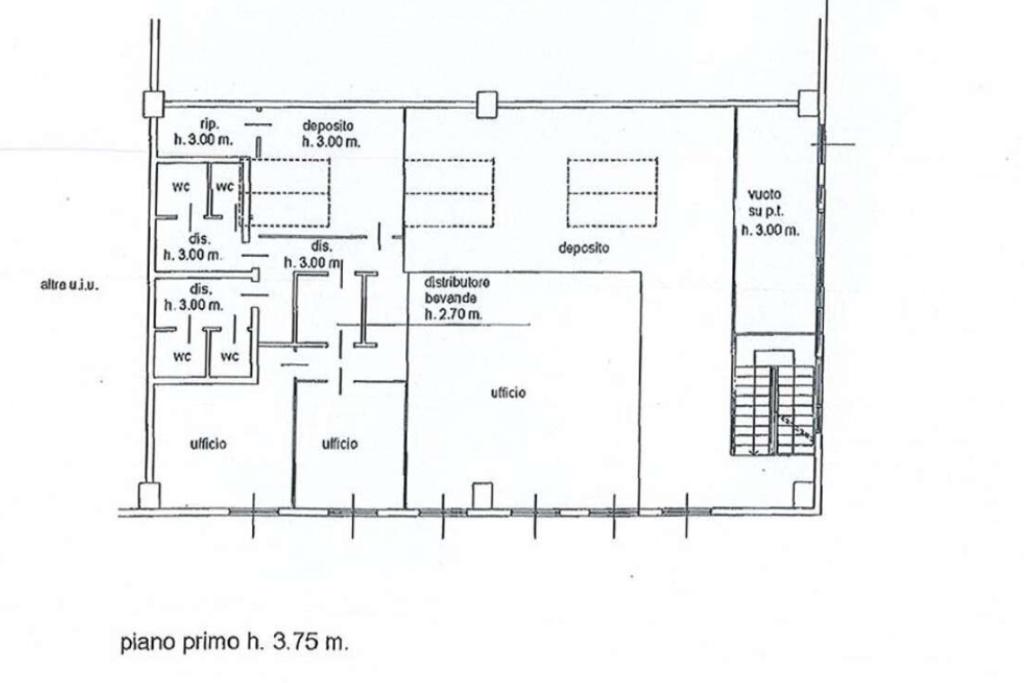
- Al piano primo, con una superficie di 260mq e un'altezza di 3,75 mt, si trovano gli uffici e due servizi igienici.

L'immobile si presenta in ottimo stato.

E' dotato di un sistema di allarme per garantire la massima sicurezza.

Presente condizionamento con pompa di calore elettrica estate/inverno.

Inoltre è dotato di uno spazio esterno di 120mq dove si trova l'ingresso carraio, ideale per carico e scarico merci.

Disponibili 4 posti auto.

Presenti spese condominiali di 150,00€ al mese.

Rendita catastale: 1.059,56

Categoria catastale: C/3

L'immobile sarà libero al rogito.

Non perdere questa occasione! Contattaci subito per maggiori informazioni e per fissare una visita!

Grazie al costante sviluppo della nostra rete, offriamo a ragazzi e ragazze di età compresa tra i 18 e 25 anni la possibilità di formarsi ed avviarsi alla professione di agente immobiliare.

Mostra tutto

Nelle vicinanze

Trasporto pubblico Trasporto pubblico
stazione di Macherio-Sovico
stazione di Macherio-Sovico
810 m
Triuggio-Ponte Albiate
Triuggio-Ponte Albiate
2,1 Km
Trasporto pubblico
600 m
Macherio
Macherio
830 m
Macherio-Canonica
Macherio-Canonica
2,4 Km
Ricariche auto elettriche Ricariche auto elettriche
U2 Supermercato Biassono | EnelX
1,4 Km
Piazza Grandi
1,8 Km
Scuole Scuole
Scuola Secondaria di Primo Grado Giuseppe Parini
650 m
Scuola primaria "Alessandro Manzoni"
670 m
Scuola secondaria di primo grado "Giacomo Leopardi"
690 m
Scuola Primaria Don Milani
1,2 Km
Scuola primaria "Gianni Rodari"
1,5 Km
Farmacia Farmacia
Farmacia di Macherio
960 m
Farmacia
1,8 Km
Farmacia Bareggia
1,9 Km
Farmacia Ariani
1,9 Km
LLoid Comunale n. 2
2,0 Km
Ospedali Ospedali
Dedalo Psicologia
1,7 Km
Ospedale di Lissone
2,8 Km
Supermercati Supermercati
Esselunga
970 m
LD Market
1,1 Km
Effemarket
1,7 Km
Coop
1,9 Km
Eurospin
2,2 Km
Negozi Negozi
Negozi
1,7 Km
Sanvito
1,7 Km
Abbigliamento Fumagalli
1,9 Km
Civas Abbigliamento
2,1 Km
Dal Prestiné Aliprandi
2,3 Km
Bar Bar
Bar
1,6 Km
Vinyl Cafe
2,3 Km
Feel
2,4 Km
Le Le Bahia
2,4 Km
Punto Nord
2,5 Km
Ristoranti Ristoranti
La Filanda
1,0 Km
Sushi e Involtini
1,3 Km
La Dispensa
1,6 Km
Trattoria Vecchia Brianza
1,8 Km
Pizzeria San Fermo
1,9 Km
Mostra tutto

Caratteristiche

Rif.:
61128399
Piano:
Terra di 2
Totale piani:
2
Posti auto:
4
Condizionamento:
Autonomo
Ascensore:
No
Mostra tutto
Prezzo Prezzo
€ 430.000
Rata mutuo Rata mutuo
€ 2.026 / mese
Spese annue Spese annue
€ 1.800
Proponi il tuo prezzoProponi il tuo prezzo
Immobile valutato con T·Valuta

Altre caratteristiche

Descrizione dei locali
Bagno Con Finestra

Classe Energetica

C
C
C
C
C
C
C
C
C
EP globale non rinnovabile:
271.81 kW h/m² anno
EP globale rinnovabile:
199.21 kW h/m² anno
EP invernale del fabbricato:
EP estiva del fabbricato:
Anno di costruzione:
2002
Riscaldamento:
Autonomo
Tipo impianto:
Ad aria
Tipo alimentazione:
Metano

Ti interessa visionare l'immobile?

Fissa un appuntamento  Fissa un appuntamento

Richiedi informazioni

Clicca su Leggi per aprire l'informativa
* Questi campi sono obbligatori

Calcola il tuo mutuo

Semplice e senza impegno
Anticipo

( % )
Mutuo

( % )

pochi semplici passi

inserisci i tuoi dati
Questionario completato
Grazie per aver richiesto un appuntamento senza impegno con un nostro Consulente del Credito e Assicurativo.

Hai inserito correttamente tutti i dati necessari e a breve riceverai una e-mail con un link da convalidare per inviare i tuoi dati.
Affiliato
Studio Perillo Srl
Via Locatelli, 24 20834 Nova Milanese (MB)

Il nostro staff


  • Noureddine Abouhafs
    Collaboratore

  • Leyslany Isabel Cardona Montana
    Collaboratrice

  • Noah Roberto Di Giambattista
    Collaboratore

  • Edy Gobbi
    Coordinatrice

  • Alessia Giannì
    Collaboratrice

  • Afra Thalia Lopez
    Collaboratrice

  • Roberta Perillo
    Collaboratrice

  • Nicolò Pasquali
    Collaboratore

  • Giorgia Trizio
    Collaboratrice

  • Nicola Perillo
    Affiliato
Via Locatelli, 24 20834 Nova Milanese (MB)
Zona: Nova Milanese-Lissone- Desio-Macherio- Biassono- Sovico- Albiate
Mostra su mappa
Orari: Dal lunedì al venerdì dalle 09:00 alle 12:30 e dalle 14:00 alle 19:00 -Sabato dalle 09.00 alle 12.30
Affiliato
Studio Perillo Srl
Via Locatelli, 24 20834 Nova Milanese (MB)

2026 Tecnocasa Franchising S.p.A. - P. IVA 08365160152 - Via Monte Bianco 60/A 20089 Rozzano (MI). Ogni agenzia ha un proprio titolare ed è autonoma. Privacy policy | Policy utilizzo | Cookie policy