Capannone in affitto

Sovico, Vicolo Alessandro Manzoni
€ 1.550 / mese
3 locali 3 locali
345 Mq 345 Mq
1 bagno 1 bagno

Capannone in affitto

Sovico, Vicolo Alessandro Manzoni

Descrizione annuncio

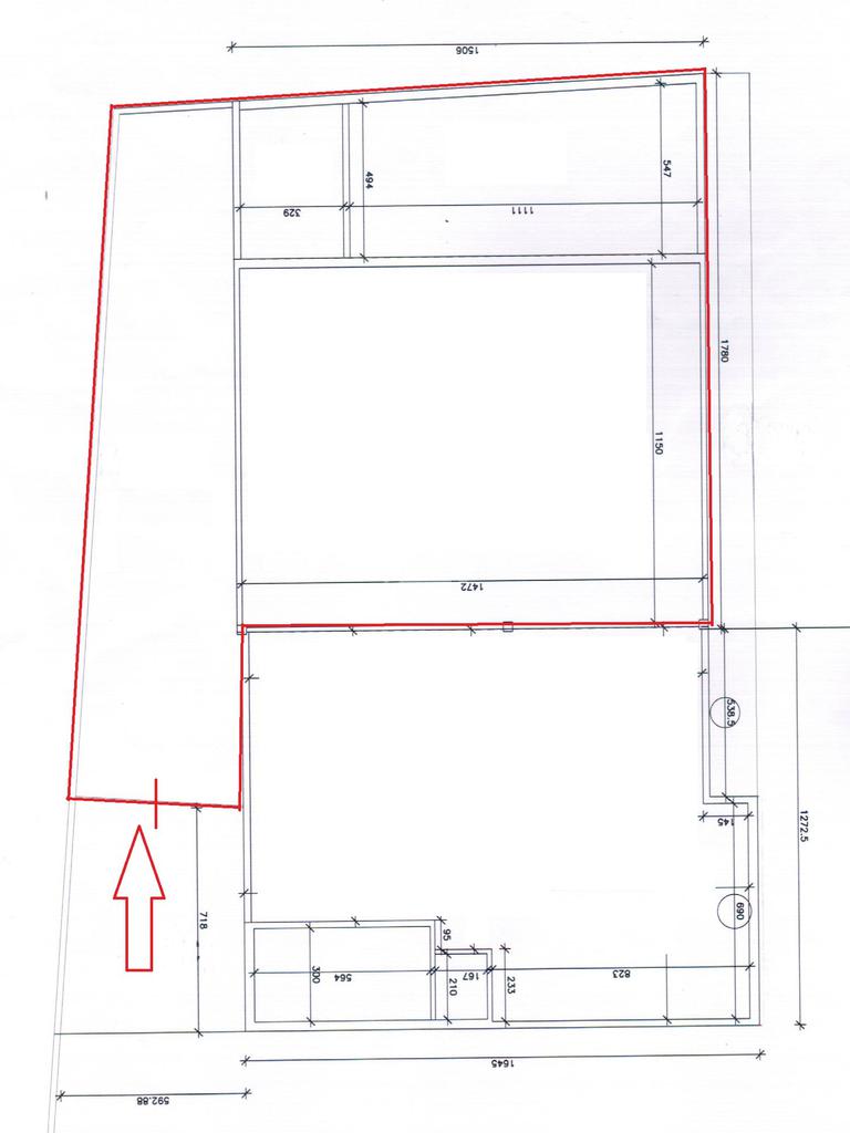
Porzione di capannone artigianale.

Spazio artigianale inserito in un più ampio fabbricato, ideale per deposito, magazzino o lavorazioni artigianali leggere.

Superficie totale: circa 345 mq, suddivisa in 3 ambienti comunicanti. Altezza interna sotto trave: 3,60 m. Portone d’ingresso: altezza 3,5 mt. Struttura in muratura portante, tetto in ordine, serramenti nuovi a taglio termico. Portoni in ferro vetrato.

Impianto elettrico nuovo, con quadro sezionato dedicato. Prese 220V e predisposizione per 380V. Linea antincendio ad anelli presente. Predisposizione per riscaldamento Robur. Linea metano allacciata fino all’interno del capannone. Illuminazione interna presente.

Categoria catastale C/3. Libero e disponibile da subito.
Contratto 6 + 6 anni, canone soggetto a IVA. Assenza di spese comuni aggiuntive.

Strada e accesso non adatti alla viabilità di mezzi pesanti. Ingresso da carraio a cielo aperto, viale in comune larghezza circa 4mt.


Le visite disponibili dal lunedì al venerdì, dalle ore 9:00 alle ore 17:00.

Mostra tutto

Nelle vicinanze

Trasporto pubblico Trasporto pubblico
stazione di Macherio-Sovico
stazione di Macherio-Sovico
490 m
Triuggio-Ponte Albiate
Triuggio-Ponte Albiate
1,8 Km
Trasporto pubblico
290 m
Macherio
Macherio
730 m
Macherio-Canonica
Macherio-Canonica
2,0 Km
Ricariche auto elettriche Ricariche auto elettriche
U2 Supermercato Biassono | EnelX
1,6 Km
Piazza Grandi
1,7 Km
Scuole Scuole
Scuola Secondaria di Primo Grado Giuseppe Parini
250 m
Scuola primaria "Alessandro Manzoni"
630 m
Scuola secondaria di primo grado "Giacomo Leopardi"
630 m
Scuola Primaria Don Milani
850 m
Scuole
1,5 Km
Farmacia Farmacia
Farmacia di Macherio
710 m
Farmacia
1,7 Km
Farmacia Ariani
1,9 Km
Farmacia Negri
1,9 Km
Farmacia Bareggia
2,3 Km
Ospedali Ospedali
Dedalo Psicologia
1,7 Km
Supermercati Supermercati
Esselunga
910 m
LD Market
1,5 Km
Coop
1,7 Km
Supermercati
1,9 Km
Effemarket
2,1 Km
Negozi Negozi
Sanvito
1,5 Km
Negozi
1,6 Km
Abbigliamento Fumagalli
1,8 Km
Civas Abbigliamento
1,8 Km
Dal Prestiné Aliprandi
2,0 Km
Bar Bar
Bar
1,4 Km
Vinyl Cafe
2,5 Km
Feel
2,7 Km
Le Le Bahia
2,8 Km
Punto Nord
2,9 Km
Ristoranti Ristoranti
La Filanda
800 m
Sushi e Involtini
1,2 Km
La Dispensa
1,4 Km
Trattoria Vecchia Brianza
1,6 Km
Extroso Canonca
1,6 Km
Mostra tutto

Caratteristiche

Rif.:
61174370
Piano:
1 di 1 (Piano terra)
Condizionamento:
Assente
Ascensore:
No
Riscaldamento:
Assente
Libero:
Mostra tutto
Prezzo Prezzo
€ 1.550 / mese
Spese annue Spese annue
€ 0

Classe Energetica

G
G
G
G
G
G
G
G
G
EP globale non rinnovabile:
249.06 kW h/m² anno
EP globale rinnovabile:
15.91 kW h/m² anno
EP invernale del fabbricato:
EP estiva del fabbricato:
Anno di costruzione:
1970
Riscaldamento:
Assente

Ti interessa visionare l'immobile?

Fissa un appuntamento  Fissa un appuntamento

Richiedi informazioni

Clicca su Leggi per aprire l'informativa
* Questi campi sono obbligatori
Affiliato
Studio Perillo Srl
Via Locatelli, 24 20834 Nova Milanese (MB)

Il nostro staff


  • Noureddine Abouhafs
    Collaboratore

  • Leyslany Isabel Cardona Montana
    Collaboratrice

  • Noah Roberto Di Giambattista
    Collaboratore

  • Edy Gobbi
    Coordinatrice

  • Alessia Giannì
    Collaboratrice

  • Afra Thalia Lopez
    Collaboratrice

  • Roberta Perillo
    Collaboratrice

  • Nicolò Pasquali
    Collaboratore

  • Giorgia Trizio
    Collaboratrice

  • Nicola Perillo
    Affiliato
Via Locatelli, 24 20834 Nova Milanese (MB)
Zona: Nova Milanese-Lissone- Desio-Macherio- Biassono- Sovico- Albiate
Mostra su mappa
Orari: Dal lunedì al venerdì dalle 09:00 alle 12:30 e dalle 14:00 alle 19:00 -Sabato dalle 09.00 alle 12.30
Affiliato
Studio Perillo Srl
Via Locatelli, 24 20834 Nova Milanese (MB)

2026 Tecnocasa Franchising S.p.A. - P. IVA 08365160152 - Via Monte Bianco 60/A 20089 Rozzano (MI). Ogni agenzia ha un proprio titolare ed è autonoma. Privacy policy | Policy utilizzo | Cookie policy