Capannone in affitto

Seveso, Via Monte Cevedale
€ 1.150 / mese
1 locale 1 locale
270 Mq 270 Mq

Capannone in affitto

Seveso, Via Monte Cevedale

Descrizione annuncio

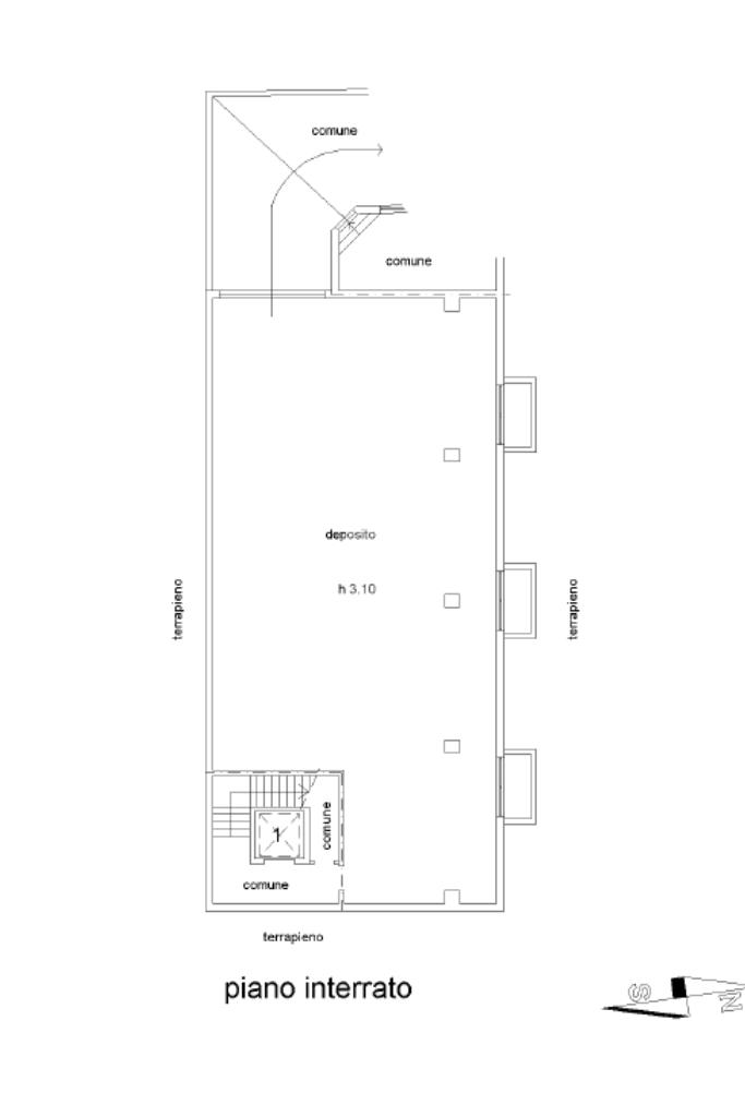
Proponiamo in locazione capannone ad uso magazzino/deposito (categoria catastale C2) di 270 mq, ideale per attività, logistiche o di stoccaggio.

L’immobile dispone di portone con larghezza di 4,18 metri e altezza di 3,08 metri, che consente un comodo accesso ai mezzi per operazioni di carico e scarico.

L’impianto elettrico è a norma, presenti prese industriali da 380 volt, rendendo lo spazio adatto ad attività che necessitano di alimentazione trifase.

È installato un impianto d’allarme e la proprietà è recintata.

L’accesso al magazzino avviene tramite rampa attualmente in fase di completamento.

L’immobile è privo di bagno, non dispone di impianto di riscaldamento né di condizionamento.

Disponibile tra un mese.

Il canone è soggetto ad IVA.

Sono richiesti tre mesi di deposito cauzionale e tre mensilità anticipate.

Offriamo a ragazzi e ragazze la possibilità di formarsi ed avviarsi alla professione di agente immobiliare, contattaci per scoprire le posizioni lavorative aperte.

Mostra tutto

Nelle vicinanze

Trasporto pubblico Trasporto pubblico
Cesano Maderno
Cesano Maderno
800 m
Seveso
Seveso
1,2 Km
Ospedale (Limbiate)
Ospedale (Limbiate)
2,9 Km
Trasporto pubblico
500 m
Seveso - Corso Garibaldi, 7 - Linea Z163
Seveso - Corso Garibaldi, 7 - Linea Z163
730 m
Ricariche auto elettriche Ricariche auto elettriche
Iperal Barlassina
1,8 Km
Bricch Golf
2,1 Km
LIMBIATE Villa Pusterla | BECHARGE
2,9 Km
Scuole Scuole
Istituto Professionale di Stato Lorenzo Milani
880 m
Scuola primaria "Carlo Collodi"
880 m
Scuola secondaria di primo grado Leonardo Da Vinci e Istituto Professionale di Stato L. Milani - Sede di Seveso
900 m
Scuola Primaria Bruno Munari
1,3 Km
Scuola primaria "Martin Luther King"
1,5 Km
Farmacia Farmacia
Farmacia
580 m
Pozzoli
830 m
Comunale 1
930 m
Farmacia San Pietro
1,1 Km
Centrale
1,1 Km
Supermercati Supermercati
Crai
380 m
Carrefour Market
540 m
Famila
770 m
U2
1,1 Km
LD Market
1,2 Km
Negozi Negozi
Camiceria Iba
550 m
DaMà New Minimarket
830 m
Binario 1
1,1 Km
Il Fornaio di Cesano Maderno
1,1 Km
Chance
1,1 Km
Bar Bar
Bar del Corso
520 m
Country Bar
540 m
Esterino Rielli
550 m
Bar Madonna
670 m
La piazzetta
890 m
Ristoranti Ristoranti
Spizzicapizza 2
20 m
Moxi sushi
160 m
Il migliore
340 m
I porci comodi
390 m
Pizzeria d'asporto & kebab San Mina
450 m
Mostra tutto

Caratteristiche

Rif.:
61179564
Piano:
Seminterrato di 2
Totale piani:
2
Condizionamento:
Assente
Ascensore:
No
Riscaldamento:
Autonomo
Mostra tutto
Prezzo Prezzo
€ 1.150 / mese
Spese annue Spese annue
€ 0

Altre caratteristiche

Descrizione dei locali
Bagno Con Finestra

Classe Energetica

G
G
G
G
G
G
G
G
G
EP globale non rinnovabile:
357.00 kW h/m² anno
EP globale rinnovabile:
42.71 kW h/m² anno
EP invernale del fabbricato:
EP estiva del fabbricato:
Anno di costruzione:
2009
Riscaldamento:
Autonomo
Tipo impianto:
A radiatori
Tipo alimentazione:
Metano

Ti interessa visionare l'immobile?

Fissa un appuntamento  Fissa un appuntamento

Richiedi informazioni

Clicca su Leggi per aprire l'informativa
* Questi campi sono obbligatori
Affiliato
Studio Perillo Srl
Via Locatelli, 24 20834 Nova Milanese (MB)

Il nostro staff


  • Noureddine Abouhafs
    Collaboratore

  • Leyslany Isabel Cardona Montana
    Collaboratrice

  • Noah Roberto Di Giambattista
    Collaboratore

  • Edy Gobbi
    Coordinatrice

  • Alessia Giannì
    Collaboratrice

  • Afra Thalia Lopez
    Collaboratrice

  • Roberta Perillo
    Collaboratrice

  • Nicolò Pasquali
    Collaboratore

  • Giorgia Trizio
    Collaboratrice

  • Nicola Perillo
    Affiliato
Via Locatelli, 24 20834 Nova Milanese (MB)
Zona: Nova Milanese-Lissone- Desio-Macherio- Biassono- Sovico- Albiate
Mostra su mappa
Orari: Dal lunedì al venerdì dalle 09:00 alle 12:30 e dalle 14:00 alle 19:00 -Sabato dalle 09.00 alle 12.30
Affiliato
Studio Perillo Srl
Via Locatelli, 24 20834 Nova Milanese (MB)

2026 Tecnocasa Franchising S.p.A. - P. IVA 08365160152 - Via Monte Bianco 60/A 20089 Rozzano (MI). Ogni agenzia ha un proprio titolare ed è autonoma. Privacy policy | Policy utilizzo | Cookie policy