Negozio in vendita

Seregno, C.so Giacomo Matteotti
€ 165.000
1 locale 1 locale
90 Mq 90 Mq
1 bagno 1 bagno

Negozio in vendita

Seregno, C.so Giacomo Matteotti

Descrizione annuncio

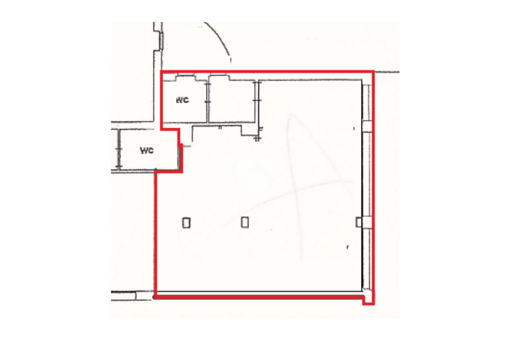
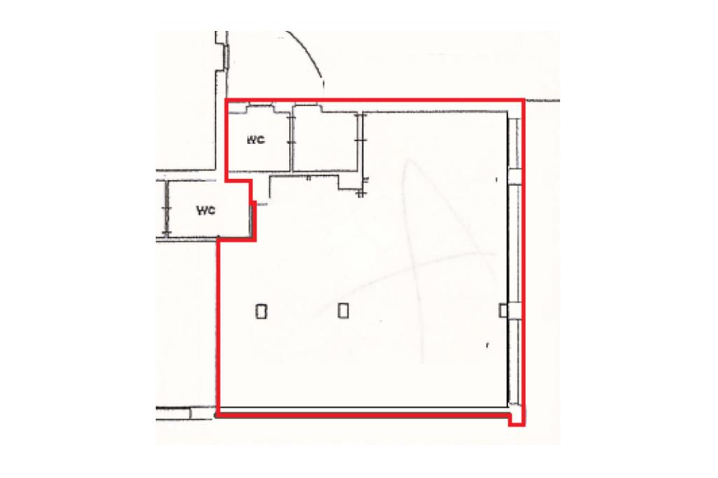
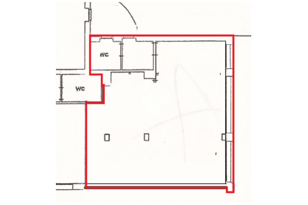
Proponiamo Locale Commerciale in vendita nella via principale di Seregno, Corso Matteotti.

Immobile situato al piano terra con una metratura complessiva di circa 90 mq .

Presenti n. 3 vetrine su strada principale che garantiscono un'ottima visibilità.

Presente un servizio igienico a norma di legge per persone diversamente abili.

Categoria catastale C/1.

Altezza interna di 5,40 mt.

Riscaldamento e condizionamento presenti autonomi.

Ampio Parcheggio antistante all'immobile.

L'immobile si presenta in ottime condizioni, ristrutturato nel 2020.

Libero subito.

Presenti spese condominiali di €50 al mese.

Possibilità di acquisto di box o posti auto.

Non perdere questa occasione! Contattaci subito per maggiori informazioni e per fissare una visita!

Grazie al costante sviluppo della nostra rete, offriamo a ragazzi e ragazze di età compresa tra i 18 e 25 anni la possibilità di formarsi ed avviarsi alla professione di agente immobiliare.

Mostra tutto

Nelle vicinanze

Trasporto pubblico Trasporto pubblico
stazione di Seregno
stazione di Seregno
950 m
Z231/Z232 - SEREGNO Corso Matteotti, 136
Z231/Z232 - SEREGNO Corso Matteotti, 136
70 m
Z231/Z232 - SEREGNO Matteotti 213/Parini
Z231/Z232 - SEREGNO Matteotti 213/Parini
220 m
Ricariche auto elettriche Ricariche auto elettriche
In's Mercato
680 m
U2 Supermercato Meda | EnelX
2,6 Km
Krealpool SRL
2,9 Km
Scuole Scuole
Scuola secondaria di secondo grado paritaria "Istituto Paci"
390 m
Scuola Primaria Luigi Cadorna
450 m
Liceo Linguistico "Candia"
450 m
Scuola media statale L. Don Milani
530 m
Istituto Comprensivo Antonio Stoppani
560 m
Farmacia Farmacia
Farmacia
320 m
Farmacia Santagostino
340 m
Farmacia Gilardelli
460 m
Parafarmacia Colombo
530 m
Farmacia Masera
640 m
Ospedali Ospedali
Ospedale Trabattoni e Ronzoni
240 m
policlinico di Monza
2,7 Km
Dedalo Psicologia
3,0 Km
Supermercati Supermercati
Simply
370 m
Simply Market
700 m
Supermercati U2
1,1 Km
Iperal
1,2 Km
Esselunga
1,6 Km
Negozi Negozi
Corti
270 m
Luisa Mode Abiti da Sposa e Sposo
320 m
Angelo Losa
320 m
Negozi
320 m
Baby fashion
340 m
Bar Bar
Bar 13
260 m
Pacha'
280 m
Torricelli 10
350 m
Davis
370 m
Speakeasy
450 m
Ristoranti Ristoranti
La bottega della pizza
310 m
Pizza&Burger Restelli
380 m
Il Lughino
390 m
Mystic Pizza
400 m
L'Osteria dei Vitelloni
450 m
Mostra tutto

Caratteristiche

Rif.:
61127720
Piano:
Terra di 2
Totale piani:
2
Posti auto:
10
Condizionamento:
Autonomo
Ascensore:
No
Mostra tutto
Prezzo Prezzo
€ 165.000
Rata mutuo Rata mutuo
€ 777 / mese
Spese annue Spese annue
€ 600
Proponi il tuo prezzoProponi il tuo prezzo
Immobile valutato con T·Valuta

Altre caratteristiche

Descrizione dei locali
Bagno Con Finestra

Classe Energetica

D
D
D
D
D
D
D
D
D
EP globale non rinnovabile:
210.66 kW h/m² anno
EP globale rinnovabile:
113.57 kW h/m² anno
EP invernale del fabbricato:
EP estiva del fabbricato:
Anno di costruzione:
2000
Riscaldamento:
Autonomo
Tipo impianto:
A radiatori
Tipo alimentazione:
Metano

Ti interessa visionare l'immobile?

Fissa un appuntamento  Fissa un appuntamento

Richiedi informazioni

Clicca su Leggi per aprire l'informativa
* Questi campi sono obbligatori

Calcola il tuo mutuo

Semplice e senza impegno
Anticipo

( % )
Mutuo

( % )

pochi semplici passi

inserisci i tuoi dati
Questionario completato
Grazie per aver richiesto un appuntamento senza impegno con un nostro Consulente del Credito e Assicurativo.

Hai inserito correttamente tutti i dati necessari e a breve riceverai una e-mail con un link da convalidare per inviare i tuoi dati.
Affiliato
Studio Perillo Srl
Via Locatelli, 24 20834 Nova Milanese (MB)

Il nostro staff


  • Noureddine Abouhafs
    Collaboratore

  • Leyslany Isabel Cardona Montana
    Collaboratrice

  • Noah Roberto Di Giambattista
    Collaboratore

  • Edy Gobbi
    Coordinatrice

  • Alessia Giannì
    Collaboratrice

  • Afra Thalia Lopez
    Collaboratrice

  • Roberta Perillo
    Collaboratrice

  • Nicolò Pasquali
    Collaboratore

  • Giorgia Trizio
    Collaboratrice

  • Nicola Perillo
    Affiliato
Via Locatelli, 24 20834 Nova Milanese (MB)
Zona: Nova Milanese-Lissone- Desio-Macherio- Biassono- Sovico- Albiate
Mostra su mappa
Orari: Dal lunedì al venerdì dalle 09:00 alle 12:30 e dalle 14:00 alle 19:00 -Sabato dalle 09.00 alle 12.30
Affiliato
Studio Perillo Srl
Via Locatelli, 24 20834 Nova Milanese (MB)

2026 Tecnocasa Franchising S.p.A. - P. IVA 08365160152 - Via Monte Bianco 60/A 20089 Rozzano (MI). Ogni agenzia ha un proprio titolare ed è autonoma. Privacy policy | Policy utilizzo | Cookie policy