Negozio in affitto

Seregno, Viale della Repubblica
Informazioni in agenzia
2900 Mq 2900 Mq

Negozio in affitto

Seregno, Viale della Repubblica

Descrizione annuncio

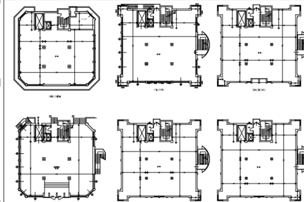
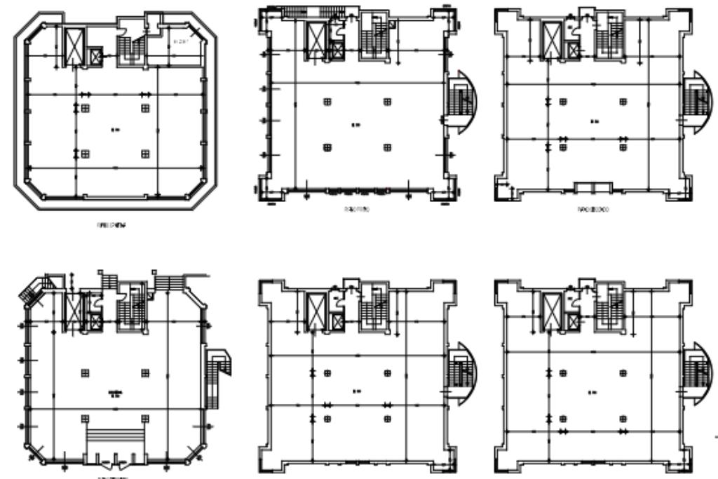
Proponiamo in Affitto complesso immobiliare affacciato sulla Strada Statale Milano - Lecco.

Il complesso immobiliare si sviluppa su sei piani fuori terra, oltre a un piano interrato, per una superficie complessiva di circa 2.900 mq.

L'ultimo piano è adibito ad uso abitativo.

Ogni piano ha una metratura di circa 350 mq, offrendo spazi ampi, regolari e facilmente modulabili.

I vari livelli del fabbricato si prestano ad attività commerciali e di servizi.

L’immobile è dotato di montacarichi industriale e ascensore garantendo funzionalità e accessibilità, in disuso da tempo e pertanto da rivedere.

Il piano interrato può essere destinato a magazzini, depositi o locale tecnico.

All’esterno è presente ampio spazio dedicato ai parcheggi, con numerosi posti auto a servizio dell’attività.

La posizione è estremamente strategica, grazie alla vicinanza della valassina milano- lecco e alle principali arterie autostradali.

Gli interni risultano spazi aperti e da rifinire i quanto rustici e privi di impianti.

Categoria catastale D/8 e A/3.

Contratto soggetto ad IVA.

Assenti spese condominiali.

Libero subito.

Offriamo a ragazzi/e la possibilità di inserimento lavorativo, ricercando ambosessi da formare ed avviare alla professione di agenti immobiliari e/o coordinatrice d'agenzia.

Mostra tutto

Nelle vicinanze

Trasporto pubblico Trasporto pubblico
stazione di Seregno
stazione di Seregno
1,9 Km
Servizio urbano di Seregno - Linea 1 - VIA MONTELLO-Villaggio Silva
Servizio urbano di Seregno - Linea 1 - VIA MONTELLO-Villaggio Silva
210 m
Servizio urbano di Seregno - Linea 1 - VIA MONTELLO-Reggio
Servizio urbano di Seregno - Linea 1 - VIA MONTELLO-Reggio
350 m
Ricariche auto elettriche Ricariche auto elettriche
In's Mercato
1,8 Km
Piazza Grandi
2,2 Km
Scuole Scuole
Scuola Primaria Luigi Cadorna
1,1 Km
Scuola secondaria di secondo grado paritaria "Istituto Paci"
1,2 Km
Istituto Tecnico Commerciale e per Geometri Primo Levi
1,3 Km
Istituto di Istruzione Superiore Martino Bassi
1,4 Km
Scuola media statale L. Don Milani
1,4 Km
Farmacia Farmacia
Lloyds Farmacia San Salvatore
320 m
Beretta Emanuele
970 m
Farmacia
1,3 Km
Farmacia Gilardelli
1,6 Km
Farmacia Bizzozero
1,7 Km
Ospedali Ospedali
Ospedale Trabattoni e Ronzoni
1,7 Km
Dedalo Psicologia
1,7 Km
Ospedale Vittorio Emanuele III
2,8 Km
Bianalisi s.r.l. Analisi Mediche
2,8 Km
policlinico di Monza
2,9 Km
Supermercati Supermercati
Esselunga
260 m
Simply Market
1,4 Km
Simply
1,6 Km
Iperal
2,0 Km
MD Market Seregno
2,1 Km
Negozi Negozi
Gatti ...il pane
390 m
Passa che ti passa
940 m
Fratelli Lanzani
940 m
Brenna Market
980 m
Antico forno
1,1 Km
Bar Bar
Bar
90 m
Feel
200 m
Vinyl Cafe
350 m
Bar Tabacchi Liett
400 m
Kiss Kiss Cafè
520 m
Ristoranti Ristoranti
Pizzeria il Dosso
300 m
Trattoria del Barbisa
420 m
Il Capriccio 2
590 m
Scotti's
700 m
Mucho Mas
760 m
Mostra tutto

Caratteristiche

Rif.:
61163033
Piano:
Su più livelli di 5 con ascensore
Totale piani:
5
Condizionamento:
Assente
Ascensore:
Riscaldamento:
Assente
Mostra tutto
Prezzo Prezzo
Informazioni in agenzia
Spese annue Spese annue
€ 0

Altre caratteristiche

Descrizione dei locali
Bagno Con Finestra

Classe Energetica

Questo immobile è esente da classe energetica
Anno di costruzione:
1980
Riscaldamento:
Assente

Ti interessa visionare l'immobile?

Fissa un appuntamento  Fissa un appuntamento

Richiedi informazioni

Clicca su Leggi per aprire l'informativa
* Questi campi sono obbligatori
Affiliato
Studio Perillo Srl
Via Locatelli, 24 20834 Nova Milanese (MB)

Il nostro staff


  • Noureddine Abouhafs
    Collaboratore

  • Leyslany Isabel Cardona Montana
    Collaboratrice

  • Noah Roberto Di Giambattista
    Collaboratore

  • Edy Gobbi
    Coordinatrice

  • Alessia Giannì
    Collaboratrice

  • Afra Thalia Lopez
    Collaboratrice

  • Roberta Perillo
    Collaboratrice

  • Nicolò Pasquali
    Collaboratore

  • Giorgia Trizio
    Collaboratrice

  • Nicola Perillo
    Affiliato
Via Locatelli, 24 20834 Nova Milanese (MB)
Zona: Nova Milanese-Lissone- Desio-Macherio- Biassono- Sovico- Albiate
Mostra su mappa
Orari: Dal lunedì al venerdì dalle 09:00 alle 12:30 e dalle 14:00 alle 19:00 -Sabato dalle 09.00 alle 12.30
Affiliato
Studio Perillo Srl
Via Locatelli, 24 20834 Nova Milanese (MB)

2026 Tecnocasa Franchising S.p.A. - P. IVA 08365160152 - Via Monte Bianco 60/A 20089 Rozzano (MI). Ogni agenzia ha un proprio titolare ed è autonoma. Privacy policy | Policy utilizzo | Cookie policy