Capannone in vendita

Seregno, Via V. Monti
€ 1.850.000
10 locali 10 locali
2450 Mq 2450 Mq
4 bagni 4 bagni

Capannone in vendita

Seregno, Via V. Monti

Questo immobile dispone di soluzioni frazionate

Descrizione annuncio

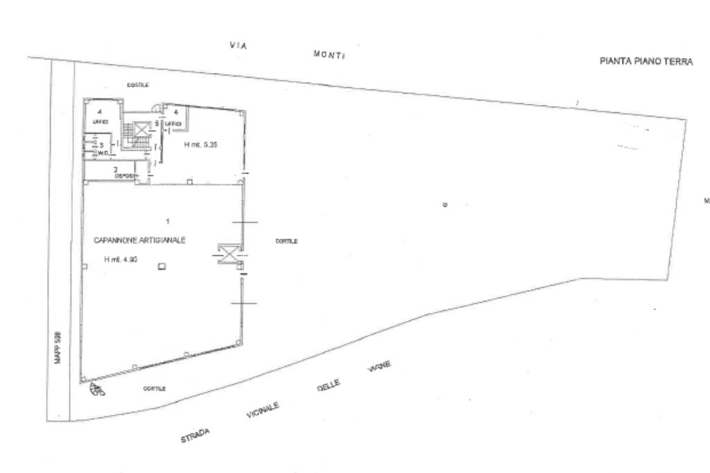
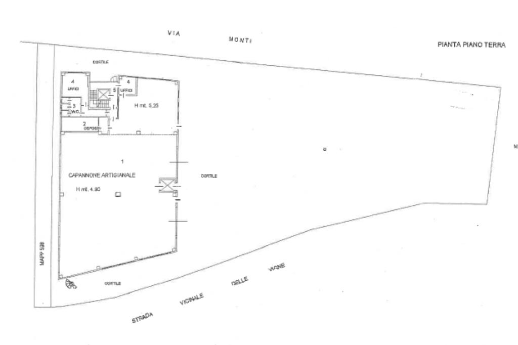
Nel comune di Seregno, proponiamo in vendita un capannone con piazzale di recente costruzione caratterizzato dalla vicinanza di accesso alla statale Milano-Lecco.

Superficie fondiaria del lotto pari a mq 3600, di cui superficie coperta mq 950.

Capacità edificatoria residua per ampliamento zona produttiva per ulteriori mq 700 con altezza mt 12.

La proprietà edificata si sviluppa su due livelli e nello specifico come segue:

Piano terra 950mq: magazzino con altezza sotto solaio di mt 5 per una superficie di circa 815 mq. Presente doppio portone motorizzato tutt'altezza e con larghezza mt 6.

Completa la superficie locali dedicati ad uffici e servizi al piano.

Piano Primo 950mq: deposito di circa 700mq oltre 250mq destinati ad uffici di rappresentanza .

Il magazzino al piano primo dispone della predisposizione per l'installazione di un montacarichi su vano in cemento armato dedicato, oltre doppia banchina di carico in quota con portoni automatizzati con carico da piazzale della larghezza di mt 5 ed altezza mt 3,5.

Portata solaio piano primo 3000kg.

Servizi: Uffici serviti da ascensore, assenza di barriere architettoniche, servizi igienici ai piani con blocco bagni dedicato alla zona magazzino con spogliatoi.

Presenti corpi luce in abbassamento ai locali uffici riscaldati da pompa di calore a metano caldo/freddo.

Uffici collegati con porte REI dedicate alla zona magazzino per entrambi i piani.

Piazzale: 2600mq con doppio accesso carrabile entrata/uscita.

Volumetria residua edificatoria in ampliamento alla costruzione esistente. Accesso diretto da strada collegata alla Statale Milano-Lecco.

Edificio del 2015. Impianti presenti ed a norma con potenza contatore 30Kw.

Disponibilità da 10 a 12 mesi.

Mostra tutto

Nelle vicinanze

Trasporto pubblico Trasporto pubblico
stazione di Seregno
stazione di Seregno
1,5 Km
Servizio urbano di Seregno: linea 1  - VIA MONTELLO ‐ Monte Grappa
Servizio urbano di Seregno: linea 1 - VIA MONTELLO ‐ Monte Grappa
570 m
Servizio urbano di Seregno Linea 1 - VIA MONTELLO-Alfieri
Servizio urbano di Seregno Linea 1 - VIA MONTELLO-Alfieri
580 m
Ricariche auto elettriche Ricariche auto elettriche
In's Mercato
960 m
Piazza Grandi
2,7 Km
Krealpool SRL
2,8 Km
Scuole Scuole
Scuola secondaria di secondo grado paritaria "Istituto Paci"
420 m
Istituto Tecnico Commerciale e per Geometri Primo Levi
490 m
Scuola media statale L. Don Milani
570 m
Scuola Primaria Luigi Cadorna
610 m
Istituto di Istruzione Superiore Martino Bassi
620 m
Farmacia Farmacia
Farmacia
530 m
Beretta Emanuele
900 m
Farmacia Santagostino
1,1 Km
Lloyds Farmacia San Salvatore
1,1 Km
Farmacia Gilardelli
1,1 Km
Ospedali Ospedali
Ospedale Trabattoni e Ronzoni
980 m
Dedalo Psicologia
2,3 Km
policlinico di Monza
2,4 Km
Bianalisi s.r.l. Analisi Mediche
2,6 Km
Ospedale Vittorio Emanuele III
2,8 Km
Supermercati Supermercati
Esselunga
1,1 Km
Simply
1,1 Km
Simply Market
1,1 Km
Iperal
1,5 Km
Supermercati U2
1,8 Km
Negozi Negozi
Antico forno
500 m
Passa che ti passa
570 m
Dell'Orto Gianpaolo
590 m
Dell'Orto Gianpaolo tessuti
620 m
Gatti ...il pane
650 m
Bar Bar
Kiss Kiss Cafè
470 m
Pacha'
610 m
Bar Tabacchi Liett
640 m
MOLTO Club & Restaurant
690 m
Bar 13
690 m
Ristoranti Ristoranti
Mystic Pizza
370 m
Ristorante Mediterraneo
560 m
Il Capriccio 2
570 m
La Botte pizzeria e birreria
620 m
Trattoria del Barbisa
630 m
Mostra tutto

Caratteristiche

Rif.:
61154018
Piano:
2 di 2 con ascensore (Piano basso)
Posti auto:
50
Balconi:
2
Condizionamento:
Autonomo
Ascensore:
Mostra tutto
Prezzo Prezzo
€ 1.850.000
Rata mutuo Rata mutuo
€ 8.767 / mese
Spese annue Spese annue
€ 0
Proponi il tuo prezzoProponi il tuo prezzo

Classe Energetica

C
C
C
C
C
C
C
C
C
EP globale non rinnovabile:
78.00 kW h/m² anno
EP globale rinnovabile:
36.00 kW h/m² anno
EP invernale del fabbricato:
EP estiva del fabbricato:
Anno di costruzione:
2015
Riscaldamento:
Autonomo
Tipo impianto:
Ad aria
Tipo alimentazione:
Metano

Ti interessa visionare l'immobile?

Fissa un appuntamento  Fissa un appuntamento

Richiedi informazioni

Clicca su Leggi per aprire l'informativa
* Questi campi sono obbligatori

Calcola il tuo mutuo

Semplice e senza impegno
Anticipo

( % )
Mutuo

( % )

pochi semplici passi

inserisci i tuoi dati
Questionario completato
Grazie per aver richiesto un appuntamento senza impegno con un nostro Consulente del Credito e Assicurativo.

Hai inserito correttamente tutti i dati necessari e a breve riceverai una e-mail con un link da convalidare per inviare i tuoi dati.
Affiliato
Studio Perillo Srl
Via Locatelli, 24 20834 Nova Milanese (MB)

Il nostro staff


  • Noureddine Abouhafs
    Collaboratore

  • Leyslany Isabel Cardona Montana
    Collaboratrice

  • Noah Roberto Di Giambattista
    Collaboratore

  • Edy Gobbi
    Coordinatrice

  • Alessia Giannì
    Collaboratrice

  • Afra Thalia Lopez
    Collaboratrice

  • Nicolò Pasquali
    Collaboratore

  • Giorgia Trizio
    Collaboratrice

  • Nicola Perillo
    Affiliato
Via Locatelli, 24 20834 Nova Milanese (MB)
Zona: Nova Milanese-Lissone- Desio-Macherio- Biassono- Sovico- Albiate
Mostra su mappa
Orari: Dal lunedì al venerdì dalle 09:00 alle 12:30 e dalle 14:00 alle 19:00 - Sabato su appuntamento dalle 09:00 alle 12:30.
Affiliato
Studio Perillo Srl
Via Locatelli, 24 20834 Nova Milanese (MB)

2026 Tecnocasa Franchising S.p.A. - P. IVA 08365160152 - Via Monte Bianco 60/A 20089 Rozzano (MI). Ogni agenzia ha un proprio titolare ed è autonoma. Privacy policy | Policy utilizzo | Cookie policy