Capannone in vendita

Nova Milanese, Via Antonio Meucci
€ 570.000
6 locali 6 locali
880 Mq 880 Mq
3 bagni 3 bagni

Capannone in vendita

Nova Milanese, Via Antonio Meucci

Descrizione annuncio

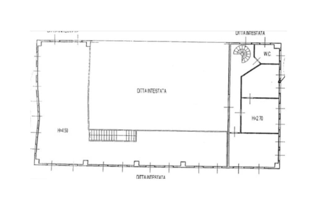
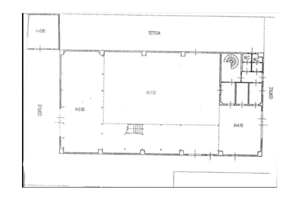
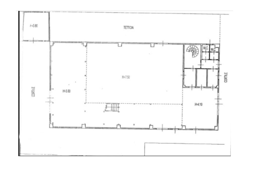
CAPANNONE INDIPENDENTE IN VENDITA – 880 MQ A Nova Milanese

Proponiamo in vendita capannone di 880 mq COMPLESSIVI, completamente indipendente su quattro lati, ideale per attività produttive, logistiche o di deposito.

Composizione Interna:

- Area produttiva di 430 mq.

- Tettoia esterna di circa 148 mq.

- Soppalco di circa 210 mq.

- Area Uffici al piano superiore di circa 100 mq.

- Area estrerna di circa 482 mq.

L’immobile è dotato di ampia area esterna recintata, perfettamente sfruttabile per carico e scarico merci, manovra mezzi pesanti e parcheggi.

L’accesso avviene tramite portone carrabile di 4 x 4 metri, che garantisce facilità di ingresso anche per automezzi di grandi dimensioni.

La struttura presenta un’altezza interna al colmo di 7,50 metri, caratteristica che consente un’ottima capacità di stoccaggio e l’installazione di impianti industriali. È presente un soppalco con altezza di 3 metri, utilizzabile come area operativa o magazzino.

Al piano terra serve l’area produttiva due servizi igienici separati (maschile e femminile).

Completa la proprietà una tettoia esterna coperta, ideale come area di carico protetta o spazio accessorio.

Libero in 3-4 mesi.

Soluzione ideale per aziende che cercano un immobile indipendente, versatile e immediatamente operativo, in un contesto adatto ad attività industriali e artigianali.

Mostra tutto

Nelle vicinanze

Trasporto pubblico Trasporto pubblico
Palazzolo Milanese
Palazzolo Milanese
2,7 Km
1° Maggio (Cinisello Balsamo)
1° Maggio (Cinisello Balsamo)
2,9 Km
Monte Ortigara (Cinisello Balsamo)
Monte Ortigara (Cinisello Balsamo)
3,0 Km
Trasporto pubblico
170 m
Via Garibaldi - Via Brodolini (Nova Milanese)
Via Garibaldi - Via Brodolini (Nova Milanese)
300 m
Ricariche auto elettriche Ricariche auto elettriche
Centro Commerciale Brianza
1,3 Km
LIDL Muggiò
2,8 Km
Scuole Scuole
Scuola Primaria Giuseppina F. Quarello
490 m
Scuola Primaria Anna Frank
1,1 Km
Scuola Secondaria di I grado "T. Croci"
1,1 Km
Scuola Secondaria di primo grado Giovanni XXIII
1,1 Km
Scuola Primaria Ignoto Militi
1,1 Km
Farmacia Farmacia
Farmacia Nova
400 m
Futura
870 m
Grandi
1,0 Km
Comunale 1
1,1 Km
Comunale n. 4
1,2 Km
Ospedali Ospedali
Ospedale
2,9 Km
Clinica San Carlo
2,9 Km
Supermercati Supermercati
Carrefour Express EREDI MARCHESI SRL
530 m
Famila
770 m
Carrefour Paderno
1,2 Km
LD Market
1,3 Km
Unes
1,3 Km
Negozi Negozi
Negozi
1,0 Km
L'Angolo Del Forno
1,5 Km
Cooperativa Achille Grandi
2,3 Km
Il forno dei Michelazzo
2,5 Km
Ghezzi
2,5 Km
Bar Bar
Bar
970 m
Bar Magie
1,9 Km
Emotion
2,0 Km
Bar Commercio
2,6 Km
Bar Portici
2,6 Km
Ristoranti Ristoranti
MU fish
80 m
Il Girasole
260 m
Pizzeria Napoletana 081
560 m
Ristorante El Calderin
1,2 Km
Bar Ristorante - Sirenella
1,2 Km
Mostra tutto

Caratteristiche

Rif.:
61163300
Piano:
2 di 2 (Piano terra)
Condizionamento:
Autonomo
Ascensore:
No
Riscaldamento:
Autonomo
Giardino:
Privato
Mostra tutto
Prezzo Prezzo
€ 570.000
Rata mutuo Rata mutuo
€ 2.662 / mese
Spese annue Spese annue
€ 0
Proponi il tuo prezzoProponi il tuo prezzo

Altre caratteristiche

Descrizione dei locali
Bagno Con Finestra

Classe Energetica

D
D
D
D
D
D
D
D
D
EP globale non rinnovabile:
357.00 kW h/m² anno
EP globale rinnovabile:
34.00 kW h/m² anno
EP invernale del fabbricato:
EP estiva del fabbricato:
Anno di costruzione:
1990
Riscaldamento:
Autonomo
Tipo impianto:
A radiatori
Tipo alimentazione:
Metano

Ti interessa visionare l'immobile?

Fissa un appuntamento  Fissa un appuntamento

Richiedi informazioni

Clicca su Leggi per aprire l'informativa
* Questi campi sono obbligatori

Calcola il tuo mutuo

Semplice e senza impegno
Anticipo

( % )
Mutuo

( % )

pochi semplici passi

inserisci i tuoi dati
Questionario completato
Grazie per aver richiesto un appuntamento senza impegno con un nostro Consulente del Credito e Assicurativo.

Hai inserito correttamente tutti i dati necessari e a breve riceverai una e-mail con un link da convalidare per inviare i tuoi dati.
Affiliato
Studio Perillo Srl
Via Locatelli, 24 20834 Nova Milanese (MB)

Il nostro staff


  • Noureddine Abouhafs
    Collaboratore

  • Leyslany Isabel Cardona Montana
    Collaboratrice

  • Noah Roberto Di Giambattista
    Collaboratore

  • Edy Gobbi
    Coordinatrice

  • Alessia Giannì
    Collaboratrice

  • Afra Thalia Lopez
    Collaboratrice

  • Roberta Perillo
    Collaboratrice

  • Nicolò Pasquali
    Collaboratore

  • Giorgia Trizio
    Collaboratrice

  • Nicola Perillo
    Affiliato
Via Locatelli, 24 20834 Nova Milanese (MB)
Zona: Nova Milanese-Lissone- Desio-Macherio- Biassono- Sovico- Albiate
Mostra su mappa
Orari: Dal lunedì al venerdì dalle 09:00 alle 12:30 e dalle 14:00 alle 19:00 -Sabato dalle 09.00 alle 12.30
Affiliato
Studio Perillo Srl
Via Locatelli, 24 20834 Nova Milanese (MB)

2026 Tecnocasa Franchising S.p.A. - P. IVA 08365160152 - Via Monte Bianco 60/A 20089 Rozzano (MI). Ogni agenzia ha un proprio titolare ed è autonoma. Privacy policy | Policy utilizzo | Cookie policy