Capannone in affitto

Muggiò, Via Como
€ 2.000 / mese
2 locali 2 locali
330 Mq 330 Mq
2 bagni 2 bagni

Capannone in affitto

Muggiò, Via Como

Descrizione annuncio

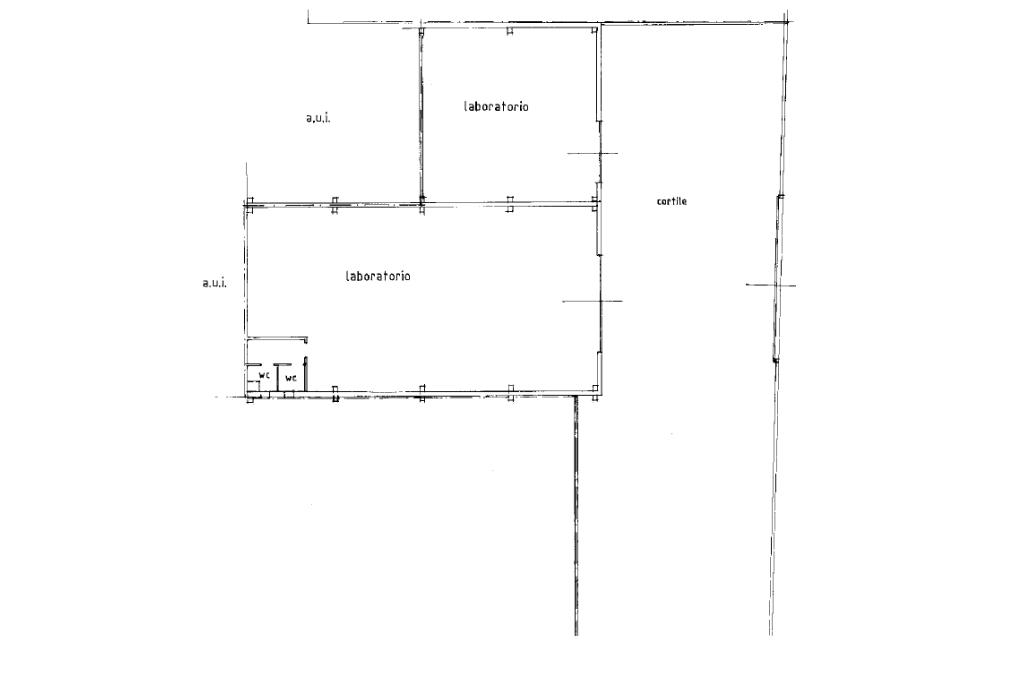
Proponiamo in affitto un capannone con destinazione d’uso C3, suddiviso in due locali funzionali.

L’immobile è ideale per attività artigianali, laboratori e piccole produzioni.

Il primo locale, di 175 m², presenta un’altezza minima di 7,00m e massima di 7,72 m, con un portone di 5,00 m x 5,00 m, facilitando l'accesso a mezzi pesanti. È presente un impianto elettrico funzionante e certificato e carroponte di portata massima di 10 tonnellate, revisionato.

Assente impianto di riscaldamento e condizionamento.

Il secondo locale, di 80 m², ha un’altezza minima 3,50 m e massima di 4,30 m.

Anche in questo locale, l'impianto elettrico è funzionante e certificato, ma non sono presenti impianti di riscaldamento e condizionamento.

L'area esterna privata di 371 m² offre ampi spazi di manovra e parcheggio, con accesso carraio indipendente e recinzione perimetrale.

L'immobile è stato costruito nel 1970 e si presenta in buono stato di conservazione.

È disponibile per la locazione con disponibilità immediata.

Richiesti tre mesi di deposito cauzionale oltre tre mesi anticipati .

Mostra tutto

Nelle vicinanze

Trasporto pubblico Trasporto pubblico
Lissone-Muggiò
Lissone-Muggiò
2,5 Km
Monte Ortigara (Cinisello Balsamo)
Monte Ortigara (Cinisello Balsamo)
3,0 Km
Trasporto pubblico
490 m
Monza, Via della Taccona 36
Monza, Via della Taccona 36
1,1 Km
Ricariche auto elettriche Ricariche auto elettriche
LIDL Muggiò
1,2 Km
Lidl Lissone
2,5 Km
U2 Supermercato Monza Via Marsala | ENELX
2,6 Km
Scuole Scuole
Scuola Primaria Ada Negri
530 m
Istituto Comprensivo Statale Salvo D'Acquisto
540 m
Scuola Secondaria di Primo Grado Salvo D'Acquisto
570 m
Scuola Primaria Alcide De Gasperi
620 m
Scuola Secondaria di Primo Grado Carlo Urbani
1,0 Km
Farmacia Farmacia
Farmacia Comunale n°2
420 m
Farmacia
1,0 Km
Farmacia Comunale n°1
1,1 Km
Comunale n. 3 - Muggiò
1,3 Km
San Carlo
1,6 Km
Supermercati Supermercati
Crai
900 m
SuperDì
1,0 Km
Penny Market
1,1 Km
Lidl
1,2 Km
Coop
1,3 Km
Negozi Negozi
Gabry
1,0 Km
Adrenaline
1,2 Km
adidas & reebok outlet store
1,5 Km
Cienne
1,5 Km
Terranova
1,7 Km
Bar Bar
Trenta 5
850 m
Prince Café
1,1 Km
Evo 95
1,1 Km
Bar
1,3 Km
Bar "Babel"
1,6 Km
Ristoranti Ristoranti
Bella Europa
480 m
Donn Angelin
840 m
Anima
880 m
Agriturismo Verpe più
940 m
Il Porto
1,0 Km
Mostra tutto

Caratteristiche

Rif.:
61062487
Piano:
Terra
Condizionamento:
Assente
Ascensore:
No
Riscaldamento:
Autonomo
Giardino:
Privato
Mostra tutto
Prezzo Prezzo
€ 2.000 / mese
Spese annue Spese annue
€ 0

Classe Energetica

G
G
G
G
G
G
G
G
G
EP globale non rinnovabile:
127.64 kW h/m² anno
EP globale rinnovabile:
127.64 kW h/m² anno
EP invernale del fabbricato:
EP estiva del fabbricato:
Anno di costruzione:
1970
Riscaldamento:
Autonomo
Tipo impianto:
Ad aria
Tipo alimentazione:
Metano

Ti interessa visionare l'immobile?

Fissa un appuntamento  Fissa un appuntamento

Richiedi informazioni

* Questi campi sono obbligatori
Affiliato
Studio Perillo Srl
Via Locatelli, 24 20834 Nova Milanese (MB)

Il nostro staff


  • Noureddine Abouhafs
    Collaboratore

  • Edy Gobbi
    Coordinatrice

  • Afra Thalia Lopez
    Collaboratrice

  • Giorgia Trizio
    Collaboratrice

  • Chiara Tosi
    Coordinatrice

  • Nicola Perillo
    Affiliato
Via Locatelli, 24 20834 Nova Milanese (MB)
Zona: Nova Milanese-Lissone- Desio-Macherio- Biassono- Sovico- Albiate
Mostra su mappa
Orari: Dal lunedì al venerdì dalle 09:00 alle 12:30 e dalle 14:00 alle 19:00 -Sabato dalle 09.00 alle 12.30
Affiliato
Studio Perillo Srl
Via Locatelli, 24 20834 Nova Milanese (MB)

2025 Tecnocasa Franchising S.p.A. - P. IVA 08365160152 - Via Monte Bianco 60/A 20089 Rozzano (MI). Ogni agenzia ha un proprio titolare ed è autonoma. Privacy policy | Policy utilizzo | Cookie policy