Ufficio in vendita

Monza, Via A. Boito
€ 237.000
Prezzo aggiornato
2 locali 2 locali
135 Mq 135 Mq
2 bagni 2 bagni

Ufficio in vendita

Monza, Via A. Boito

Descrizione annuncio

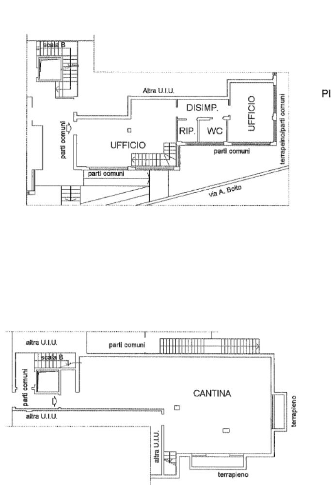
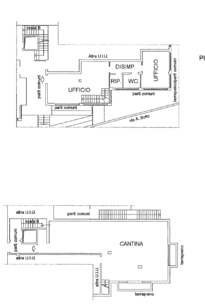
In via Arrigo Boito, in una delle zone più richieste e servite della città di Monza, a ridosso delle principali arterie di collegamento, proponiamo in vendita elegante ufficio su due livelli, inserito in un contesto condominiale curato e rappresentativo, dotato di ascensore.

L’immobile, completamente ristrutturato, si sviluppa al piano terra e piano interrato, collegati da scala interna, e si distingue per ambienti moderni, funzionali e rifiniti con grande attenzione ai dettagli.

La distribuzione interna è razionale e versatile, ideale per accogliere studi professionali, attività direzionali, studi medici e società di servizi.

L’accesso avviene attraverso una zona reception accogliente e ben organizzata, a cui segue un locale indipendente, perfetto come sala riunioni o ufficio direzionale. Gli spazi, finestrati e luminosi, consentono la realizzazione di molteplici postazioni di lavoro, garantendo comfort e privacy operativa.

L’ufficio dispone di doppi servizi, uno per ciascun livello, oltre a un pratico angolo snack/ristoro.

È dotato di impianto di climatizzazione, riscaldamento centralizzato con gestione condominiale, impianti a norma, videocitofono e risulta libero subito.

La costruzione risale a circa vent’anni fa e si presenta in ottime condizioni generali.

Elemento di assoluto valore è il box triplo di circa 56 mq, incluso nel prezzo; è inoltre presente possibilità di sosta antistante l’immobile.

Completa la proposta la possibilità di cambio di destinazione d’uso, rendendo l’investimento ulteriormente flessibile e interessante.

Soluzione ideale per chi ricerca un ufficio pronto all’uso, rappresentativo e strategicamente posizionato nel cuore di Monza.

Mostra tutto

Nelle vicinanze

Trasporto pubblico Trasporto pubblico
Monza
Monza
2,2 Km
Lissone-Muggiò
Lissone-Muggiò
2,3 Km
Via Boito - Via Beethoven (Cazzaniga)
Via Boito - Via Beethoven (Cazzaniga)
50 m
Via Boito - Via della Birona (Cazzaniga)
Via Boito - Via della Birona (Cazzaniga)
130 m
Monza Sobborghi
Monza Sobborghi
2,4 Km
Ricariche auto elettriche Ricariche auto elettriche
Sporting Club Monza
1,0 Km
Lidl Lissone
1,2 Km
U2 Supermercato Monza Via Marsala | ENELX
2,2 Km
Penny Market
3,0 Km
Scuole Scuole
Scuola Primaria Bachelet
240 m
Scuola Secondaria di Primo Grado Elisa Sala
300 m
Scuola Primaria Salvo D'Acquisto
380 m
Collegio Villoresi San Giuseppe
640 m
Scuola Primaria Alessandro Volta
930 m
Farmacia Farmacia
Farmacia Comunale n. 2
120 m
Farmacia Zecca
560 m
Comunale n. 10
790 m
Farmacia Rondò
1,0 Km
Farmacia Moretti
1,1 Km
Ospedali Ospedali
Ospedale San Gerardo
800 m
Istituti Clinici Zucchi
1,4 Km
Centro Medico
2,9 Km
Supermercati Supermercati
Carrefour Market
170 m
Iper
580 m
Sigma
870 m
Bennet
960 m
Lidl
1,1 Km
Negozi Negozi
Le Golosità del Forno
540 m
NaturaSì
570 m
Il Regno del Pane
690 m
Carrefour Express
690 m
Baby Stockeria
820 m
Bar Bar
Wine Bar San Biagio
890 m
Goodfellas
1,1 Km
Velvet
1,2 Km
zero3nove
1,4 Km
Bar
1,4 Km
Ristoranti Ristoranti
O'Vesuvio
290 m
Rosso Pomodoro
450 m
Il Giardino di Giada
460 m
La Villetta
520 m
La Pergola
550 m
Mostra tutto

Caratteristiche

Rif.:
61166892
Piano:
Su più livelli di 3 con ascensore
Totale piani:
3
Box:
3
Condizionamento:
Autonomo
Ascensore:
Mostra tutto
Prezzo Prezzo
€ 237.000
Rata mutuo Rata mutuo
€ 1.107 / mese
Spese annue Spese annue
€ 4.300
Proponi il tuo prezzoProponi il tuo prezzo

Classe Energetica

D
D
D
D
D
D
D
D
D
EP globale non rinnovabile:
271.94 kW h/m² anno
EP globale rinnovabile:
15.91 kW h/m² anno
EP invernale del fabbricato:
EP estiva del fabbricato:
Anno di costruzione:
2008
Riscaldamento:
Centralizzato
Tipo impianto:
A radiatori
Tipo alimentazione:
Metano

Prezzo ridotto di €1 (1%%)

Ti interessa visionare l'immobile?

Fissa un appuntamento  Fissa un appuntamento

Richiedi informazioni

Clicca su Leggi per aprire l'informativa
* Questi campi sono obbligatori

Calcola il tuo mutuo

Semplice e senza impegno
Anticipo

( % )
Mutuo

( % )

pochi semplici passi

inserisci i tuoi dati
Questionario completato
Grazie per aver richiesto un appuntamento senza impegno con un nostro Consulente del Credito e Assicurativo.

Hai inserito correttamente tutti i dati necessari e a breve riceverai una e-mail con un link da convalidare per inviare i tuoi dati.
Affiliato
Studio Perillo Srl
Via Locatelli, 24 20834 Nova Milanese (MB)

Il nostro staff


  • Noureddine Abouhafs
    Collaboratore

  • Leyslany Isabel Cardona Montana
    Collaboratrice

  • Noah Roberto Di Giambattista
    Collaboratore

  • Edy Gobbi
    Coordinatrice

  • Alessia Giannì
    Collaboratrice

  • Afra Thalia Lopez
    Collaboratrice

  • Roberta Perillo
    Collaboratrice

  • Nicolò Pasquali
    Collaboratore

  • Giorgia Trizio
    Collaboratrice

  • Nicola Perillo
    Affiliato
Via Locatelli, 24 20834 Nova Milanese (MB)
Zona: Nova Milanese-Lissone- Desio-Macherio- Biassono- Sovico- Albiate
Mostra su mappa
Orari: Dal lunedì al venerdì dalle 09:00 alle 12:30 e dalle 14:00 alle 19:00 -Sabato dalle 09.00 alle 12.30
Affiliato
Studio Perillo Srl
Via Locatelli, 24 20834 Nova Milanese (MB)

2026 Tecnocasa Franchising S.p.A. - P. IVA 08365160152 - Via Monte Bianco 60/A 20089 Rozzano (MI). Ogni agenzia ha un proprio titolare ed è autonoma. Privacy policy | Policy utilizzo | Cookie policy