Laboratorio in affitto

Lissone, Via Angelo Agostoni
€ 2.000 / mese
3 locali 3 locali
300 Mq 300 Mq
2 bagni 2 bagni

Laboratorio in affitto

Lissone, Via Angelo Agostoni

Descrizione annuncio

Proponiamo in locazione unità immobiliare con destinazione catastale C/3, situata in posizione strategica nel comune di Lissone.

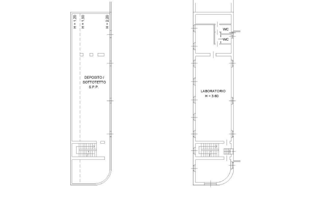
L’immobile si sviluppa su tre livelli, collegati internamente da vano scala ad uso esclusivo, e si presta in modo funzionale ad attività artigianali, studi tecnici o laboratori professionali.
Superficie complessiva pari a 300 mq.

Composizione interna:

Piano terra: ingresso indipendente da strada pubblica, costituito da un corridoio di accesso che conduce a un locale di circa 24 mq. L’accesso diretto e riservato garantisce piena autonomia operativa.

Piano primo: sul lato sinistro, in prossimità della scala interna, si sviluppa un ampio open space di circa 100 mq, a cui si aggiungono locali accessori e servizi per ulteriori circa 50 mq. Sul lato destro, in corrispondenza del vano scala, è presente un ulteriore locale di circa 24 mq, con layout speculare rispetto a quello del piano terra.

Piano sottotetto: ambiente non abitabile, adatto a utilizzo come deposito, archivio o area di stoccaggio materiali non voluminosi.

L’unità è completamente autonoma, priva di spese condominiali, dotata di impiantistica indipendente e facilmente personalizzabile secondo le esigenze dell’attività.

Richiesti tre mesi di deposito cauzionale oltre tre mesi anticipati .

Canone mensile richiesto comprensivo di IVA.

Mostra tutto

Nelle vicinanze

Trasporto pubblico Trasporto pubblico
Lissone-Muggiò
Lissone-Muggiò
260 m
Desio
Desio
1,9 Km
Via Matteotti - Via Carducci (Lissone)
Via Matteotti - Via Carducci (Lissone)
80 m
Trasporto pubblico
170 m
Ricariche auto elettriche Ricariche auto elettriche
Lidl Lissone
1,2 Km
Sporting Club Monza
2,7 Km
Scuole Scuole
IIS-IPSIA Giuseppe Meroni
370 m
Scuola Primaria Torquato Tasso
540 m
Scuola Secondaria di Primo Grado Benedetto Croce
640 m
Scuola Primaria Dante Alighieri
720 m
Scuola Secondaria di Primo Grado E. Farè
900 m
Farmacia Farmacia
Farmacia Pozzi
50 m
Farmacia Centrale
440 m
Farmacia Comunale n. 1
440 m
Parafarmacia Dott.ssa Citterio
490 m
Nuova
530 m
Ospedali Ospedali
Ospedale di Lissone
1,3 Km
Ospedale San Gerardo
2,0 Km
Supermercati Supermercati
Iperal
420 m
Carrefour Market
560 m
U2
650 m
IN's Mercato
710 m
Esselunga
980 m
Negozi Negozi
Complici
150 m
Spiga di Grano
190 m
Cashmere Mania
230 m
Brums
250 m
Grey
250 m
Bar Bar
Bar Il Falco
400 m
Uncle Paul
1,0 Km
Real Beach
1,2 Km
Level
1,3 Km
Evo 95
1,7 Km
Ristoranti Ristoranti
Profumi Italiani
30 m
Miseria e Nobiltà
150 m
Officina della Pizza
170 m
Anema e Core
230 m
Pizzeria P
240 m
Mostra tutto

Caratteristiche

Rif.:
61055158
Piano:
Alto
Condizionamento:
Autonomo
Ascensore:
No
Riscaldamento:
Autonomo
Libero:
Mostra tutto
Prezzo Prezzo
€ 2.000 / mese
Spese annue Spese annue
€ 0

Classe Energetica

G
G
G
G
G
G
G
G
G
EP globale non rinnovabile:
127.64 kW h/m² anno
EP globale rinnovabile:
127.64 kW h/m² anno
EP invernale del fabbricato:
EP estiva del fabbricato:
Anno di costruzione:
1940
Riscaldamento:
Autonomo
Tipo impianto:
A radiatori
Tipo alimentazione:
Metano

Ti interessa visionare l'immobile?

Fissa un appuntamento  Fissa un appuntamento

Richiedi informazioni

Clicca su Leggi per aprire l'informativa
* Questi campi sono obbligatori
Affiliato
Studio Perillo Srl
Via Locatelli, 24 20834 Nova Milanese (MB)

Il nostro staff


  • Noureddine Abouhafs
    Collaboratore

  • Leyslany Isabel Cardona Montana
    Collaboratrice

  • Noah Roberto Di Giambattista
    Collaboratore

  • Edy Gobbi
    Coordinatrice

  • Alessia Giannì
    Collaboratrice

  • Afra Thalia Lopez
    Collaboratrice

  • Roberta Perillo
    Collaboratrice

  • Nicolò Pasquali
    Collaboratore

  • Giorgia Trizio
    Collaboratrice

  • Nicola Perillo
    Affiliato
Via Locatelli, 24 20834 Nova Milanese (MB)
Zona: Nova Milanese-Lissone- Desio-Macherio- Biassono- Sovico- Albiate
Mostra su mappa
Orari: Dal lunedì al venerdì dalle 09:00 alle 12:30 e dalle 14:00 alle 19:00 -Sabato dalle 09.00 alle 12.30
Affiliato
Studio Perillo Srl
Via Locatelli, 24 20834 Nova Milanese (MB)

2026 Tecnocasa Franchising S.p.A. - P. IVA 08365160152 - Via Monte Bianco 60/A 20089 Rozzano (MI). Ogni agenzia ha un proprio titolare ed è autonoma. Privacy policy | Policy utilizzo | Cookie policy