Deposito in vendita

Lissone, Via C de Capitani da Vimercate
€ 24.000
1 locale 1 locale
35 Mq 35 Mq

Deposito in vendita

Lissone, Via C de Capitani da Vimercate

Descrizione annuncio

Proponiamo in vendita Deposito a Lissone in posizione strategica e facilmente raggiungibile grazie al collegamento con la SS36.

Caratteristiche principali:

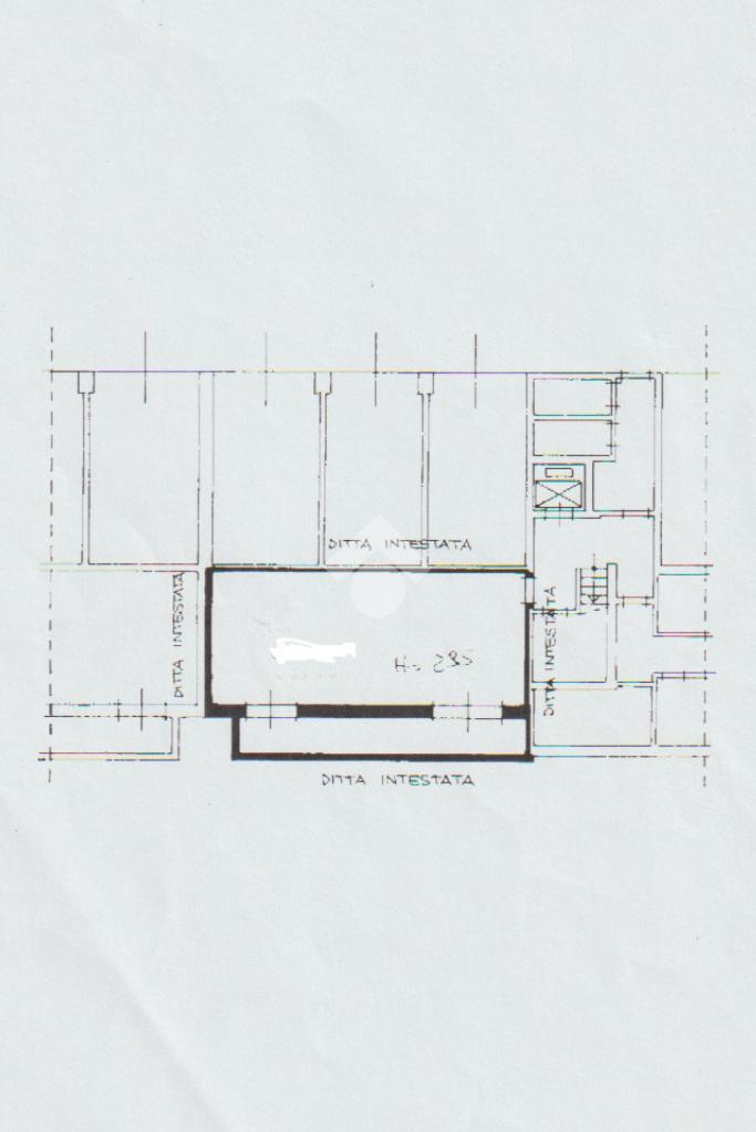
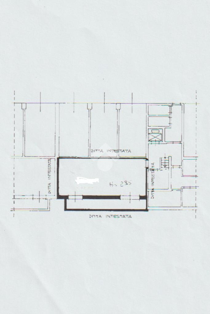
Superficie di circa 40 mq.

Piano Seminterrato con doppio ingresso tramite rampa per carico e scarico merce e da ingresso condominiale.

Il Deposito risulta adatto ad attività di deposito.

Categoria catastale C/2

Spese condominiali di circa €300,00 annui

Non perdere questa occasione! Contattaci per maggiori informazioni e per organizzare una visita.

Mostra tutto

Nelle vicinanze

Trasporto pubblico Trasporto pubblico
Lissone-Muggiò
Lissone-Muggiò
260 m
Desio
Desio
1,9 Km
Trasporto pubblico
280 m
Lissone Via Carducci 43
Lissone Via Carducci 43
310 m
Ricariche auto elettriche Ricariche auto elettriche
Lidl Lissone
1,4 Km
Sporting Club Monza
2,9 Km
Scuole Scuole
Scuola Primaria Torquato Tasso
160 m
IIS-IPSIA Giuseppe Meroni
180 m
Scuola Secondaria di Primo Grado Benedetto Croce
1,0 Km
Scuola Secondaria di Primo Grado E. Farè
1,1 Km
Scuola Primaria Dante Alighieri
1,1 Km
Farmacia Farmacia
Farmacia Comunale n. 1
290 m
Farmacia Pozzi
380 m
Farmacia Centrale
850 m
Parafarmacia Dott.ssa Citterio
860 m
Nuova
940 m
Ospedali Ospedali
Ospedale di Lissone
1,7 Km
Ospedale San Gerardo
2,2 Km
Supermercati Supermercati
U2
240 m
IN's Mercato
500 m
Esselunga
600 m
Iperal
760 m
Carrefour Market
980 m
Negozi Negozi
City Mode
300 m
Il Forno di via Carducci
330 m
OVS
540 m
Complici
560 m
Cashmere Mania
600 m
Bar Bar
Bar Il Falco
810 m
Real Beach
1,1 Km
Level
1,2 Km
Evo 95
1,3 Km
Prince Café
1,4 Km
Ristoranti Ristoranti
Pasnù
270 m
Trattoria Al Posto Giusto
310 m
Roadhouse Grill
390 m
I 5 Sensi
420 m
Profumi Italiani
440 m
Mostra tutto

Caratteristiche

Rif.:
61163274
Piano:
Seminterrato di 5 con ascensore
Totale piani:
5
Condizionamento:
Assente
Ascensore:
Riscaldamento:
Autonomo
Mostra tutto
Prezzo Prezzo
€ 24.000
Rata mutuo Rata mutuo
€ 113 / mese
Spese annue Spese annue
€ 330
Proponi il tuo prezzoProponi il tuo prezzo

Altre caratteristiche

Descrizione dei locali
Bagno Con Finestra

Classe Energetica

G
G
G
G
G
G
G
G
G
EP globale non rinnovabile:
75.00 kW h/m² anno
EP globale rinnovabile:
455.11 kW h/m² anno
EP invernale del fabbricato:
EP estiva del fabbricato:
Anno di costruzione:
1980
Riscaldamento:
Autonomo
Tipo impianto:
A radiatori
Tipo alimentazione:
Metano

Ti interessa visionare l'immobile?

Fissa un appuntamento  Fissa un appuntamento

Richiedi informazioni

Clicca su Leggi per aprire l'informativa
* Questi campi sono obbligatori

Calcola il tuo mutuo

Semplice e senza impegno
Anticipo

( % )
Mutuo

( % )

pochi semplici passi

inserisci i tuoi dati
Questionario completato
Grazie per aver richiesto un appuntamento senza impegno con un nostro Consulente del Credito e Assicurativo.

Hai inserito correttamente tutti i dati necessari e a breve riceverai una e-mail con un link da convalidare per inviare i tuoi dati.
Affiliato
Studio Perillo Srl
Via Locatelli, 24 20834 Nova Milanese (MB)

Il nostro staff


  • Noureddine Abouhafs
    Collaboratore

  • Leyslany Isabel Cardona Montana
    Collaboratrice

  • Noah Roberto Di Giambattista
    Collaboratore

  • Edy Gobbi
    Coordinatrice

  • Alessia Giannì
    Collaboratrice

  • Afra Thalia Lopez
    Collaboratrice

  • Roberta Perillo
    Collaboratrice

  • Nicolò Pasquali
    Collaboratore

  • Giorgia Trizio
    Collaboratrice

  • Nicola Perillo
    Affiliato
Via Locatelli, 24 20834 Nova Milanese (MB)
Zona: Nova Milanese-Lissone- Desio-Macherio- Biassono- Sovico- Albiate
Mostra su mappa
Orari: Dal lunedì al venerdì dalle 09:00 alle 12:30 e dalle 14:00 alle 19:00 -Sabato dalle 09.00 alle 12.30
Affiliato
Studio Perillo Srl
Via Locatelli, 24 20834 Nova Milanese (MB)

2026 Tecnocasa Franchising S.p.A. - P. IVA 08365160152 - Via Monte Bianco 60/A 20089 Rozzano (MI). Ogni agenzia ha un proprio titolare ed è autonoma. Privacy policy | Policy utilizzo | Cookie policy