Capannone in affitto

Lissone, Via S. Margherita
Informazioni in agenzia
2 locali 2 locali
600 Mq 600 Mq
2 bagni 2 bagni

Capannone in affitto

Lissone, Via S. Margherita

Descrizione annuncio

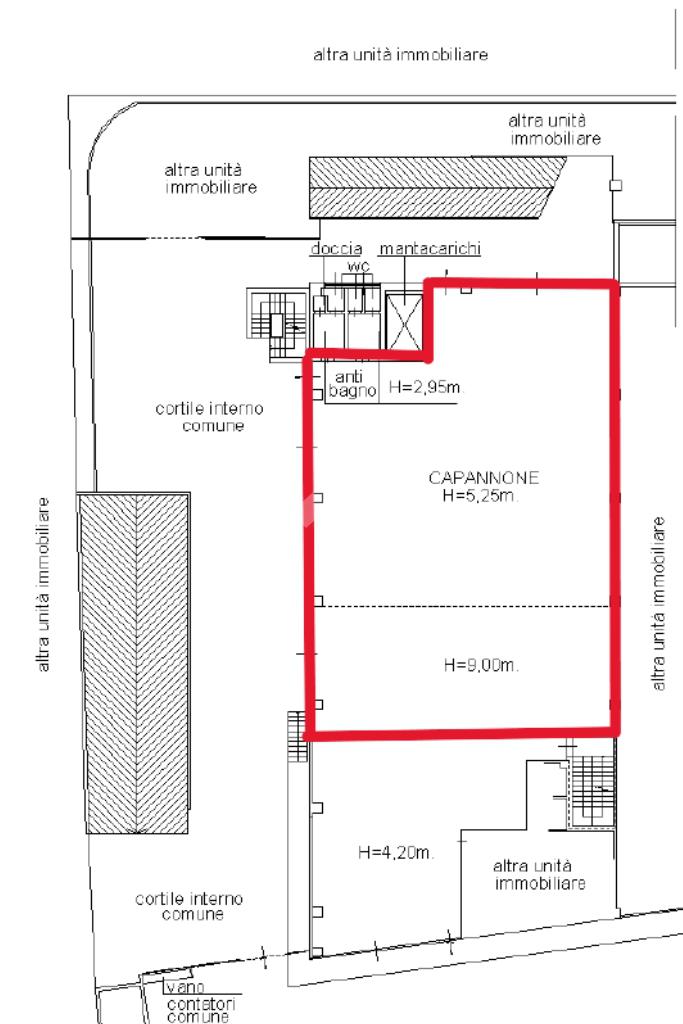
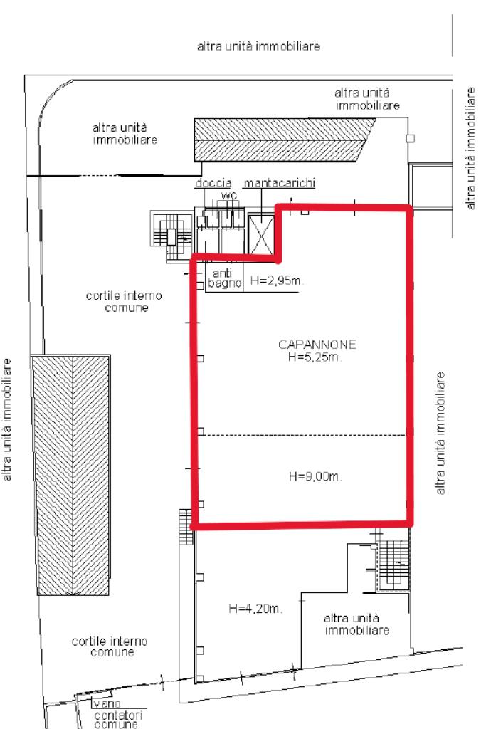
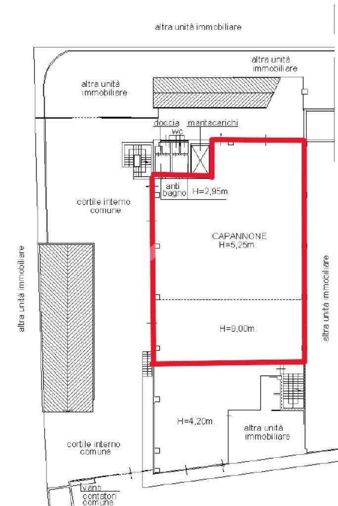
Proponiamo in affitto un servizio di stoccaggio con custode, ideale per aziende che necessitano di spazi logistici per periodi brevi o temporanei.

L’immobile è un capannone industriale con categoria catastale D/7, con una superficie totale di 600 mq, frazionabile in base alle specifiche esigenze operative del cliente.

Il capannone presenta:

Altezza interna di 9 metri al colmo5,25 metri sotto trave, caratteristiche che lo rendono particolarmente adatto ad attività di logisticha e di deposito

Completano la proprietà:

Doppi serviziDoccia

L'immobile si dispone solo per attività ad uso esclusivo di deposito.

Grazie al costante sviluppo della nostra rete, offriamo a ragazzi e ragazze di età compresa tra i 18 e 25 anni la possibilità di formarsi ed avviarsi alla professione di agente immobiliare.

Mostra tutto

Nelle vicinanze

Trasporto pubblico Trasporto pubblico
Desio
Desio
1,6 Km
Lissone-Muggiò
Lissone-Muggiò
2,2 Km
Via Toti - Via Betulla (Lissone)
Via Toti - Via Betulla (Lissone)
280 m
Via Gioberti - Via Missori (Lissone)
Via Gioberti - Via Missori (Lissone)
550 m
Ricariche auto elettriche Ricariche auto elettriche
U2 Supermercato Biassono | EnelX
1,8 Km
Lidl Lissone
2,7 Km
Scuole Scuole
Scuola Primaria Michelangelo Buonarroti
290 m
Scuola Secondaria di Primo Grado Bareggia
660 m
Istituto di Istruzione Superiore Europa Unita
660 m
Scuola Elementare San Giorgio
800 m
Scuole
810 m
Farmacia Farmacia
Farmacia Bareggia
450 m
San Giorgio
810 m
LLoid Comunale n. 2
1,2 Km
Nuova
1,4 Km
Farmacia Centrale
1,6 Km
Ospedali Ospedali
Ospedale di Lissone
570 m
Supermercati Supermercati
Simply
390 m
Di Più
560 m
Effemarket
610 m
LD Market
1,3 Km
Iperal
1,5 Km
Negozi Negozi
Panetteria San Giorgio
610 m
Missaglia
1,4 Km
Saxx
1,5 Km
Nunù
1,5 Km
Negozi
1,5 Km
Bar Bar
Punto Nord
880 m
Uncle Paul
960 m
Joy Village
1,5 Km
Le Le Bahia
1,6 Km
Bar Il Falco
1,7 Km
Ristoranti Ristoranti
Kofler Haus
380 m
Bar San Giorgio dal 1905
580 m
La Nostra Trattoria
590 m
Tango Pizza
950 m
Martin Pescatore
1,0 Km
Mostra tutto

Caratteristiche

Rif.:
61212651
Piano:
2 di 2 (Piano terra)
Posti auto:
3
Condizionamento:
Assente
Ascensore:
No
Riscaldamento:
Autonomo
Mostra tutto
Prezzo Prezzo
Informazioni in agenzia
Spese annue Spese annue
€ 0

Altre caratteristiche

Descrizione dei locali
Bagno Con Finestra

Classe Energetica

G
G
G
G
G
G
G
G
G
EP globale non rinnovabile:
425.89 kW h/m² anno
EP globale rinnovabile:
49.05 kW h/m² anno
EP invernale del fabbricato:
EP estiva del fabbricato:
Anno di costruzione:
2000
Riscaldamento:
Autonomo
Tipo impianto:
A radiatori
Tipo alimentazione:
Metano

Ti interessa visionare l'immobile?

Fissa un appuntamento  Fissa un appuntamento

Richiedi informazioni

Clicca su Leggi per aprire l'informativa
* Questi campi sono obbligatori
Affiliato
Studio Perillo Srl
Via Locatelli, 24 20834 Nova Milanese (MB)

Il nostro staff


  • Noureddine Abouhafs
    Collaboratore

  • Leyslany Isabel Cardona Montana
    Collaboratrice

  • Noah Roberto Di Giambattista
    Collaboratore

  • Edy Gobbi
    Coordinatrice

  • Alessia Giannì
    Collaboratrice

  • Afra Thalia Lopez
    Collaboratrice

  • Nicolò Pasquali
    Collaboratore

  • Giorgia Trizio
    Collaboratrice

  • Nicola Perillo
    Affiliato
Via Locatelli, 24 20834 Nova Milanese (MB)
Zona: Nova Milanese-Lissone- Desio-Macherio- Biassono- Sovico- Albiate
Mostra su mappa
Orari: Dal lunedì al venerdì dalle 09:00 alle 12:30 e dalle 14:00 alle 19:00 - Sabato su appuntamento dalle 09:00 alle 12:30.
Affiliato
Studio Perillo Srl
Via Locatelli, 24 20834 Nova Milanese (MB)

2026 Tecnocasa Franchising S.p.A. - P. IVA 08365160152 - Via Monte Bianco 60/A 20089 Rozzano (MI). Ogni agenzia ha un proprio titolare ed è autonoma. Privacy policy | Policy utilizzo | Cookie policy