Capannone in vendita

Cologno Monzese, Viale pietro mascagni
€ 550.000
2 locali 2 locali
610 Mq 610 Mq

Capannone in vendita

Cologno Monzese, Viale pietro mascagni

Descrizione annuncio

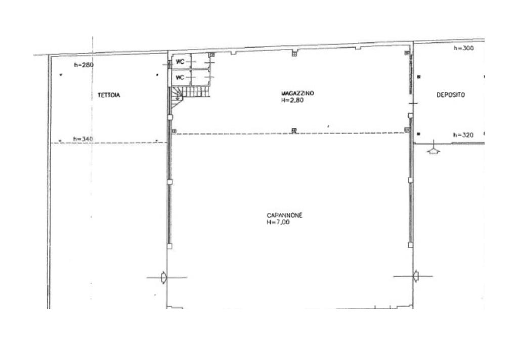
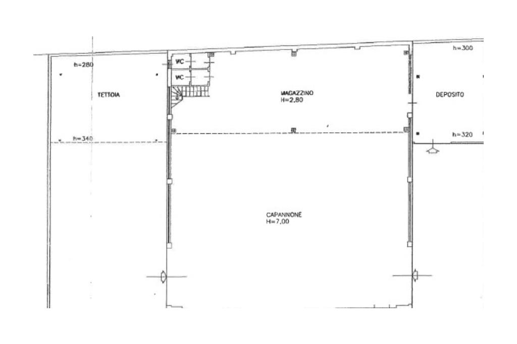
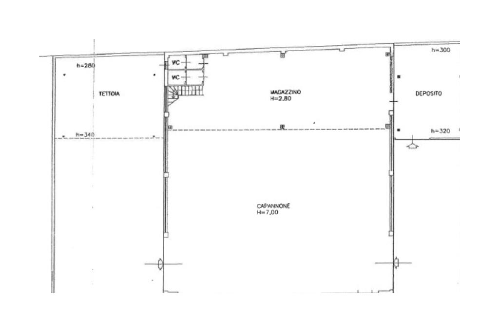
Proponiamo in vendita o locazione capannone industriale di circa 550 mq, con 600 mq di area esterna privata, situato in posizione strategica nelle immediate vicinanze della Tangenziale Est A51, con collegamenti rapidi verso Milano e le principali arterie autostradali.

L’immobile è composto da un’unica campata ed è dotato di carroponte con portata 5 tonnellate, con altezza sotto carroponte di 6 metri e altezza sottotrave di 7 metri, caratteristiche che lo rendono ideale per attività produttive, artigianali o di deposito.

All’interno è presente un soppalco di circa 150 mq, utilizzabile come area magazzino, archivio o spazio operativo aggiuntivo.

Il capannone è inoltre dotato di impianto di riscaldamento con aerotermi Robur.

Categoria catastale D/7.

Disponibilità, all’interno del complesso, di uffici di diverse metrature, acquistabili o locabili separatamente in base alle esigenze dell’attività.

Soluzione ideale per aziende che necessitano di spazi produttivi ben collegati e con area esterna di manovra.

Mostra tutto

Nelle vicinanze

Trasporto pubblico Trasporto pubblico
Cologno Nord
Cologno Nord
1,1 Km
Cologno Centro
Cologno Centro
1,3 Km
Cologno Sud
Cologno Sud
2,1 Km
V.le Lombardia - Via Don Sturzo
V.le Lombardia - Via Don Sturzo
240 m
V.le Lombardia - V.le Toscana
V.le Lombardia - V.le Toscana
310 m
Ricariche auto elettriche Ricariche auto elettriche
Cologno Monzese Pergolesi | EnelX
470 m
Cologno Monzese Buonarroti | EnelX
650 m
Municipio Di Cologno Monzese | EnelX
1,0 Km
COLOGNO MONZESE Toti | ENELX
1,3 Km
COLOGNO MONZESE Tintoretto | ENELX
1,3 Km
Scuole Scuole
Lombardia
310 m
Scuole
430 m
Scuola Primaria Giovanni Pascoli
1,2 Km
Istituto Professionale Enrico Falck
1,4 Km
Scuola Elementare Italo Calvino
1,5 Km
Farmacia Farmacia
Farmacia Desenzani
1,1 Km
Farmacia centrale
1,2 Km
Farmacia dei Mille
1,4 Km
Farmacia Comunale
1,4 Km
Farmacia Moncucco
1,5 Km
Supermercati Supermercati
Esselunga di Cologno Monzese
420 m
Eurospin
490 m
UNES
770 m
Lidl
850 m
Famila superstore
870 m
Negozi Negozi
Conbipel
690 m
Margherita
1,0 Km
IT Fashion
1,1 Km
Michelangelo
1,1 Km
Blu kids
1,1 Km
Bar Bar
L'elemento mancante
1,1 Km
Il Posticino
1,2 Km
Circolo Famigliare
1,3 Km
Corner Bar
1,5 Km
Bar
1,7 Km
Ristoranti Ristoranti
Civico 0 - Circolo Familiare
960 m
Il Glicine
1,1 Km
Asahi
1,1 Km
Pizzeria Castello
1,2 Km
La Rosa dei Venti
1,2 Km
Mostra tutto

Caratteristiche

Rif.:
61192583
Piano:
Terra
Posti auto:
4
Condizionamento:
Assente
Ascensore:
No
Riscaldamento:
Autonomo
Mostra tutto
Prezzo Prezzo
€ 550.000
Rata mutuo Rata mutuo
€ 2.606 / mese
Spese annue Spese annue
€ 0
Proponi il tuo prezzoProponi il tuo prezzo

Altre caratteristiche

Descrizione dei locali
Bagno Con Finestra

Classe Energetica

G
G
G
G
G
G
G
G
G
EP globale non rinnovabile:
65.00 kW h/m² anno
EP globale rinnovabile:
745.00 kW h/m² anno
EP invernale del fabbricato:
EP estiva del fabbricato:
Anno di costruzione:
1980
Riscaldamento:
Autonomo
Tipo impianto:
A radiatori
Tipo alimentazione:
Metano

Ti interessa visionare l'immobile?

Fissa un appuntamento  Fissa un appuntamento

Richiedi informazioni

Clicca su Leggi per aprire l'informativa
* Questi campi sono obbligatori

Calcola il tuo mutuo

Semplice e senza impegno
Anticipo

( % )
Mutuo

( % )

pochi semplici passi

inserisci i tuoi dati
Questionario completato
Grazie per aver richiesto un appuntamento senza impegno con un nostro Consulente del Credito e Assicurativo.

Hai inserito correttamente tutti i dati necessari e a breve riceverai una e-mail con un link da convalidare per inviare i tuoi dati.
Affiliato
Studio Perillo Srl
Via Locatelli, 24 20834 Nova Milanese (MB)

Il nostro staff


  • Noureddine Abouhafs
    Collaboratore

  • Leyslany Isabel Cardona Montana
    Collaboratrice

  • Noah Roberto Di Giambattista
    Collaboratore

  • Edy Gobbi
    Coordinatrice

  • Alessia Giannì
    Collaboratrice

  • Afra Thalia Lopez
    Collaboratrice

  • Nicolò Pasquali
    Collaboratore

  • Giorgia Trizio
    Collaboratrice

  • Nicola Perillo
    Affiliato
Via Locatelli, 24 20834 Nova Milanese (MB)
Zona: Nova Milanese-Lissone- Desio-Macherio- Biassono- Sovico- Albiate
Mostra su mappa
Orari: Dal lunedì al venerdì dalle 09:00 alle 12:30 e dalle 14:00 alle 19:00 - Sabato su appuntamento dalle 09:00 alle 12:30.
Affiliato
Studio Perillo Srl
Via Locatelli, 24 20834 Nova Milanese (MB)

2026 Tecnocasa Franchising S.p.A. - P. IVA 08365160152 - Via Monte Bianco 60/A 20089 Rozzano (MI). Ogni agenzia ha un proprio titolare ed è autonoma. Privacy policy | Policy utilizzo | Cookie policy