Ufficio in affitto

Cinisello Balsamo, Via e Vicolo Casignolo
€ 2.900 / mese
1 locale 1 locale
987 Mq 987 Mq
4 bagni 4 bagni

Ufficio in affitto

Cinisello Balsamo, Via e Vicolo Casignolo

Questo immobile dispone di soluzioni frazionate

Descrizione annuncio

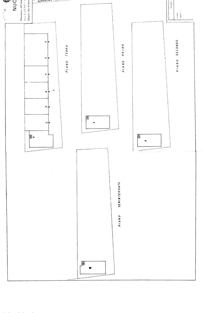
Proponiamo in affitto a Cinisello Balsamo, in zona industriale, palazzina indipendente cielo-terra composta da piano interrato, piano terra, primo piano e secondo piano.

ciascuno di circa 250 mq, per una superficie complessiva di circa 1.056 mq.

L’immobile è dotato di ascensore e vano scala che collegano tutti i livelli. L’altezza interna è di 2,70 servizi igienici sono presenti ma non su tutti i piani.

L’impianto di riscaldamento è esistente ma la caldaia risulta attualmente la proprietà un ampio piazzale privato con circa 20 posti auto interni, oltre a comoda area di manovra e carico/scarico.

La soluzione si presta a diverse destinazioni d’uso, quali sede aziendale, uffici direzionali, laboratorio, showroom o centro servizi, grazie agli ampi spazi e alla distribuzione funzionale dei piani.

3 mesi di anticipo ,contratto con IVA

una mensilità ,fidejussione bancaria pari a 3 mensilità .

Offriamo a ragazzi e ragazze la possibilità di formarsi ed avviarsi alla professione di agente immobiliare, contattaci per scoprire le posizioni lavorative aperte.

Mostra tutto

Nelle vicinanze

Trasporto pubblico Trasporto pubblico
Sesto 1º Maggio F.S.
Sesto 1º Maggio F.S.
2,3 Km
Sesto San Giovanni
Sesto San Giovanni
2,4 Km
Monza
Monza
2,8 Km
Gramsci (Cinisello Balsamo)
Gramsci (Cinisello Balsamo)
2,5 Km
Villa Ghirlanda (Cinisello Balsamo)
Villa Ghirlanda (Cinisello Balsamo)
2,5 Km
Ricariche auto elettriche Ricariche auto elettriche
EnelX EVA+ Q8Easy - Cinisello Balsamo
630 m
Eneldrive Ananas A4
990 m
Sesto San Giovanni Pelucca | EnelX
1,5 Km
Penny Market
1,5 Km
Sesto San Giovanni Casiraghi | EnelX
1,7 Km
Scuole Scuole
Scuola Primaria Vittorio Alfieri
960 m
Scuola Secondaria di Primo Grado Sandro Pertini
1,1 Km
Collegio della Guastalla
1,1 Km
Scuola Primaria Omero
1,2 Km
Scuola Secondaria di Primo Grado Bartolomeo Zucchi
1,3 Km
Farmacia Farmacia
Farmacia Comunale n. 5
880 m
Farmacia Comunale n. 1
980 m
Farmacia Romagna
1,4 Km
Farmacia San Rocco
1,4 Km
Farmacia Comunale N.8 della Pelucca
1,5 Km
Ospedali Ospedali
Ospedale Bassini
2,9 Km
Supermercati Supermercati
Esselunga di San Fruttuoso
880 m
Primo
910 m
Carrefour Market
1,3 Km
Il Gigante
1,3 Km
Lidl
1,5 Km
Negozi Negozi
Pessina
860 m
Il Papero Rosso
980 m
Negozi
1,0 Km
Saini
1,3 Km
Il Forno Moderno
1,3 Km
Bar Bar
Zoo Club
480 m
Caffè Sudan
770 m
Loft American Bar
910 m
Bar Alexander
1,3 Km
Bar della Pesa
1,3 Km
Ristoranti Ristoranti
L'Angolo
310 m
Lo Scorpione
790 m
Da Jonas
820 m
Pizzaround
840 m
O'Strit
850 m
Mostra tutto

Caratteristiche

Rif.:
61179867
Piano:
Su più livelli di 2 con ascensore
Totale piani:
2
Posti auto:
20
Condizionamento:
Assente
Ascensore:
Mostra tutto
Prezzo Prezzo
€ 2.900 / mese
Spese annue Spese annue
€ 0

Altre caratteristiche

Descrizione dei locali
Bagno Con Finestra

Classe Energetica

E
E
E
E
E
E
E
E
E
EP globale non rinnovabile:
370.85 kW h/m² anno
EP globale rinnovabile:
25.07 kW h/m² anno
EP invernale del fabbricato:
EP estiva del fabbricato:
Anno di costruzione:
1980
Riscaldamento:
Assente

Ti interessa visionare l'immobile?

Fissa un appuntamento  Fissa un appuntamento

Richiedi informazioni

Clicca su Leggi per aprire l'informativa
* Questi campi sono obbligatori
Affiliato
Studio Perillo Srl
Via Locatelli, 24 20834 Nova Milanese (MB)

Il nostro staff


  • Noureddine Abouhafs
    Collaboratore

  • Leyslany Isabel Cardona Montana
    Collaboratrice

  • Noah Roberto Di Giambattista
    Collaboratore

  • Edy Gobbi
    Coordinatrice

  • Alessia Giannì
    Collaboratrice

  • Afra Thalia Lopez
    Collaboratrice

  • Roberta Perillo
    Collaboratrice

  • Nicolò Pasquali
    Collaboratore

  • Giorgia Trizio
    Collaboratrice

  • Nicola Perillo
    Affiliato
Via Locatelli, 24 20834 Nova Milanese (MB)
Zona: Nova Milanese-Lissone- Desio-Macherio- Biassono- Sovico- Albiate
Mostra su mappa
Orari: Dal lunedì al venerdì dalle 09:00 alle 12:30 e dalle 14:00 alle 19:00 -Sabato dalle 09.00 alle 12.30
Affiliato
Studio Perillo Srl
Via Locatelli, 24 20834 Nova Milanese (MB)

2026 Tecnocasa Franchising S.p.A. - P. IVA 08365160152 - Via Monte Bianco 60/A 20089 Rozzano (MI). Ogni agenzia ha un proprio titolare ed è autonoma. Privacy policy | Policy utilizzo | Cookie policy