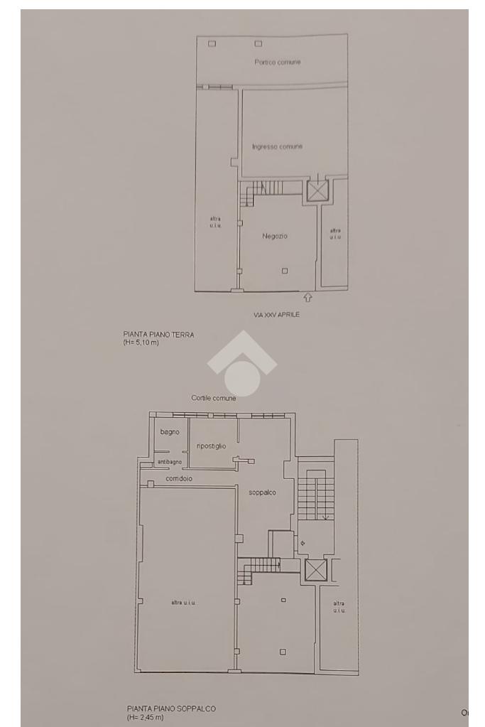
Negozio in affitto

Cinisello Balsamo, Via XXV Aprile - Campo Dei Fiori
3 locali 3 locali
59 Mq 59 Mq
1 bagno 1 bagno

Negozio in affitto

Cinisello Balsamo, Via XXV Aprile - Campo Dei Fiori

Descrizione annuncio

NEGOZIO IN LOCAZIONE- CINISELLO BALSAMO

Proponiamo negozio in Locazione in prossimità del centro di Cinisello Balsamo, in zona di forte passaggio e comoda con tutti i principali servizi.

L’immobile dispone di una superficie complessiva di circa 60 mq.

Si presenta in buono stato.

Presente una vetrina su strada, che garantisce un’ottima visibilità e valorizza l’esposizione del negozio.

Caratteristiche principali:

- 1 servizio igienico

- Riscaldamento centralizzato a radiatori

- Split caldo/freddo

Categoria Catastale C/1.

Spese condominiali circa 2000 euro annui.

Contratto di Locazione soggetto ad IVA.

Libero subito.

Contattaci subito per maggiori informazioni e per fissare una visita!

Grazie al costante sviluppo della nostra rete, offriamo a ragazzi e ragazze la possibilità di formarsi ed avviarsi alla professione di agente immobiliare.

Mostra tutto

Nelle vicinanze

Trasporto pubblico Trasporto pubblico
Cormano-Cusano Milanino
Cormano-Cusano Milanino
2,2 Km
1° Maggio (Cinisello Balsamo)
1° Maggio (Cinisello Balsamo)
1,1 Km
Monte Ortigara (Cinisello Balsamo)
Monte Ortigara (Cinisello Balsamo)
1,2 Km
Via 25 Aprile - Via Olmi (Cinisello Balsamo)
Via 25 Aprile - Via Olmi (Cinisello Balsamo)
170 m
Via Togliatti, 28 (Cinisello Balsamo)
Via Togliatti, 28 (Cinisello Balsamo)
170 m
Ricariche auto elettriche Ricariche auto elettriche
U2 Supermercato Cinisello Balsamo | EnelX
60 m
Eneldrive Esselunga Cusano Milanino
1,3 Km
EnelX EVA+ IP Cormano Via Cadorna
1,8 Km
BeCharge Aeroporto di Bresso
2,0 Km
BeCharge Municipio di Bresso
2,1 Km
Scuole Scuole
Scuola Elementare Statale Giuseppe Garibaldi
230 m
Scuola Primaria Giuseppe Parini
250 m
Scuola media statale Guglielmo Marconi
260 m
Scuola primaria paritaria Maria Ausiliatrice
550 m
Scuola secondaria di primo grado paritaria Papa Luciani
550 m
Farmacia Farmacia
Comunale n. 7
200 m
Farmacia Comunale n. 3
410 m
Benaglio
610 m
Farmacia Bartolotti
880 m
Farmacia Paltrinieri
980 m
Ospedali Ospedali
Ospedale Bassini
1,5 Km
Multimedica
2,5 Km
Ospedale città di Sesto San Giovanni
2,7 Km
Supermercati Supermercati
U2
70 m
Punto SMA
540 m
Punto Simply
690 m
Il Gigante
740 m
Coop
760 m
Negozi Negozi
Caleffi
90 m
Casa del Pane
220 m
Liberi dal Glutine
350 m
Danceonstage
400 m
EssoStore
960 m
Bar Bar
Il Milanino
870 m
Bar Dante
870 m
Fish Corner
1,1 Km
Bar Milanino
1,1 Km
C piace
1,3 Km
Ristoranti Ristoranti
La Casareccia
290 m
Pizzeria Dragoon
410 m
Da Giovannello
550 m
Only Meat
600 m
Bube
830 m
Mostra tutto

Caratteristiche

Rif.:
61153100
Piano:
2 di 7 con ascensore (Piano su più livelli)
Condizionamento:
Autonomo
Ascensore:
Riscaldamento:
Centralizzato
Giardino:
Condominiale
Mostra tutto
Prezzo Prezzo
€ 700 / mese
Spese annue Spese annue
€ 2.000
Anche in vendita a

Altre caratteristiche

Descrizione dei locali
Bagno Con Finestra

Classe Energetica

G
G
G
G
G
G
G
G
G
EP globale non rinnovabile:
127.64 kW h/m² anno
EP globale rinnovabile:
5.76 kW h/m² anno
EP invernale del fabbricato:
EP estiva del fabbricato:
Anno di costruzione:
1970
Riscaldamento:
Centralizzato
Tipo impianto:
A radiatori
Tipo alimentazione:
Metano

Ti interessa visionare l'immobile?

Fissa un appuntamento  Fissa un appuntamento

Richiedi informazioni

Clicca su Leggi per aprire l'informativa
* Questi campi sono obbligatori
Affiliato
Studio Perillo Srl
Via Locatelli, 24 20834 Nova Milanese (MB)

Il nostro staff


  • Noureddine Abouhafs
    Collaboratore

  • Leyslany Isabel Cardona Montana
    Collaboratrice

  • Noah Roberto Di Giambattista
    Collaboratore

  • Edy Gobbi
    Coordinatrice

  • Alessia Giannì
    Collaboratrice

  • Afra Thalia Lopez
    Collaboratrice

  • Roberta Perillo
    Collaboratrice

  • Nicolò Pasquali
    Collaboratore

  • Giorgia Trizio
    Collaboratrice

  • Nicola Perillo
    Affiliato
Via Locatelli, 24 20834 Nova Milanese (MB)
Zona: Nova Milanese-Lissone- Desio-Macherio- Biassono- Sovico- Albiate
Mostra su mappa
Orari: Dal lunedì al venerdì dalle 09:00 alle 12:30 e dalle 14:00 alle 19:00 -Sabato dalle 09.00 alle 12.30
Affiliato
Studio Perillo Srl
Via Locatelli, 24 20834 Nova Milanese (MB)

2026 Tecnocasa Franchising S.p.A. - P. IVA 08365160152 - Via Monte Bianco 60/A 20089 Rozzano (MI). Ogni agenzia ha un proprio titolare ed è autonoma. Privacy policy | Policy utilizzo | Cookie policy