Capannone in vendita

Cinisello Balsamo, Via Pellizza da Volpedo
€ 270.000
19 locali 19 locali
338 Mq 338 Mq
6 bagni 6 bagni

Capannone in vendita

Cinisello Balsamo, Via Pellizza da Volpedo

Descrizione annuncio

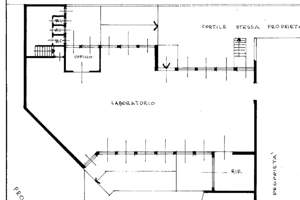
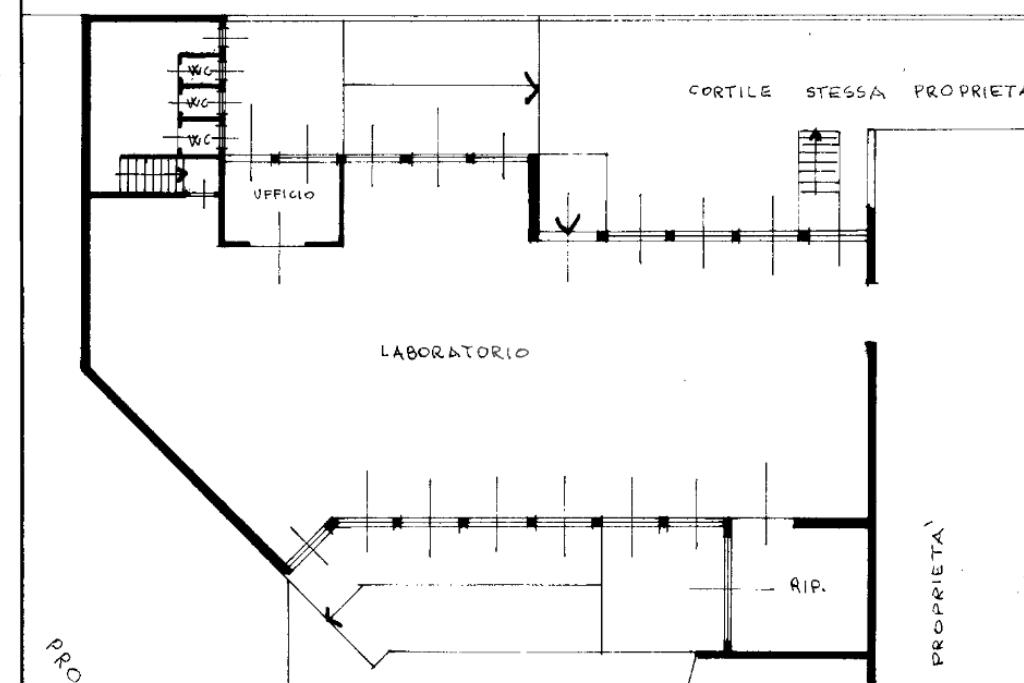
Laboratorio Industriale in Vendita a Cinisello Balsamo - Ampia Metratura e Possibilità di Espansione

Laboratorio industriale situato al piano rialzato di un edificio, con una metratura di 338 mq e presenti servizi igienici.

Attualmente, l'immobile è suddiviso in 19 locali, offrendo ampi spazi per attività industriali o artigianali.

Caratteristiche Principali:

- Accesso da portone carraio per facilitare le operazioni di carico e scarico


- Libero subito


- Categoria C3,

- Assenti spese condominiali

- Impiantistica da rivisitare per adeguare l'immobile alle esigenze specifiche dell'attività

Possibilità di Espansione:

- Possibilità di utilizzare ulteriori 320 mq al piano seminterrato, accessibile da rampa interna

Contattaci per Maggiori Informazioni:

Se sei interessato a questo laboratorio industriale, non esitare a contattarci per maggiori informazioni e per fissare un appuntamento per visitare l'immobile.

Mostra tutto

Nelle vicinanze

Trasporto pubblico Trasporto pubblico
Sesto 1º Maggio F.S.
Sesto 1º Maggio F.S.
1,7 Km
Sesto Rondò
Sesto Rondò
2,3 Km
Sesto San Giovanni
Sesto San Giovanni
1,8 Km
Libertà (Cinisello Balsamo)
Libertà (Cinisello Balsamo)
920 m
Monfalcone (Cinisello Balsamo)
Monfalcone (Cinisello Balsamo)
920 m
Ricariche auto elettriche Ricariche auto elettriche
MediaWorld Cinisello Balsamo
890 m
Sesto San Giovanni Casiraghi | EnelX
990 m
Eneldrive Ananas A4
1,2 Km
EnelX EVA+ Q8Easy - Cinisello Balsamo
1,2 Km
Sesto San Giovanni Puccini | EnelX
1,4 Km
Scuole Scuole
Scuole
280 m
Scuola Elementare Statale Sardegna
600 m
Media Statale Anna Frank
750 m
Istituto Maria Mazzarello
960 m
ASP Giuseppe Mazzini
1,1 Km
Farmacia Farmacia
Farmacia
50 m
Comunale n. 2
730 m
Comunale n. 1
760 m
Comunale n. 8
790 m
Farmacia Sant'Antonio
1,0 Km
Ospedali Ospedali
Ospedale Bassini
1,4 Km
Ospedale città di Sesto San Giovanni
2,1 Km
Multimedica
2,2 Km
Supermercati Supermercati
Coop
460 m
Il Gigante
670 m
Lidl
990 m
Carrefour Market
1,2 Km
Cral
1,3 Km
Negozi Negozi
Kiabi
900 m
Cerizzi
920 m
Devis
960 m
Libertà della Moda
990 m
Green Line
1,0 Km
Bar Bar
Sotto i portici
470 m
Caffè Carducci
900 m
C piace
1,1 Km
Bar
1,1 Km
Zoo Club
1,3 Km
Ristoranti Ristoranti
Mivida
40 m
Dal Biondo
540 m
Osteria Barbagianni
560 m
San Martino
660 m
Fratelli d'Italia
660 m
Mostra tutto

Caratteristiche

Rif.:
61105782
Piano:
1 di 3 (Piano rialzato)
Box:
1
Condizionamento:
Assente
Ascensore:
No
Riscaldamento:
Autonomo
Mostra tutto
Prezzo Prezzo
€ 270.000
Rata mutuo Rata mutuo
€ 1.272 / mese
Spese annue Spese annue
€ 0
Proponi il tuo prezzoProponi il tuo prezzo

Altre caratteristiche

Descrizione dei locali
Bagno Con Finestra

Classe Energetica

G
G
G
G
G
G
G
G
G
EP globale non rinnovabile:
65.00 kW h/m² anno
EP globale rinnovabile:
65.00 kW h/m² anno
EP invernale del fabbricato:
EP estiva del fabbricato:
Anno di costruzione:
1970
Riscaldamento:
Autonomo
Tipo impianto:
A radiatori
Tipo alimentazione:
Metano

Ti interessa visionare l'immobile?

Fissa un appuntamento  Fissa un appuntamento

Richiedi informazioni

Clicca su Leggi per aprire l'informativa
* Questi campi sono obbligatori

Calcola il tuo mutuo

Semplice e senza impegno
Anticipo

( % )
Mutuo

( % )

pochi semplici passi

inserisci i tuoi dati
Questionario completato
Grazie per aver richiesto un appuntamento senza impegno con un nostro Consulente del Credito e Assicurativo.

Hai inserito correttamente tutti i dati necessari e a breve riceverai una e-mail con un link da convalidare per inviare i tuoi dati.
Affiliato
Studio Perillo Srl
Via Locatelli, 24 20834 Nova Milanese (MB)

Il nostro staff


  • Noureddine Abouhafs
    Collaboratore

  • Leyslany Isabel Cardona Montana
    Collaboratrice

  • Noah Roberto Di Giambattista
    Collaboratore

  • Edy Gobbi
    Coordinatrice

  • Alessia Giannì
    Collaboratrice

  • Afra Thalia Lopez
    Collaboratrice

  • Roberta Perillo
    Collaboratrice

  • Nicolò Pasquali
    Collaboratore

  • Giorgia Trizio
    Collaboratrice

  • Nicola Perillo
    Affiliato
Via Locatelli, 24 20834 Nova Milanese (MB)
Zona: Nova Milanese-Lissone- Desio-Macherio- Biassono- Sovico- Albiate
Mostra su mappa
Orari: Dal lunedì al venerdì dalle 09:00 alle 12:30 e dalle 14:00 alle 19:00 -Sabato dalle 09.00 alle 12.30
Affiliato
Studio Perillo Srl
Via Locatelli, 24 20834 Nova Milanese (MB)

2026 Tecnocasa Franchising S.p.A. - P. IVA 08365160152 - Via Monte Bianco 60/A 20089 Rozzano (MI). Ogni agenzia ha un proprio titolare ed è autonoma. Privacy policy | Policy utilizzo | Cookie policy