Capannone in vendita

Carate Brianza, V.le Brianza
€ 440.000
Prezzo aggiornato
5 locali 5 locali
533 Mq 533 Mq
2 bagni 2 bagni

Capannone in vendita

Carate Brianza, V.le Brianza

Descrizione annuncio

In una posizione strategica e di grande visibilità, su strada ad alto passaggio e a pochi passi da servizi, negozi, scuole e mezzi di trasporto, proponiamo in vendita un’intera palazzina a destinazione mista, artigianale e residenziale, dotata di ampia area privata.
L’edificio, originario della metà degli anni ’60 e ristrutturato nel 1983 e nei primi anni 2000, si presenta in ottimo stato e offre spazi versatili adatti a diverse esigenze.

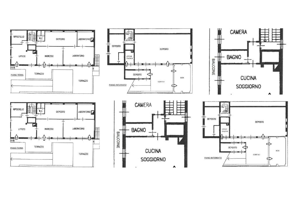
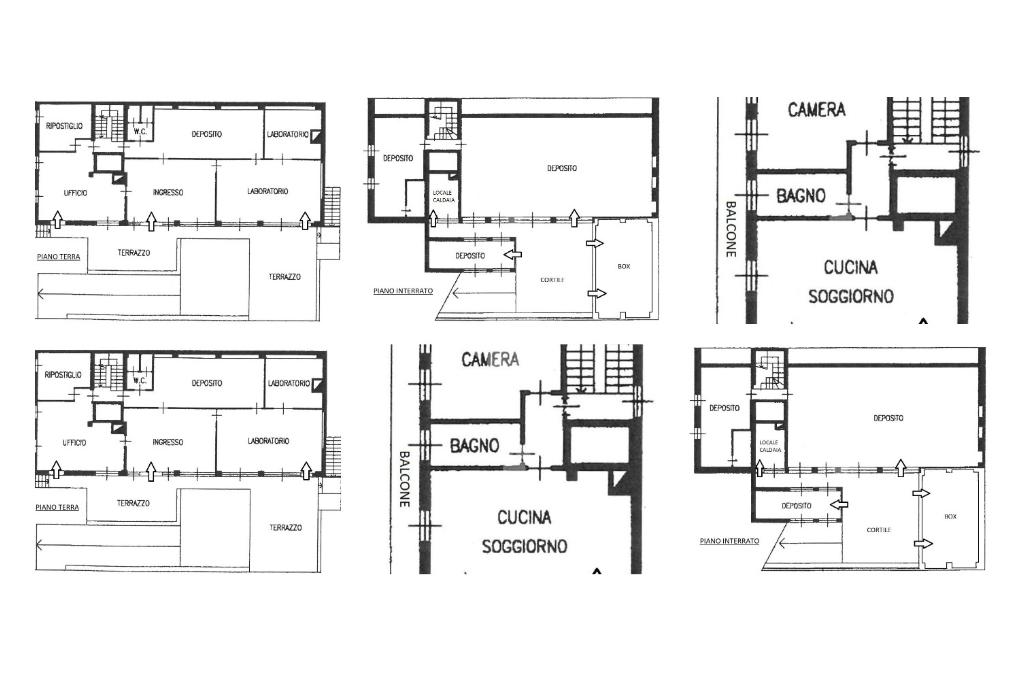
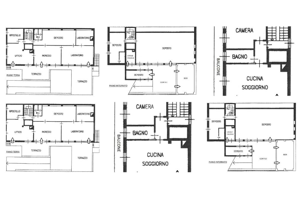
Distribuzione degli spazi:

Piano rialzato (250 mq): laboratorio artigianale con uffici, servizi e due ampi terrazzi (84 mq complessivi).
Piano seminterrato (220 mq): accessibile sia dal cortile che dal laboratorio, comprende un magazzino suddiviso in tre ambienti, locale caldaia, deposito aggiuntivo di 20 mq e box triplo di 48 mq.
Primo piano (80 mq): appartamento indipendente composto da tre locali, bagno ristrutturato nel 2015 e balconata con accesso diretto al lastrico solare di circa 170 mq, che sovrasta il laboratorio.

La palazzina è collegata internamente da una scala e offre la possibilità di ripristinare un montacarichi per 4/6 persone.

All’esterno dispone di circa 300 mq di area privata, tra cortile, parcheggio e giardino.

Dotazioni e finiture:
Pavimenti in ceramica in tutti gli ambienti.
Infissi in alluminio con doppi vetri.
Riscaldamento e climatizzazione separati negli spazi artigianali, con pompe di calore; impianto tradizionale con caldaia autonoma per l’abitazione.
Impianto elettrico del laboratorio a norma, rifatto nel 2021 (220/380V – 16Kw).
Videosorveglianza con 12 telecamere e antifurto volumetrico a zone.
Cancello elettrico, illuminazione centralizzata del cortile e impianto di irrigazione automatica per il giardino.

Un immobile completo, ideale per chi cerca una soluzione che unisca spazi lavorativi e abitativi nello stesso contesto, con la comodità di una posizione servita e facilmente raggiungibile.

Grazie al costante sviluppo della nostra rete, offriamo a ragazzi e ragazze di età compreso i 18 e 25 anni la possibilità di formarsi ed avviarsi alla professione di agente immobiliare.

Mostra tutto

Nelle vicinanze

Trasporto pubblico Trasporto pubblico
Triuggio-Ponte Albiate
Triuggio-Ponte Albiate
2,7 Km
Viale Brianza - Via De Gasperi (Carate Brianza)
Viale Brianza - Via De Gasperi (Carate Brianza)
280 m
Viale Bianchi (Ospedale) (Carate Brianza)
Viale Bianchi (Ospedale) (Carate Brianza)
390 m
Carate-Calò
Carate-Calò
1,1 Km
Villa Raverio
Villa Raverio
2,6 Km
Ricariche auto elettriche Ricariche auto elettriche
Piazza Grandi
2,0 Km
MediaWorld Giussano
2,4 Km
MediaWorld Giussano Bis
2,4 Km
Krealpool SRL
2,7 Km
In's Mercato
2,8 Km
Scuole Scuole
Ist. Paritario Vescovi Valtorta e Colombo
140 m
Istituto di Istruzione Superiore Leonardo da Vinci
300 m
Fondazione In-Presa Emilia Vergani
540 m
Scuole
660 m
Scuola Elementare e Liceo Don Carlo Gnocchi
860 m
Farmacia Farmacia
Farmacia Gatti
460 m
Farmacia
600 m
Farmacia Agliate
1,5 Km
Farmacia Negri
2,3 Km
Lloyds Farmacia San Salvatore
2,6 Km
Ospedali Ospedali
Bianalisi s.r.l. Analisi Mediche
380 m
Ospedali
390 m
Ospedale Vittorio Emanuele III
620 m
policlinico di Monza
1,4 Km
Dedalo Psicologia
2,1 Km
Supermercati Supermercati
Conad
560 m
Supermercati
1,3 Km
Iperal
1,3 Km
Coop
2,0 Km
EuroSpin
2,2 Km
Negozi Negozi
Scama
150 m
Eurospin
500 m
Longoni
1,0 Km
Marianna confezioni
1,4 Km
Abbigliamento Fumagalli
1,9 Km
Bar Bar
Brianza Caffè
100 m
Blue bar
400 m
Expo Cafè
500 m
Mystic Burger
600 m
Bar
760 m
Ristoranti Ristoranti
La Piana
250 m
Pizzeria Nuova Idea
310 m
La Dama di Bacco
620 m
Il Ritrovo
750 m
Al Burigiott
800 m
Mostra tutto

Caratteristiche

Rif.:
61126839
Piano:
Su più livelli di 2
Totale piani:
2
Box:
2
Posti auto:
5
Balconi:
3
Mostra tutto
Prezzo Prezzo
€ 440.000
Rata mutuo Rata mutuo
€ 2.085 / mese
Spese annue Spese annue
€ 0
Proponi il tuo prezzoProponi il tuo prezzo

Classe Energetica

F
F
F
F
F
F
F
F
F
EP globale non rinnovabile:
214.11 kW h/m² anno
EP globale rinnovabile:
0.00 kW h/m² anno
EP invernale del fabbricato:
EP estiva del fabbricato:
Anno di costruzione:
1965
Riscaldamento:
Autonomo
Tipo impianto:
Ad aria
Tipo alimentazione:
Metano

Prezzo ridotto di €1 (9%%)

Ti interessa visionare l'immobile?

Fissa un appuntamento  Fissa un appuntamento

Richiedi informazioni

Clicca su Leggi per aprire l'informativa
* Questi campi sono obbligatori

Calcola il tuo mutuo

Semplice e senza impegno
Anticipo

( % )
Mutuo

( % )

pochi semplici passi

inserisci i tuoi dati
Questionario completato
Grazie per aver richiesto un appuntamento senza impegno con un nostro Consulente del Credito e Assicurativo.

Hai inserito correttamente tutti i dati necessari e a breve riceverai una e-mail con un link da convalidare per inviare i tuoi dati.
Affiliato
Studio Perillo Srl
Via Locatelli, 24 20834 Nova Milanese (MB)

Il nostro staff


  • Noureddine Abouhafs
    Collaboratore

  • Leyslany Isabel Cardona Montana
    Collaboratrice

  • Noah Roberto Di Giambattista
    Collaboratore

  • Edy Gobbi
    Coordinatrice

  • Alessia Giannì
    Collaboratrice

  • Afra Thalia Lopez
    Collaboratrice

  • Nicolò Pasquali
    Collaboratore

  • Giorgia Trizio
    Collaboratrice

  • Nicola Perillo
    Affiliato
Via Locatelli, 24 20834 Nova Milanese (MB)
Zona: Nova Milanese-Lissone- Desio-Macherio- Biassono- Sovico- Albiate
Mostra su mappa
Orari: Dal lunedì al venerdì dalle 09:00 alle 12:30 e dalle 14:00 alle 19:00 - Sabato su appuntamento dalle 09:00 alle 12:30.
Affiliato
Studio Perillo Srl
Via Locatelli, 24 20834 Nova Milanese (MB)

2026 Tecnocasa Franchising S.p.A. - P. IVA 08365160152 - Via Monte Bianco 60/A 20089 Rozzano (MI). Ogni agenzia ha un proprio titolare ed è autonoma. Privacy policy | Policy utilizzo | Cookie policy