Negozio in vendita

Brugherio, via camillo benso di cavour
€ 100.000
1 locale 1 locale
31 Mq 31 Mq
1 bagno 1 bagno

Negozio in vendita

Brugherio, via camillo benso di cavour

Descrizione annuncio

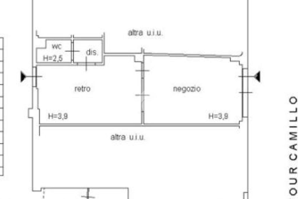
Nel cuore di Brugherio, in una posizione strategica e di forte passaggio, proponiamo NEGOZIO ideale per chi cerca una soluzione immediatamente operativa per attività commerciali, servizi o studio professionale.

Il locale si presenta con una pianta regolare e facilmente personalizzabile, caratteristica che permette di sfruttare al meglio ogni metro quadrato.

Situato nel centro di Brugherio, il negozio gode di un contesto vivace e ben servito, con numerose attività commerciali, servizi e fermate dei mezzi pubblici nelle immediate vicinanze.

La zona è caratterizzata da un costante flusso pedonale e veicolare, ideale per chi cerca visibilità e accessibilità.

La vetrina su strada garantisce ottima visibilità e un naturale richiamo per la clientela, rendendo l’immobile particolarmente adatto a chi desidera un punto vendita o un ufficio con esposizione diretta.

All’interno è presente un servizio igienico, elemento essenziale per qualsiasi attività, e un’area open space che si presta a molteplici configurazioni: reception, area vendita, postazioni operative, piccolo showroom.

Superficie di circa 31 mq oltre cantina di circa 15 mq, perfetta come magazzino, deposito merci o archivio

Categoria catastale: C/1

Riscaldamento centralizzato

Spese condominiali: € 1.200 annui

Libero subito

Vendita soggetta ad IVA.

Offriamo a ragazzi e ragazze la possibilità di formarsi ed avviarsi alla professione di agente immobiliare, contattaci per scoprire le posizioni lavorative aperte.

Mostra tutto

Nelle vicinanze

Trasporto pubblico Trasporto pubblico
Cologno Nord
Cologno Nord
2,1 Km
Trasporto pubblico
300 m
Via Dorderio/Increa
Via Dorderio/Increa
1,1 Km
Ricariche auto elettriche Ricariche auto elettriche
BECHARGE Centro Commerciale Bennet - Brugherio
600 m
Carugate | ENELX
2,2 Km
COLOGNO MONZESE Tintoretto | ENELX
2,3 Km
Eneldrive Ikea Carugate
2,3 Km
Parcheggio IKEA Carugate
2,3 Km
Scuole Scuole
Scuola Elementare "Sciviero"
290 m
Scuola Materna "Umberto I e Margherita"
350 m
Centro formazione professionale "Luigi Clerici"
360 m
Scuole
430 m
Scuola Media John e Robert Kennedy
500 m
Farmacia Farmacia
Farmacia Centrale
70 m
Farmacia Comunale
300 m
Farmacia Santa Teresa
470 m
Farmacia dei Mille
590 m
Farmacia Moncucco
830 m
Supermercati Supermercati
Bennet
530 m
D più - discount alimentari
890 m
Caseificio Salaris
910 m
da Flavio
1,0 Km
Conad
1,1 Km
Negozi Negozi
Il Forno
220 m
Super PD
260 m
focacceria ligure
290 m
Santini - Supermercato SIGMA
320 m
Casa del pane
350 m
Bar Bar
Bar-Trattoria "Anna e Andrea"
20 m
dolce e salato
160 m
Bar
160 m
Bar Italia
160 m
Bar Gramsci
260 m
Ristoranti Ristoranti
Pizza Doc
110 m
Pizzeria d'asporto "Mare Rosso"
120 m
La Puccia di Poldo
260 m
Pizzeria d'asporto "Il Grottino"
360 m
Bar-Albergo-Ristorante "Da Baffo"
360 m
Mostra tutto

Caratteristiche

Rif.:
61195782
Piano:
Su più livelli di 2
Totale piani:
2
Condizionamento:
Predisposizione impianto
Ascensore:
No
Riscaldamento:
Centralizzato
Mostra tutto
Prezzo Prezzo
€ 100.000
Rata mutuo Rata mutuo
€ 474 / mese
Spese annue Spese annue
€ 1.200
Proponi il tuo prezzoProponi il tuo prezzo

Altre caratteristiche

Descrizione dei locali
Bagno Con Finestra

Classe Energetica

G
G
G
G
G
G
G
G
G
EP globale non rinnovabile:
65.00 kW h/m² anno
EP globale rinnovabile:
65.00 kW h/m² anno
EP invernale del fabbricato:
EP estiva del fabbricato:
Anno di costruzione:
1970
Riscaldamento:
Centralizzato
Tipo impianto:
A radiatori
Tipo alimentazione:
Metano

Ti interessa visionare l'immobile?

Fissa un appuntamento  Fissa un appuntamento

Richiedi informazioni

Clicca su Leggi per aprire l'informativa
* Questi campi sono obbligatori

Calcola il tuo mutuo

Semplice e senza impegno
Anticipo

( % )
Mutuo

( % )

pochi semplici passi

inserisci i tuoi dati
Questionario completato
Grazie per aver richiesto un appuntamento senza impegno con un nostro Consulente del Credito e Assicurativo.

Hai inserito correttamente tutti i dati necessari e a breve riceverai una e-mail con un link da convalidare per inviare i tuoi dati.
Affiliato
Studio Perillo Srl
Via Locatelli, 24 20834 Nova Milanese (MB)

Il nostro staff


  • Noureddine Abouhafs
    Collaboratore

  • Leyslany Isabel Cardona Montana
    Collaboratrice

  • Noah Roberto Di Giambattista
    Collaboratore

  • Edy Gobbi
    Coordinatrice

  • Alessia Giannì
    Collaboratrice

  • Afra Thalia Lopez
    Collaboratrice

  • Nicolò Pasquali
    Collaboratore

  • Giorgia Trizio
    Collaboratrice

  • Nicola Perillo
    Affiliato
Via Locatelli, 24 20834 Nova Milanese (MB)
Zona: Nova Milanese-Lissone- Desio-Macherio- Biassono- Sovico- Albiate
Mostra su mappa
Orari: Dal lunedì al venerdì dalle 09:00 alle 12:30 e dalle 14:00 alle 19:00 - Sabato su appuntamento dalle 09:00 alle 12:30.
Affiliato
Studio Perillo Srl
Via Locatelli, 24 20834 Nova Milanese (MB)

2026 Tecnocasa Franchising S.p.A. - P. IVA 08365160152 - Via Monte Bianco 60/A 20089 Rozzano (MI). Ogni agenzia ha un proprio titolare ed è autonoma. Privacy policy | Policy utilizzo | Cookie policy