Deposito in affitto

Brugherio, viale lomabrdia
€ 2.100 / mese
1 locale 1 locale
180 Mq 180 Mq
1 bagno 1 bagno

Deposito in affitto

Brugherio, viale lomabrdia

Descrizione annuncio

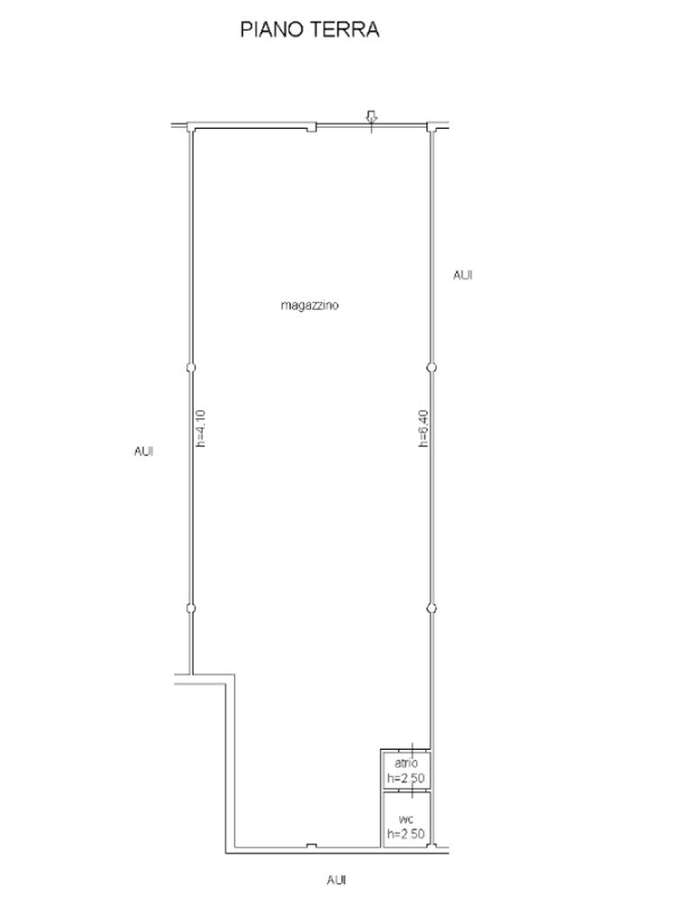
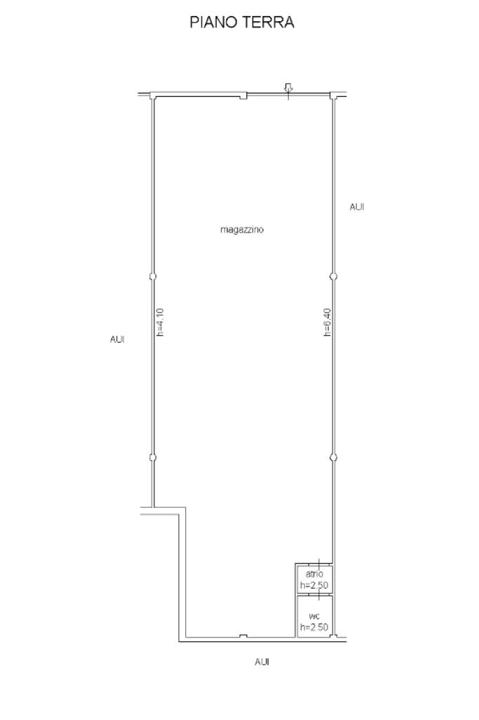
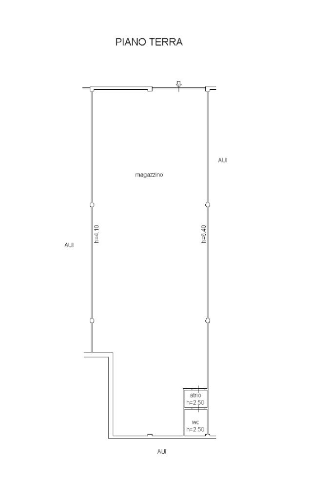
Deposito/Magazzino – Piano Terra – Viale Lombardia, Brugherio (confine Cologno Monzese)

Proponiamo in locazione un deposito al piano terra situato in Viale Lombardia a Brugherio, in posizione strategica e comoda per gli spostamenti verso Cologno Monzese e le principali arterie stradali.

L’immobile si presenta in ottime condizioni interne, grazie a una ristrutturazione completa recentemente eseguita. L’impiantistica è totalmente nuova, garantendo funzionalità e sicurezza.

Caratteristiche principali:

Superficie totale di 180 mq ideale per uso magazzino, deposito o attività logistiche

Altezza interna: 6,40 m al colmo – 4,10 m sotto trave

Assenza di riscaldamento e condizionamento

Accesso comodo dal piano terra

Presente un servizio igienco con doccia.

Contesto ordinato e facilmente raggiungibile

Soluzione perfetta per aziende che necessitano di uno spazio funzionale, subito disponibile e collocato in una zona ad alta accessibilità.

Libero subito e pronto all’uso.

Spese condominiali pari ad euro 2.400,00 annui

Canone di locazione soggetto ad IVA.

Contratto commerciale 6+6.

Richieste 3 mensilità anticipate e 3 mensilità a deposito cauzionale.

Per ulteriori informazioni o per fissare un sopralluogo, non esitate a contattarci.

Offriamo a ragazzi/e la possibilità di inserimento lavorativo, ricercando ambosessi da formare ed avviare alla professione di agenti immobiliari e/o coordinatrice d'agenzia

Mostra tutto

Nelle vicinanze

Trasporto pubblico Trasporto pubblico
Cologno Nord
Cologno Nord
1,3 Km
Cologno Centro
Cologno Centro
2,1 Km
Trasporto pubblico
650 m
Via I Maggio
Via I Maggio
790 m
Ricariche auto elettriche Ricariche auto elettriche
Cologno Monzese Pergolesi | EnelX
1,3 Km
COLOGNO MONZESE Tintoretto | ENELX
1,5 Km
BECHARGE Centro Commerciale Bennet - Brugherio
1,6 Km
COLOGNO MONZESE Toti | ENELX
1,7 Km
Cologno Monzese Buonarroti | EnelX
1,9 Km
Scuole Scuole
Scuola Elementare "Elve Fortis"
740 m
Scuola Media John e Robert Kennedy
740 m
Kennedy
760 m
Scuola Elementare "Don Camagni"
770 m
Scuola Materna "Umberto I e Margherita"
790 m
Farmacia Farmacia
Farmacia Moncucco
250 m
Farmacia dei Mille
420 m
Farmacia Comunale
830 m
Farmacia Centrale
1,0 Km
Farmacia Santa Teresa
1,2 Km
Supermercati Supermercati
Caseificio Salaris
470 m
Lidl
540 m
da Flavio
570 m
Conad
1,0 Km
Caseificio Battipaglia
1,1 Km
Negozi Negozi
Incubo
260 m
Il Fornaio
330 m
Cooperativa Agricola di Consumo
520 m
Non solo pane
580 m
Negozi
620 m
Bar Bar
Corner Bar
260 m
Miami
580 m
Bar Beretta
680 m
Bar
950 m
dolce e salato
980 m
Ristoranti Ristoranti
La vera pizza - pizzeria d'asporto
240 m
La Luna e i Falò
290 m
Bar da Lì - Ristorante italo/cinese
370 m
Civico 0 - Circolo Familiare
370 m
Vagabondo di mare
390 m
Mostra tutto

Caratteristiche

Rif.:
61207456
Piano:
Terra di 1
Totale piani:
1
Posti auto:
1
Condizionamento:
Assente
Ascensore:
No
Mostra tutto
Prezzo Prezzo
€ 2.100 / mese
Spese annue Spese annue
€ 2.400

Altre caratteristiche

Descrizione dei locali
Bagno Con Finestra

Classe Energetica

E
E
E
E
E
E
E
E
E
EP globale non rinnovabile:
379.75 kW h/m² anno
EP globale rinnovabile:
34.64 kW h/m² anno
EP invernale del fabbricato:
EP estiva del fabbricato:
Anno di costruzione:
1990
Riscaldamento:
Assente

Ti interessa visionare l'immobile?

Fissa un appuntamento  Fissa un appuntamento

Richiedi informazioni

Clicca su Leggi per aprire l'informativa
* Questi campi sono obbligatori
Affiliato
Studio Perillo Srl
Via Locatelli, 24 20834 Nova Milanese (MB)

Il nostro staff


  • Noureddine Abouhafs
    Collaboratore

  • Leyslany Isabel Cardona Montana
    Collaboratrice

  • Noah Roberto Di Giambattista
    Collaboratore

  • Edy Gobbi
    Coordinatrice

  • Alessia Giannì
    Collaboratrice

  • Afra Thalia Lopez
    Collaboratrice

  • Nicolò Pasquali
    Collaboratore

  • Giorgia Trizio
    Collaboratrice

  • Nicola Perillo
    Affiliato
Via Locatelli, 24 20834 Nova Milanese (MB)
Zona: Nova Milanese-Lissone- Desio-Macherio- Biassono- Sovico- Albiate
Mostra su mappa
Orari: Dal lunedì al venerdì dalle 09:00 alle 12:30 e dalle 14:00 alle 19:00 - Sabato su appuntamento dalle 09:00 alle 12:30.
Affiliato
Studio Perillo Srl
Via Locatelli, 24 20834 Nova Milanese (MB)

2026 Tecnocasa Franchising S.p.A. - P. IVA 08365160152 - Via Monte Bianco 60/A 20089 Rozzano (MI). Ogni agenzia ha un proprio titolare ed è autonoma. Privacy policy | Policy utilizzo | Cookie policy