Capannone in vendita

Brugherio, via san Cristoforo
€ 1.190.000
10 locali 10 locali
2976 Mq 2976 Mq
6 bagni 6 bagni

Capannone in vendita

Brugherio, via san Cristoforo

Descrizione annuncio

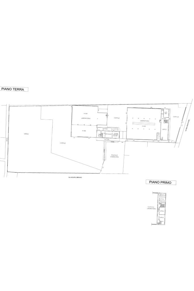
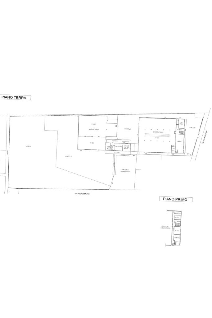
In posizione strategica nel comune di Brugherio, proponiamo in vendita un complesso industriale composto da due capannoni con uffici e servizi, ideale per aziende che necessitano di spazi produttivi, logistici o artigianali con ampie possibilità di personalizzazione.

L’immobile si sviluppa su una superficie coperta complessiva di 1.556 mq, suddivisa in due capannoni distinti, entrambi caratterizzati da una distribuzione funzionale degli spazi.

Presente una tettoia di circa 49 mq che collega il secondo capannone alla zona destinata alla sala mensa, serizi e agli spogliatoi già predisposta per accogliere il personale operativo.

La parte direzionale si compone di 340 mq di uffici, distribuiti tra piano terra e primo piano, ideali per funzioni amministrative, gestionali o commerciali. Gli ambienti risultano luminosi e facilmente adattabili a diverse esigenze organizzative.

L’immobile è facilmente accessibile dalle principali arterie stradali della zona, tra cui l’Autostrada A4 e la Tangenziale Est, ed è inserito in un contesto produttivo ben servito e dinamico.

Uno dei punti di forza del complesso è la grande area esterna di 5.000 mq, che garantisce:

ampie aree di manovra per mezzi pesanti

possibilità di parcheggio per dipendenti e visitatori

spazi per stoccaggio esterno o eventuali ampliamenti operativi

La conformazione dell’area rende l’immobile particolarmente adatto a realtà che necessitano di movimentazione merci o logistica interna.

Sono presenti ingressi carrabili idonei a mezzi pesanti.

L’impiantistica è da rifare, un aspetto che rappresenta un vantaggio per chi desidera personalizzare completamente gli impianti in base alle proprie esigenze produttive, energetiche o tecnologiche.

Assenti spese condominiali, trattandosi di un complesso indipendente.

Vendita soggetta ad iva.

Categoria Catastale D7 e D1.

Per ulteriori informazioni o per fissare un sopralluogo, non esitate a contattarci.

Offriamo a ragazzi/e la possibilità di inserimento lavorativo, ricercando ambosessi da formare ed avviare alla professione di agenti immobiliari e/o coordinatrice d'agenzia.

Mostra tutto

Nelle vicinanze

Trasporto pubblico Trasporto pubblico
Cologno Nord
Cologno Nord
2,4 Km
Cologno Centro
Cologno Centro
3,0 Km
Monza
Monza
2,7 Km
Via Repubblica (Via Tagliabue) - V.le Lombardia
Via Repubblica (Via Tagliabue) - V.le Lombardia
990 m
Via Repubblica - Via Buozzi
Via Repubblica - Via Buozzi
1,1 Km
Ricariche auto elettriche Ricariche auto elettriche
COLOGNO MONZESE Toti | ENELX
970 m
Cologno Monzese Pergolesi | EnelX
1,4 Km
Sesto San Giovanni Pelucca | EnelX
1,5 Km
BECHARGE Centro Commerciale Bennet - Brugherio
1,8 Km
Penny Market
2,0 Km
Scuole Scuole
Scuola Elementare "Elve Fortis"
690 m
Accademia Pbs
1,3 Km
Scuola Primaria Zara
1,3 Km
Scuola Materna "Umberto I e Margherita"
1,5 Km
Scuola Primaria Sant'Alessandro
1,5 Km
Farmacia Farmacia
Farmacia Comunale
500 m
Farmacia Moncucco
1,3 Km
Farmacia San Rocco
1,4 Km
Farmacia Santa Teresa
1,4 Km
Farmacia Comunale N.8 della Pelucca
1,5 Km
Supermercati Supermercati
Caseificio Battipaglia
520 m
Caseificio Salaris
1,0 Km
Carrefour Market
1,4 Km
Esselunga di Cologno Monzese
1,4 Km
Lidl
1,7 Km
Negozi Negozi
Cooperativa
490 m
IT Fashion
720 m
Panificio Dolce forno
970 m
Abbigliamento Gianni e Gio
980 m
Incubo
1,3 Km
Bar Bar
Circolo Famigliare
1,1 Km
L'elemento mancante
1,2 Km
Corner Bar
1,3 Km
Da Manu e Giò
1,4 Km
Bar della Pesa
1,4 Km
Ristoranti Ristoranti
Il Glicine
680 m
Il Faro
930 m
Pizzeria d'asporto "Pizza Pazza"
1,0 Km
La vera pizza - pizzeria d'asporto
1,1 Km
La Luna e i Falò
1,3 Km
Mostra tutto

Caratteristiche

Rif.:
61189384
Piano:
Su più livelli di 2
Totale piani:
2
Posti auto:
30
Condizionamento:
Autonomo
Ascensore:
No
Mostra tutto
Prezzo Prezzo
€ 1.190.000
Rata mutuo Rata mutuo
€ 5.639 / mese
Spese annue Spese annue
€ 0
Proponi il tuo prezzoProponi il tuo prezzo

Altre caratteristiche

Descrizione dei locali
Bagno Con Finestra

Classe Energetica

G
G
G
G
G
G
G
G
G
EP globale non rinnovabile:
65.00 kW h/m² anno
EP globale rinnovabile:
65.00 kW h/m² anno
EP invernale del fabbricato:
EP estiva del fabbricato:
Anno di costruzione:
1970
Riscaldamento:
Autonomo
Tipo impianto:
Ad aria
Tipo alimentazione:
Metano

Ti interessa visionare l'immobile?

Fissa un appuntamento  Fissa un appuntamento

Richiedi informazioni

Clicca su Leggi per aprire l'informativa
* Questi campi sono obbligatori

Calcola il tuo mutuo

Semplice e senza impegno
Anticipo

( % )
Mutuo

( % )

pochi semplici passi

inserisci i tuoi dati
Questionario completato
Grazie per aver richiesto un appuntamento senza impegno con un nostro Consulente del Credito e Assicurativo.

Hai inserito correttamente tutti i dati necessari e a breve riceverai una e-mail con un link da convalidare per inviare i tuoi dati.
Affiliato
Studio Perillo Srl
Via Locatelli, 24 20834 Nova Milanese (MB)

Il nostro staff


  • Noureddine Abouhafs
    Collaboratore

  • Leyslany Isabel Cardona Montana
    Collaboratrice

  • Noah Roberto Di Giambattista
    Collaboratore

  • Edy Gobbi
    Coordinatrice

  • Alessia Giannì
    Collaboratrice

  • Afra Thalia Lopez
    Collaboratrice

  • Nicolò Pasquali
    Collaboratore

  • Giorgia Trizio
    Collaboratrice

  • Nicola Perillo
    Affiliato
Via Locatelli, 24 20834 Nova Milanese (MB)
Zona: Nova Milanese-Lissone- Desio-Macherio- Biassono- Sovico- Albiate
Mostra su mappa
Orari: Dal lunedì al venerdì dalle 09:00 alle 12:30 e dalle 14:00 alle 19:00 - Sabato su appuntamento dalle 09:00 alle 12:30.
Affiliato
Studio Perillo Srl
Via Locatelli, 24 20834 Nova Milanese (MB)

2026 Tecnocasa Franchising S.p.A. - P. IVA 08365160152 - Via Monte Bianco 60/A 20089 Rozzano (MI). Ogni agenzia ha un proprio titolare ed è autonoma. Privacy policy | Policy utilizzo | Cookie policy