Capannone in vendita

Biassono, Via antonio locatelli
€ 950.000
1 locale 1 locale
1700 Mq 1700 Mq
2 bagni 2 bagni

Capannone in vendita

Biassono, Via antonio locatelli

Descrizione annuncio

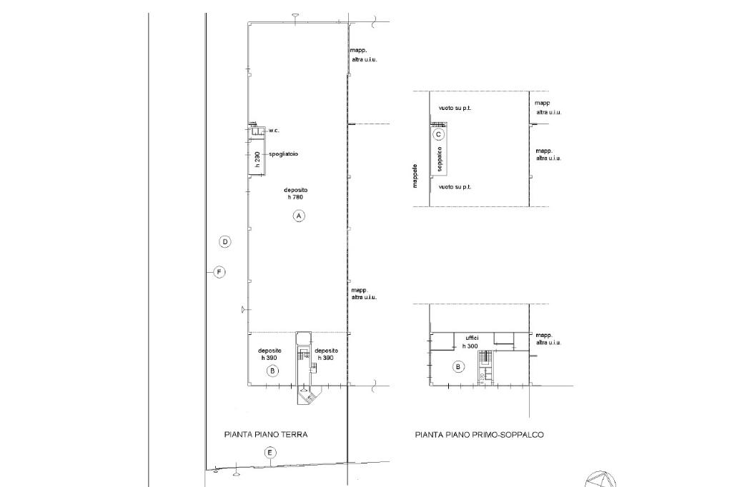
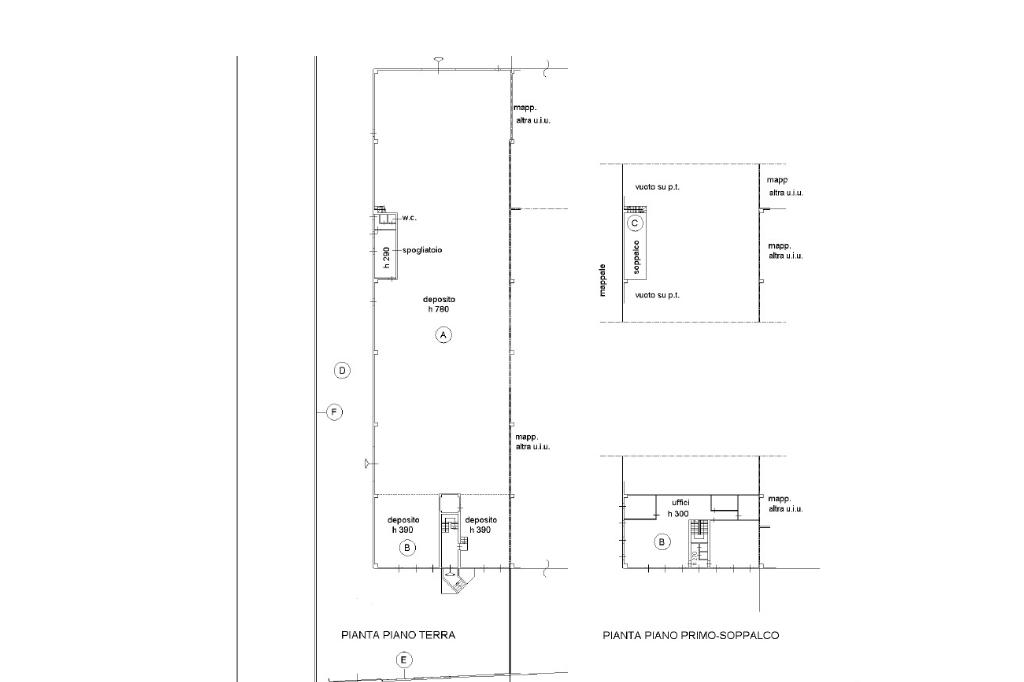
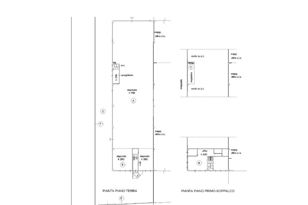
L’immobile proposto è un edificio industriale di categoria catastale D/7, insediato su un lotto interamente recintato. Specifiche Tecniche e Dimensionali L'immobile suddiviso su due livelli: - Zona Produttiva (Piano Terra): di circa 1.330 mq. Il layout è ottimizzato grazie a un'altezza utile sotto trave di 7,80 mt e 8,50 mt al colmo. Il piano è servito da blocchi servizi completi di spogliatoi e locale mensa. - Zona Direzionale (Piano Primo): Comparto uffici di 250 mq. - Logistica Esterna: La proprietà vanta un'area cortilizia esclusiva di 1.130 mq con conformazione a 'L', dimensionata per agevolare la movimentazione di mezzi pesanti. L'accessibilità è garantita da 5 ingressi totali, di cui uno dedicato esclusivamente alle operazioni di carico/scarico merci con altezza di 4.45mt e larghezza di 5,25 mt. - Dotazione Impiantistica e Manutenzione: L'immobile è dotato di impiantistica attiva e manutenuta. - Impianto Elettrico: Conforme alle normative vigenti, oggetto di ultima revisione e manutenzione nel biennio 2018/2019. - Termotecnica: Climatizzazione ibrida per l'ottimizzazione dei consumi; caldaia a gasolio dedicata al piano produttivo e sistema a pompa di calore per il comfort degli uffici al piano primo. - Sicurezza: Il sito è protetto da recinzione perimetrale completa, impianto di allarme antintrusione e sistema di videosorveglianza.Dati Economici: - Rendita Catastale: € 12.094,00

L’immobile risulta attualmente locato, con contratto di locazione in corso e durata residua di 3 anni.

Mostra tutto

Nelle vicinanze

Trasporto pubblico Trasporto pubblico
stazione di Macherio-Sovico
stazione di Macherio-Sovico
2,1 Km
Lissone-Muggiò
Lissone-Muggiò
2,9 Km
Trasporto pubblico
1,1 Km
Via Vico - Via Missori (Lissone)
Via Vico - Via Missori (Lissone)
1,2 Km
Ricariche auto elettriche Ricariche auto elettriche
U2 Supermercato Biassono | EnelX
540 m
Lidl Lissone
2,6 Km
Sporting Club Monza
2,7 Km
Scuole Scuole
Scuola Secondaria di Primo Grado Pietro Verri
820 m
Istituto di Istruzione Superiore Europa Unita
1,1 Km
Scuola Primaria Aldo Moro
1,2 Km
Scuola Secondaria di Primo Grado Bareggia
1,3 Km
Scuola Primaria San Mauro
1,3 Km
Farmacia Farmacia
Farmacia Ariani
1,2 Km
Farmacia Comunale N.3
1,5 Km
Farmacia Bareggia
1,5 Km
Farmacia
1,8 Km
Farmacia di Macherio
1,9 Km
Ospedali Ospedali
Ospedale di Lissone
1,8 Km
Centro Medico
1,9 Km
Ospedale San Gerardo
2,5 Km
Supermercati Supermercati
Lidl
1,0 Km
LD Market
1,1 Km
Eurospin
1,2 Km
Effemarket
1,3 Km
Esselunga
1,4 Km
Negozi Negozi
Coop
1,8 Km
Panificio Nardozzi
1,9 Km
Negozi
2,0 Km
Space One
2,0 Km
Breakaway
2,0 Km
Bar Bar
Pit Stop
1,8 Km
Uncle Paul
1,8 Km
Bar Il Falco
2,3 Km
Punto Nord
2,6 Km
Bar
2,9 Km
Ristoranti Ristoranti
Stone Age Pub
570 m
Pura Brace
950 m
El Cordobes
1,1 Km
Happy Days
1,2 Km
Primo Piano
1,2 Km
Mostra tutto

Caratteristiche

Rif.:
61174050
Piano:
Terra
Condizionamento:
Autonomo
Ascensore:
No
Riscaldamento:
Autonomo
Giardino:
Privato
Mostra tutto
Prezzo Prezzo
€ 950.000
Rata mutuo Rata mutuo
€ 4.436 / mese
Spese annue Spese annue
€ 0
Proponi il tuo prezzoProponi il tuo prezzo

Classe Energetica

G
G
G
G
G
G
G
G
G
EP globale non rinnovabile:
127.64 kW h/m² anno
EP globale rinnovabile:
127.64 kW h/m² anno
EP invernale del fabbricato:
EP estiva del fabbricato:
Anno di costruzione:
1980
Riscaldamento:
Autonomo
Tipo impianto:
Ad aria
Tipo alimentazione:
Gasolio

Ti interessa visionare l'immobile?

Fissa un appuntamento  Fissa un appuntamento

Richiedi informazioni

Clicca su Leggi per aprire l'informativa
* Questi campi sono obbligatori

Calcola il tuo mutuo

Semplice e senza impegno
Anticipo

( % )
Mutuo

( % )

pochi semplici passi

inserisci i tuoi dati
Questionario completato
Grazie per aver richiesto un appuntamento senza impegno con un nostro Consulente del Credito e Assicurativo.

Hai inserito correttamente tutti i dati necessari e a breve riceverai una e-mail con un link da convalidare per inviare i tuoi dati.
Affiliato
Studio Perillo Srl
Via Locatelli, 24 20834 Nova Milanese (MB)

Il nostro staff


  • Noureddine Abouhafs
    Collaboratore

  • Leyslany Isabel Cardona Montana
    Collaboratrice

  • Noah Roberto Di Giambattista
    Collaboratore

  • Edy Gobbi
    Coordinatrice

  • Alessia Giannì
    Collaboratrice

  • Afra Thalia Lopez
    Collaboratrice

  • Roberta Perillo
    Collaboratrice

  • Nicolò Pasquali
    Collaboratore

  • Giorgia Trizio
    Collaboratrice

  • Nicola Perillo
    Affiliato
Via Locatelli, 24 20834 Nova Milanese (MB)
Zona: Nova Milanese-Lissone- Desio-Macherio- Biassono- Sovico- Albiate
Mostra su mappa
Orari: Dal lunedì al venerdì dalle 09:00 alle 12:30 e dalle 14:00 alle 19:00 -Sabato dalle 09.00 alle 12.30
Affiliato
Studio Perillo Srl
Via Locatelli, 24 20834 Nova Milanese (MB)

2026 Tecnocasa Franchising S.p.A. - P. IVA 08365160152 - Via Monte Bianco 60/A 20089 Rozzano (MI). Ogni agenzia ha un proprio titolare ed è autonoma. Privacy policy | Policy utilizzo | Cookie policy