Capannone in affitto

Biassono, Via parco
€ 25.000 / mese
3 locali 3 locali
5000 Mq 5000 Mq
2 bagni 2 bagni

Capannone in affitto

Biassono, Via parco

Descrizione annuncio

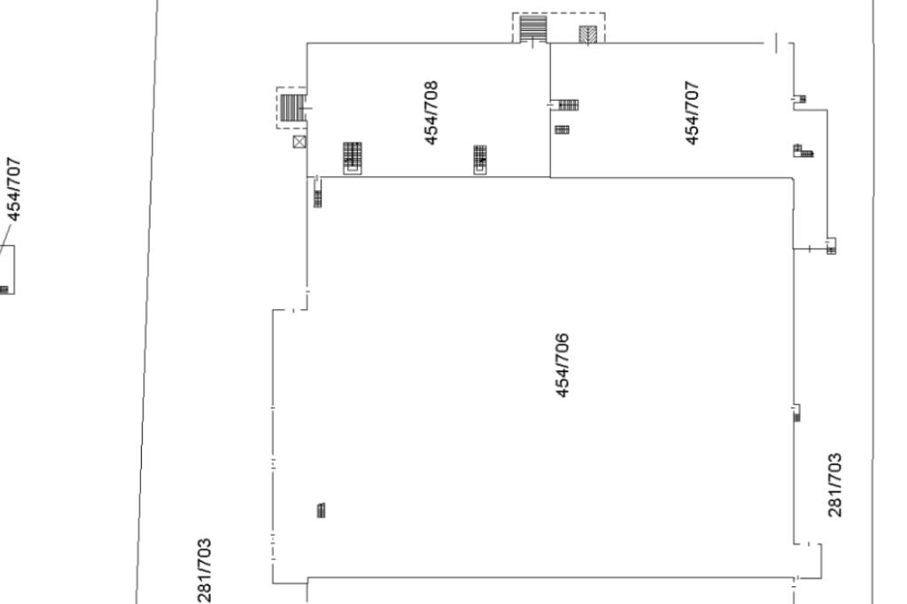
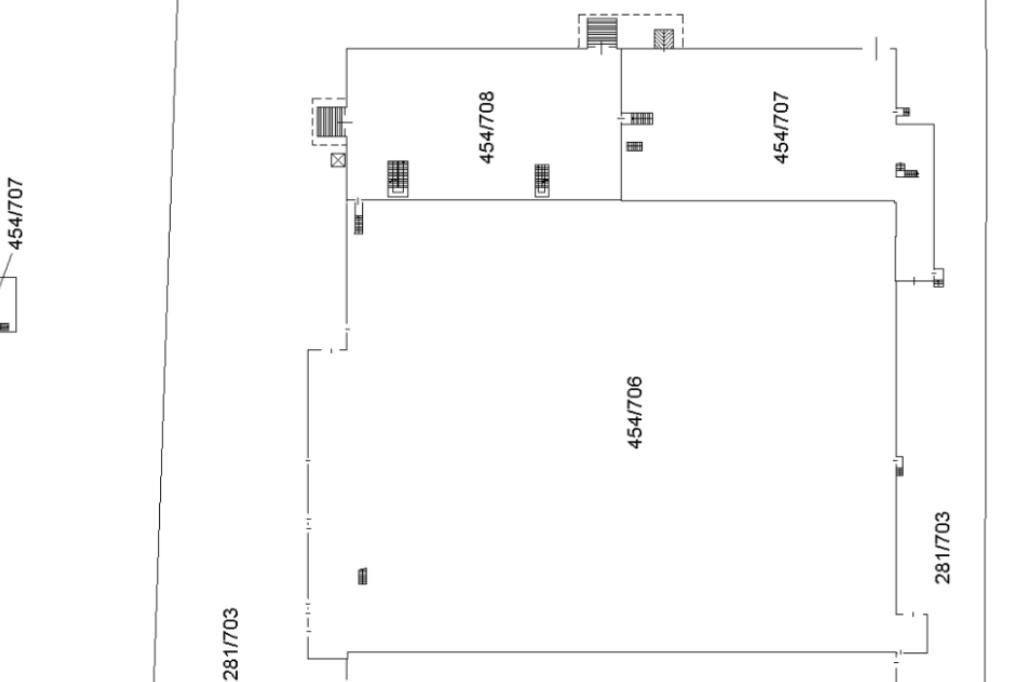
Capannone Industriale in Locazione a Biassono

Proponiamo in locazione capannone industriale di circa 5000 mq.

L’immobile si sviluppa su tre campate indipendenti, ciascuna di superficie pari a 1.500 mq, per una distribuzione degli spazi ottimale e modulabile in base alle esigenze operative.

Completano la soluzione circa 500 mq destinati a magazzino e circa 250 mq ad uso uffici.

Altezza interna di 5,5 metri sotto trave, altezza al colmo di 8,2 metri.

L'immobile è dotato di ribalta di carico/scarico e portone pari a 5,00 m in altezza e 4,80 m in larghezza.

Sono presenti locali di servizio, inclusi bagni e spogliatoi, conformi alle norme vigenti.

Gli impianti risultano a norma e l’immobile è dotato di riscaldamento.

Il capannone dispone di due carroponti con portate rispettivamente di 1,5 tonnellate e 2,0 tonnellate, rendendolo adatto a lavorazioni che richiedono movimentazione interna di carichi.

L’immobile è inoltre conforme ai requisiti di sicurezza antincendio con impianto REI 60-90.

L’area esterna garantisce adeguati spazi di manovra per bilici e mezzi articolati, assicurando un’elevata accessibilità e fluidità nelle operazioni logistiche.

Contratto di locazione soggetto ad IVA.

Per ulteriori informazioni o per fissare un sopralluogo, non esitate a contattarci.

Offriamo a ragazzi/e la possibilità di inserimento lavorativo, ricercando ambosessi da formare ed avviare alla professione di agenti immobiliari e/o coordinatrice d'agenzia.

Mostra tutto

Nelle vicinanze

Trasporto pubblico Trasporto pubblico
stazione di Macherio-Sovico
stazione di Macherio-Sovico
2,2 Km
Arcore
Arcore
2,7 Km
Trasporto pubblico
720 m
Macherio
Macherio
2,0 Km
Biassono-Lesmo Parco
Biassono-Lesmo Parco
720 m
Ricariche auto elettriche Ricariche auto elettriche
U2 Supermercato Biassono | EnelX
2,2 Km
Piazza Europa
2,9 Km
Scuole Scuole
Scuola Primaria Sant'Andrea
1,1 Km
Scuola Primaria Aldo Moro
1,2 Km
Scuola Secondaria di Primo Grado Pietro Verri
1,5 Km
Scuola Media Statale "Antonio Stoppani"
2,0 Km
Scuola Primaria Alessandro Manzoni
2,0 Km
Farmacia Farmacia
Farmacia Ariani
1,2 Km
Farmacia La Ca'
1,5 Km
Farmacia di Macherio
2,0 Km
Farmacia
2,3 Km
Farmacia Centrale
2,6 Km
Ospedali Ospedali
Centro Medico
1,7 Km
Supermercati Supermercati
Eurospin
1,1 Km
Lidl
1,8 Km
Esselunga
1,9 Km
Il Gigante
1,9 Km
NaturaSì
2,4 Km
Negozi Negozi
OVS
1,9 Km
Carrera
2,1 Km
Coop
2,4 Km
Panificio Nardozzi
2,5 Km
Negozi
2,5 Km
Bar Bar
Bar
1,8 Km
Stelmoka
1,8 Km
M10
2,4 Km
La Caffeteria
2,5 Km
Nuova Bohemia Soul Bar
2,6 Km
Ristoranti Ristoranti
La Rava e la Fava
880 m
Primo Piano
1,1 Km
Happy Days
1,2 Km
El Cordobes
1,2 Km
Ranch Mary
1,3 Km
Mostra tutto

Caratteristiche

Rif.:
61199789
Piano:
Basso
Condizionamento:
Assente
Ascensore:
No
Riscaldamento:
Autonomo
Giardino:
Condominiale
Mostra tutto
Prezzo Prezzo
€ 25.000 / mese
Spese annue Spese annue
€ 0

Altre caratteristiche

Descrizione dei locali
Bagno Con Finestra

Classe Energetica

G
G
G
G
G
G
G
G
G
EP globale non rinnovabile:
105.00 kW h/m² anno
EP globale rinnovabile:
42.71 kW h/m² anno
EP invernale del fabbricato:
EP estiva del fabbricato:
Anno di costruzione:
2010
Riscaldamento:
Autonomo
Tipo impianto:
A radiatori
Tipo alimentazione:
Metano

Ti interessa visionare l'immobile?

Fissa un appuntamento  Fissa un appuntamento

Richiedi informazioni

Clicca su Leggi per aprire l'informativa
* Questi campi sono obbligatori
Affiliato
Studio Perillo Srl
Via Locatelli, 24 20834 Nova Milanese (MB)

Il nostro staff


  • Noureddine Abouhafs
    Collaboratore

  • Leyslany Isabel Cardona Montana
    Collaboratrice

  • Noah Roberto Di Giambattista
    Collaboratore

  • Edy Gobbi
    Coordinatrice

  • Alessia Giannì
    Collaboratrice

  • Afra Thalia Lopez
    Collaboratrice

  • Nicolò Pasquali
    Collaboratore

  • Giorgia Trizio
    Collaboratrice

  • Nicola Perillo
    Affiliato
Via Locatelli, 24 20834 Nova Milanese (MB)
Zona: Nova Milanese-Lissone- Desio-Macherio- Biassono- Sovico- Albiate
Mostra su mappa
Orari: Dal lunedì al venerdì dalle 09:00 alle 12:30 e dalle 14:00 alle 19:00 - Sabato su appuntamento dalle 09:00 alle 12:30.
Affiliato
Studio Perillo Srl
Via Locatelli, 24 20834 Nova Milanese (MB)

2026 Tecnocasa Franchising S.p.A. - P. IVA 08365160152 - Via Monte Bianco 60/A 20089 Rozzano (MI). Ogni agenzia ha un proprio titolare ed è autonoma. Privacy policy | Policy utilizzo | Cookie policy